GM Service Manual Online
For 1990-2009 cars only
Makes
🢒
Chevrolet
🢒
2008
🢒
Epica
🢒 Illumination
Illumination
Illumination
Master Electrical Component List
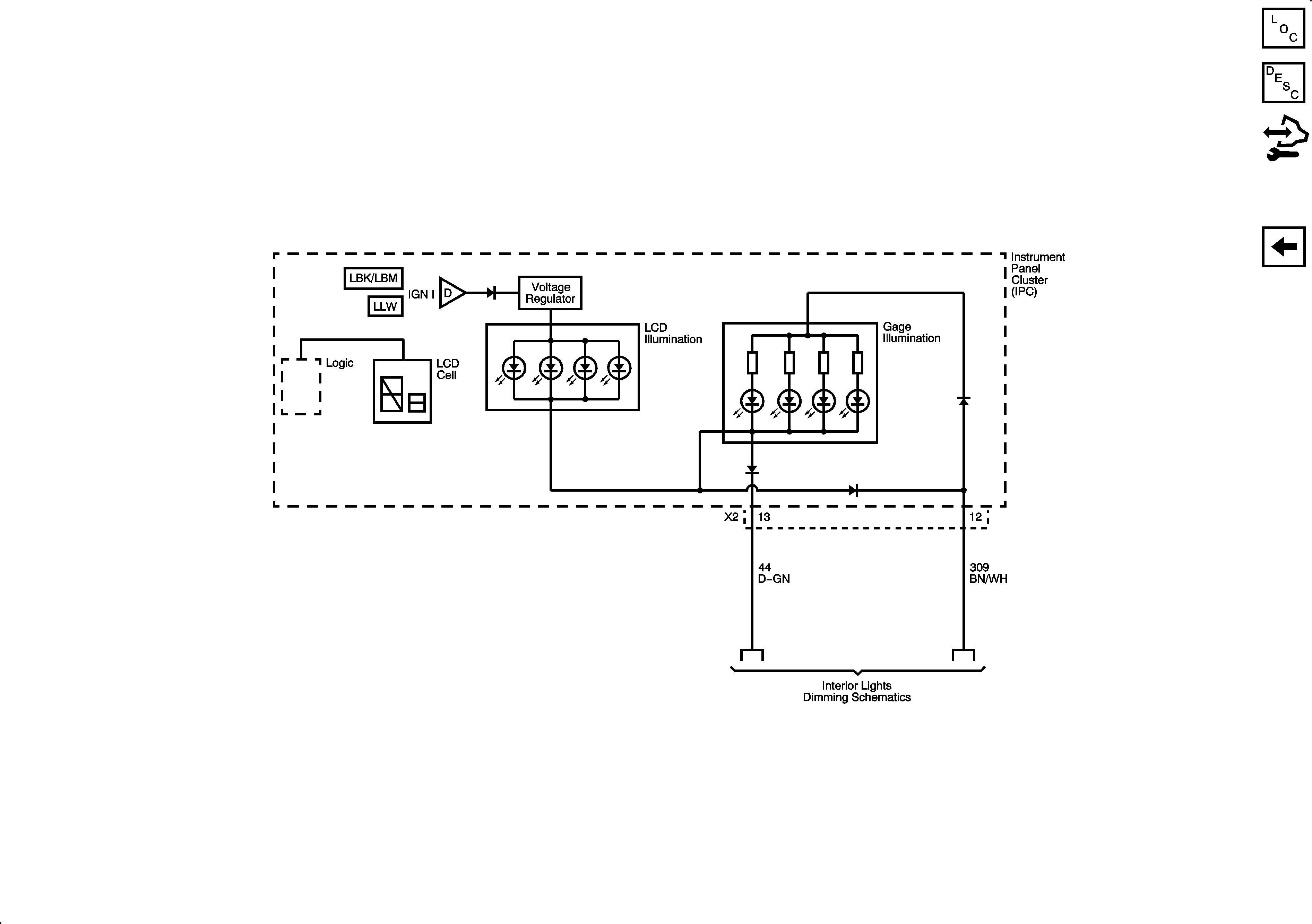
Instrument Cluster Description and Operation
Control Module References
Indicators 3 of 3
Power, Ground, Gages and Serial Data (Gasoline)
Power, Ground, Gages and Serial Data (Diesel)
Illumination