GM Service Manual Online
For 1990-2009 cars only
Makes
🢒
Chevrolet
🢒
2006
🢒
Express
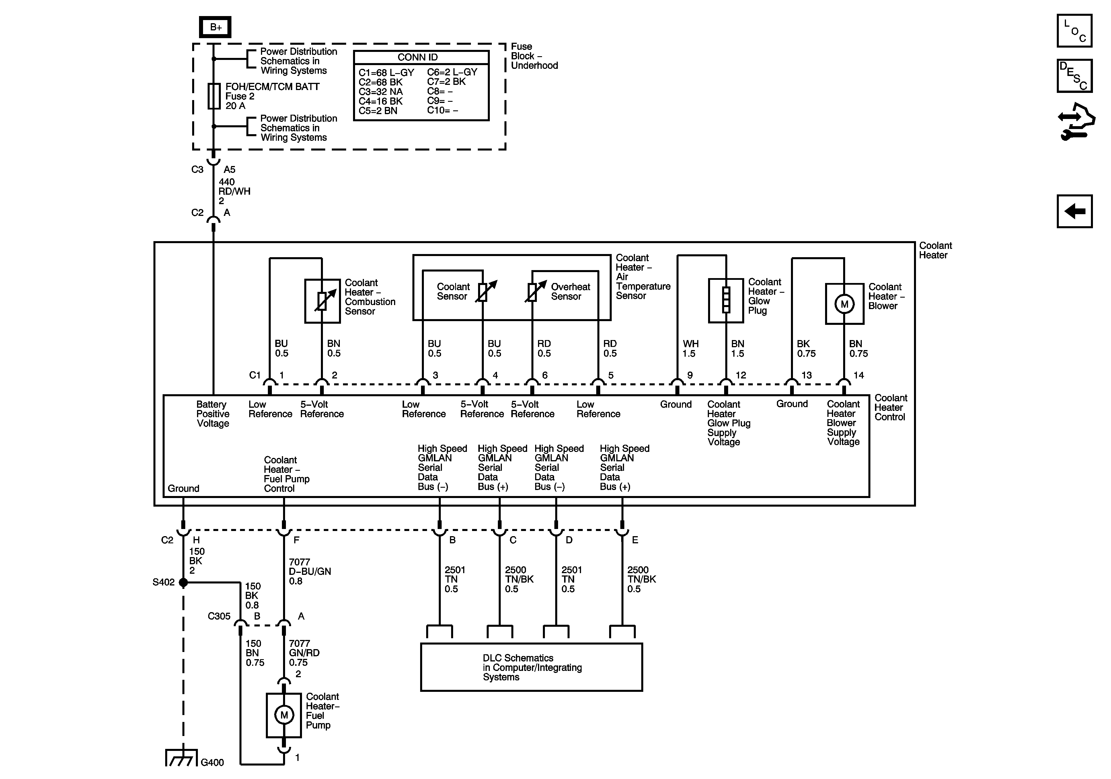
🢒 Coolant Heater (K08)
Coolant Heater (K08)
Coolant Heater (K08)
Master Electrical Component List
Air Temperature Description and Operation
Control Module References
Rear HVAC (C36 w/o C69)
B+ Bus - Underhood Fuse Block - Diesel
ABS/VSES, FOH/ECM/TCM BATT, PCM BATT, and TRLR Fuses
G400
High Speed GMLAN and Splice Pack SP250 - Diesel