GM Service Manual Online
For 1990-2009 cars only
Makes
🢒
Chevrolet
🢒
2005
🢒
Impala
🢒 Monte Carlo
Monte Carlo
Monte Carlo
Master Electrical Component List
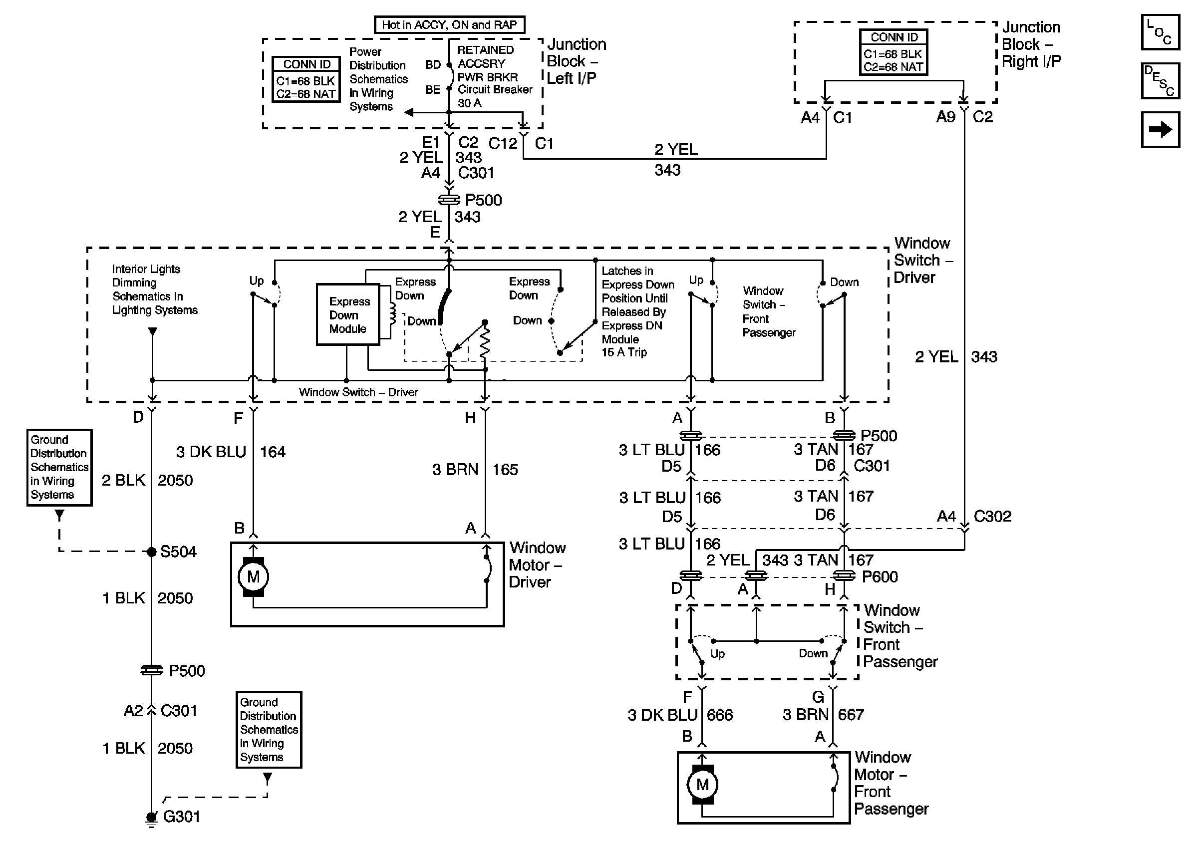
Power Windows Description and Operation
Impala - Front Doors
Console and Driver Door
CLSTR/BCM, DR LK, LEFT IP, LH HTD ST/BCM and PWR MIR Fuses, RETAINED ACCSRY PWR BRKR Circuit Breaker, and RETAINED ACCSRY PWR Relay
G301 - 2 of 2
G301 - 1 of 2