GM Service Manual Online
For 1990-2009 cars only
Makes
🢒
Chevrolet
🢒
2008
🢒
Impala
🢒
Diagnostic Navigation
🢒
Vehicle Diagnostic Information
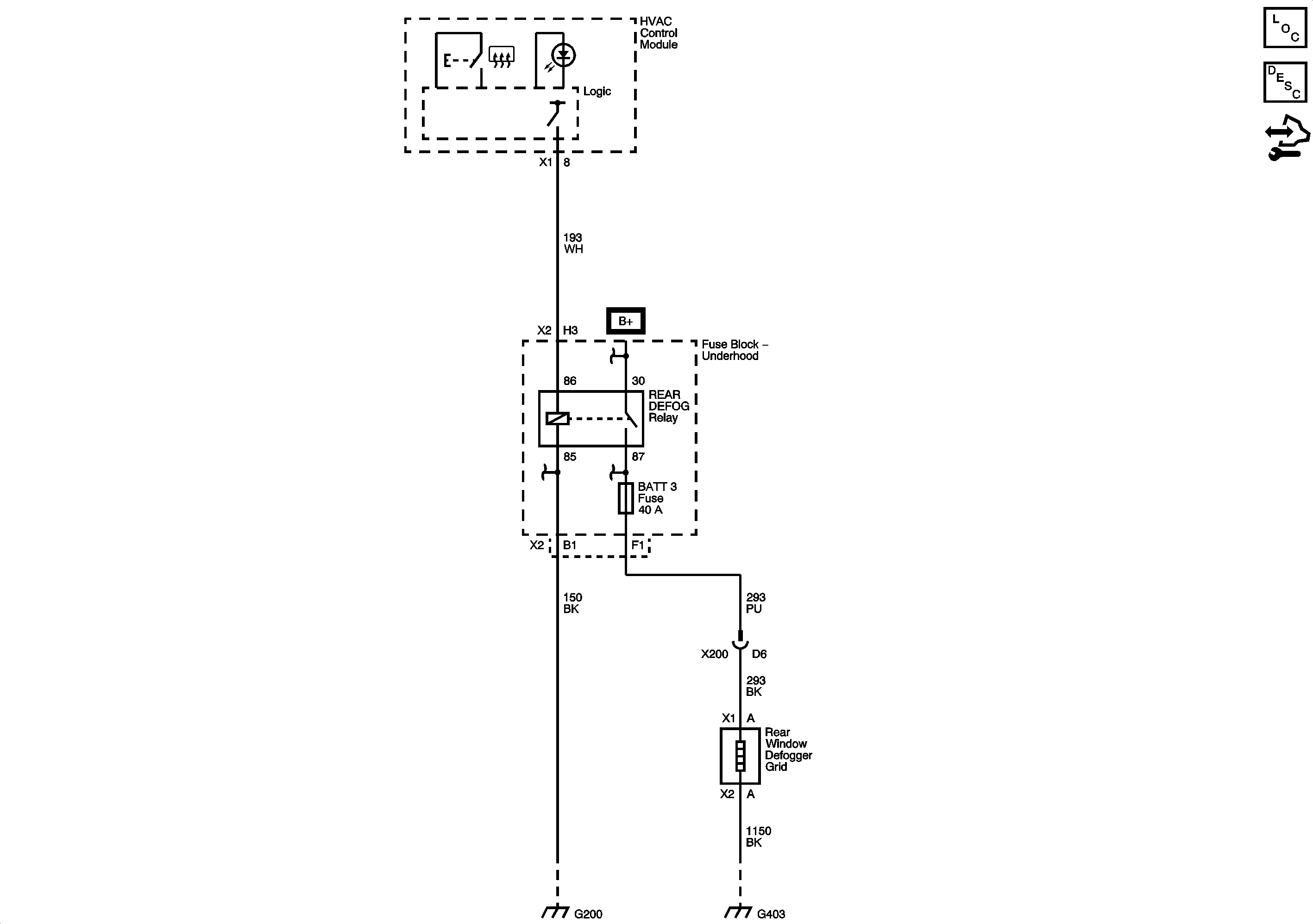
🢒 Defogger Schematics
Master Electrical Component List
Rear Window Defogger Description and Operation
Control Module References
Fuse Block - Underhood Bussing
BATT 3, HTD MIR, FOG LAMPS, WSW, LT PARK, and RT PARK Fuses
G200
G200
G403, and G404