GM Service Manual Online
For 1990-2009 cars only
Makes
🢒
Chevrolet
🢒
2008
🢒
Impala
🢒
Power and Signal Distribution
🢒
Wiring Systems and Power Management
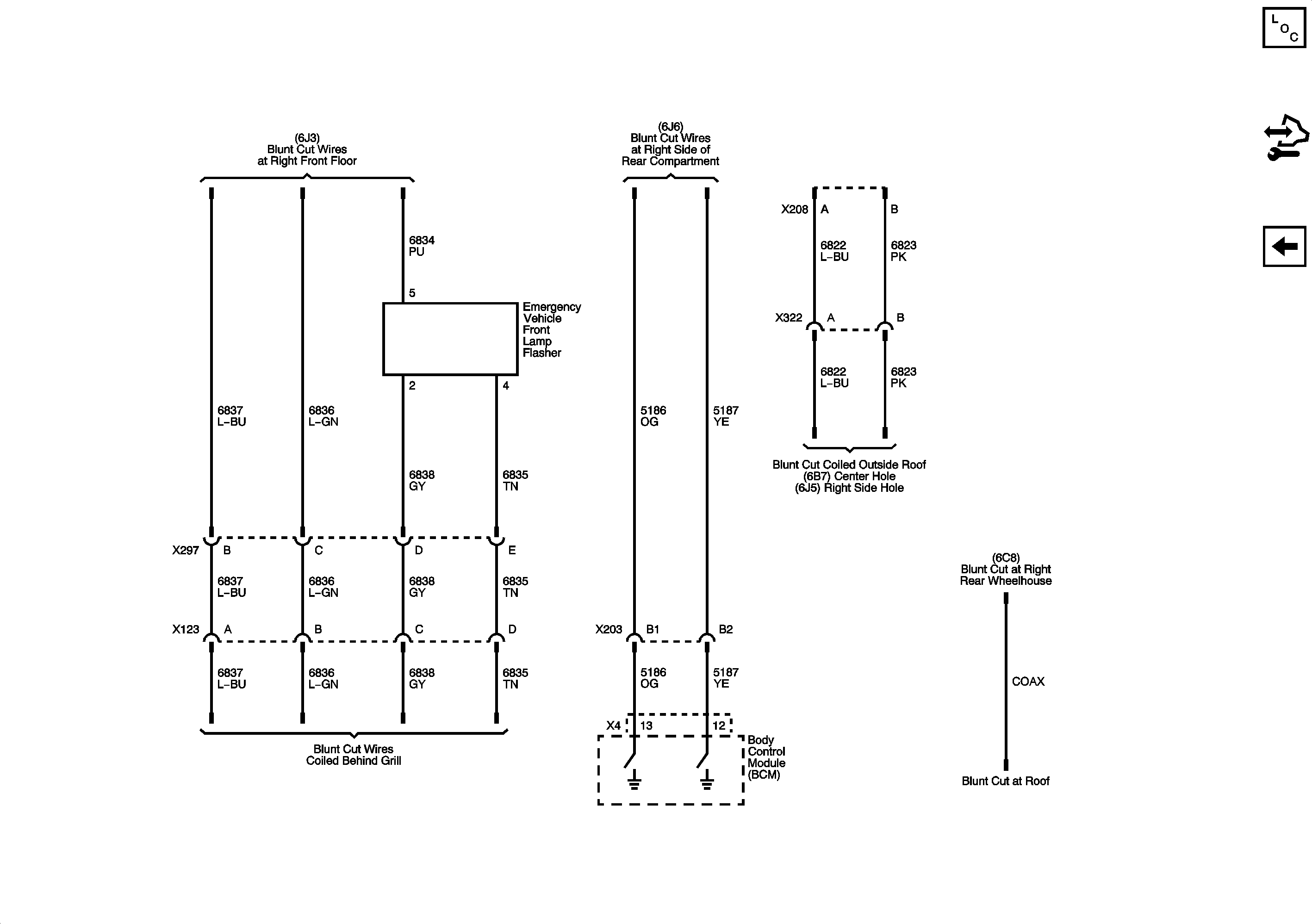
🢒 Upfitter Provision Schematics
Figure
1:
6J1
Master Electrical Component List
Control Module References
6J3, 6J6, 6F5, and 6C8
Fuse Block - Underhood Bussing
Fuse Block - Underhood Bussing
S/ROOF, DR/LCK, RAP Fuses, and RAP Relay, DOOR UNLOCk PCB Relay - Driver, DOOR UNLOCK PCB Relay, and DOOR LOCK PCB Relay
Fuse Block - Underhood Bussing
G201
G202, and G204
Figure
2:
6J3, 6J6, 6F5, and 6C8
Master Electrical Component List
Control Module References
6J1