GM Service Manual Online
For 1990-2009 cars only
Makes
🢒
Chevrolet
🢒
2005
🢒
Kodiak C-Series Motorhome (Cutaway) C4/C5
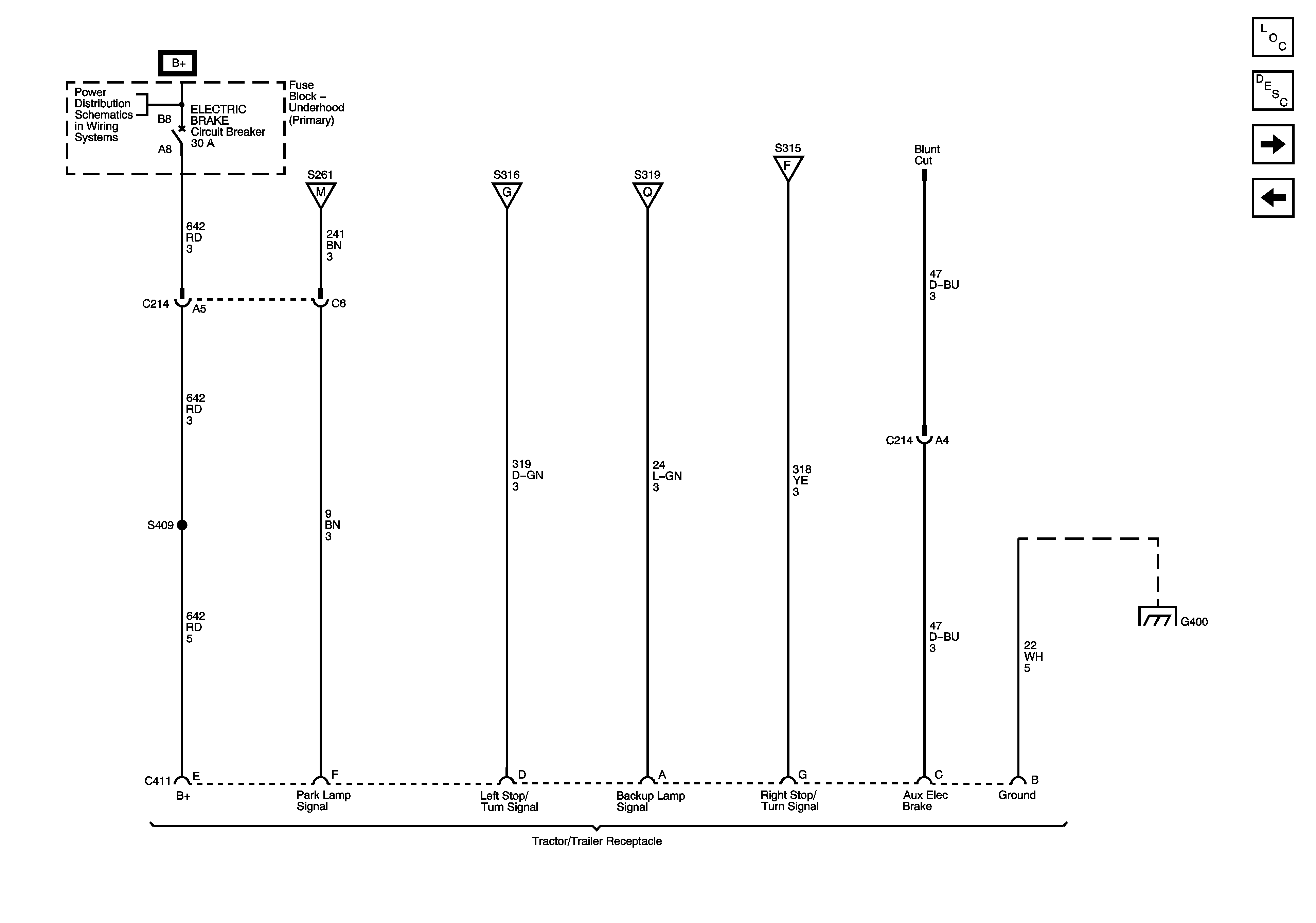
🢒 Trailer Tow Connector (C6/C7/C8)
Trailer Tow Connector (C6/C7/C8)
Trailer Connector - C6/C7/C8
Master Electrical Component List
Exterior Lighting Systems Description and Operation
Trailer Tow Connector (C4/C5)
Backup Lamps
B+ Bus Bar
Park Lamps, Roof Marker Lamps
Upfitter Connector
Backup Lamps
Upfitter Connector
G112, G113, G203 - 4 of 4, G204, G205 and G400