GM Service Manual Online
For 1990-2009 cars only
Makes
🢒
Chevrolet
🢒
2007
🢒
Kodiak C-Series (Conventional) C6/C7/C8
🢒
Brakes
🢒
Air Brakes
🢒 Air Brake System Schematics
Figure
1:
Air Brake Warning System
Master Electrical Component List
Brake Warning System Description and Operation
Control Module References
Air Brake System
Ignition Switch - OFF/RUN/START, RUN/START, and START Busses
AIRBAG, GAUGES, LT REAR TURN/STOP, and RT REAR TURN/STOP Fuses/Circuit Breakers
Instrument Panel Cluster - 1 of 2
G101 - 1 of 2
G112, G113, G203 - 4 of 4, G204, G205, and G400
G200, G202, and G203 - 1 of 4
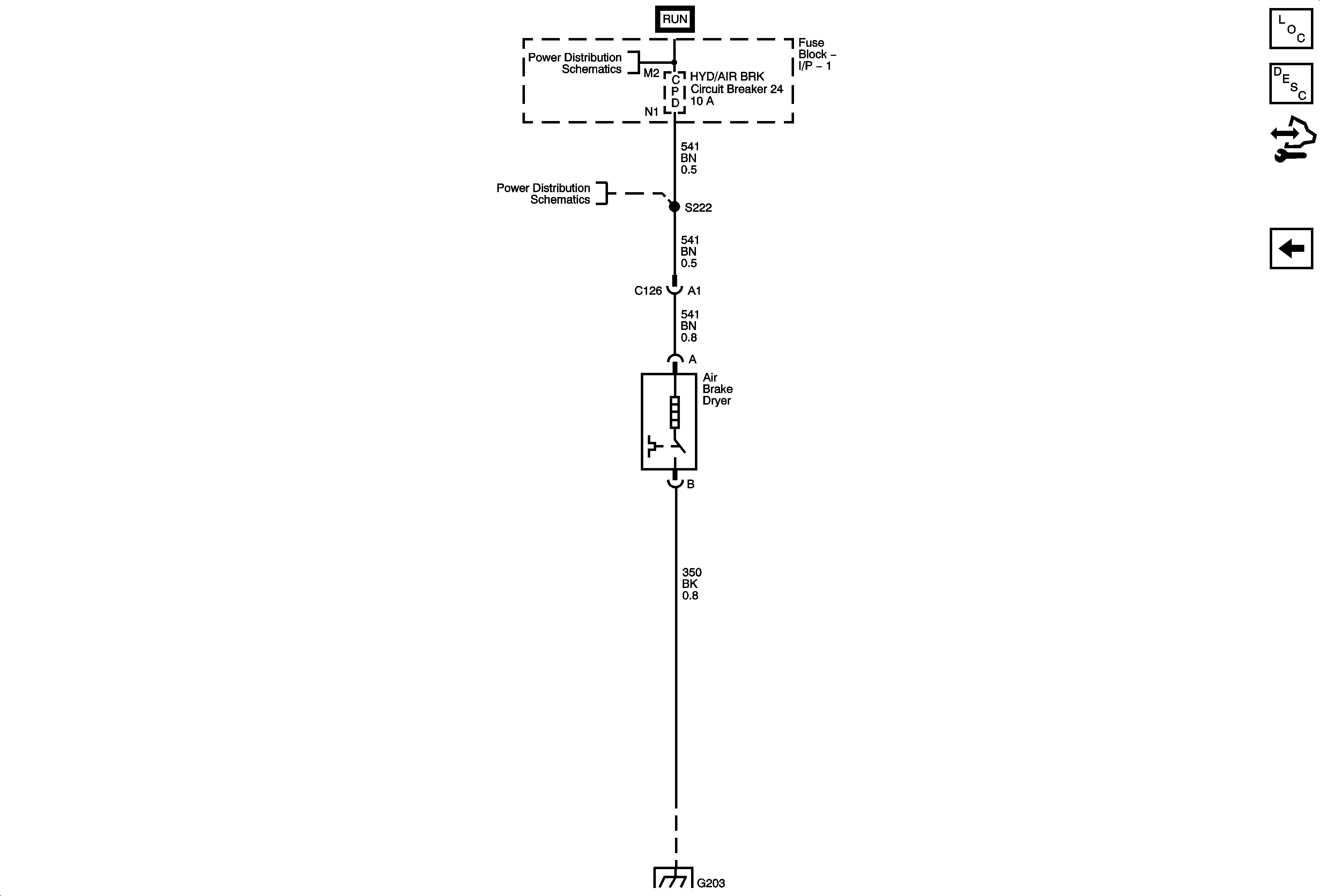
Figure
2:
Air Brake System
Master Electrical Component List
Air Dryer Description and Operation
Control Module References
Air Brake Warning System
Ignition Switch - RUN and ACC/RUN Busses
AXL/4WD, BRK, HYD/AIR BRK, and HTR/AC Fuses/Circuit Breakers
G112, G113, G203 - 4 of 4, G204, G205, and G400