GM Service Manual Online
For 1990-2009 cars only

HVAC Schematics C36


Object Number: 1839082  Size: FS
Master Electrical Component List
Air Delivery Description and Operation
Control Module References
Ignition Switch - RUN and ACC/RUN Busses
BAT/HAZ, HAZRD, PWR/ACCY, STOP, and TRLR Fuses/Circuit Breakers
AXL/4WD, BRK, HYD/AIR BRK, and HTR/AC Fuses/Circuit Breakers
G102 - 2 of 2

HVAC Schematics C60

Figure 1:

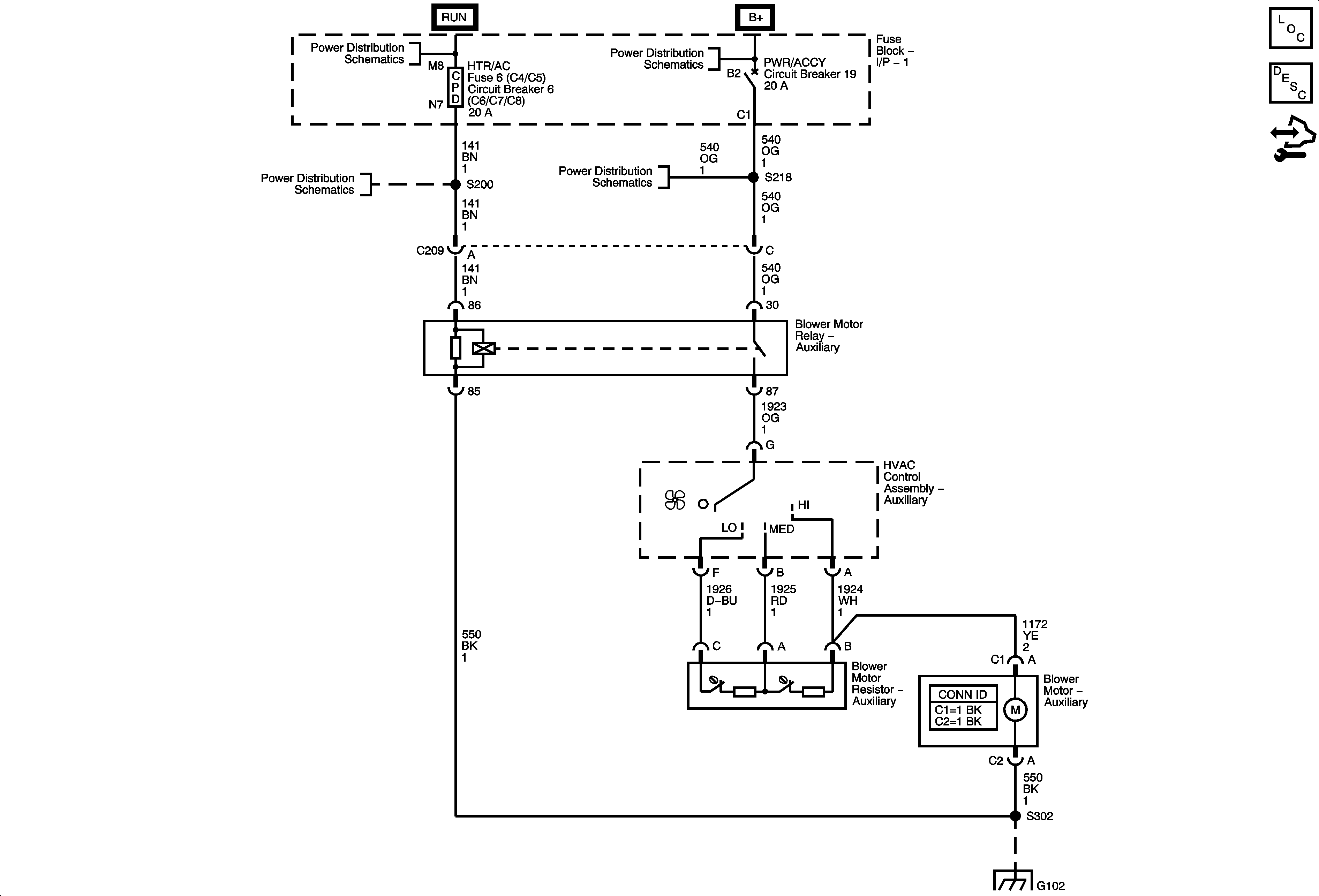
Blower Controls


Object Number: 1839011  Size: FS
Master Electrical Component List
Air Delivery Description and Operation
Control Module References
A/C Compressor Controls - L18/LLY
Batteries - LG4/LG5 and B+ Bus
Ignition Switch - RUN and ACC/RUN Busses
AXL/4WD, BRK, HYD/AIR BRK, and HTR/AC Fuses/Circuit Breakers
A/C Compressor Controls - L18/LLY
A/C Compressor Controls - LG4/LG5
Interior Lights Dimming Schematics
G103 - 1 of 2, G105, and G106
G103 - 1 of 2, G105, and G106
G112, G113, G203 - 4 of 4, G204, G205, and G400
Figure 2:

A/C Compressor Controls - L18/LLY/LMM


Object Number: 1839012  Size: FS
Master Electrical Component List
Air Delivery Description and Operation
Control Module References
A/C Compressor Controls - LG4/LG5/LF8
Blower Controls
Blower Controls
Ignition Switch - RUN and ACC/RUN Busses
AXL/4WD, BRK, HYD/AIR BRK, and HTR/AC Fuses/Circuit Breakers
Batteries - LG4/LG5 and B+ Bus
G100 - L18
G100 - LLY
Figure 3:

A/C Compressor Controls - LG4/LG5/LF8


Object Number: 1839014  Size: FS
Master Electrical Component List
Air Delivery Description and Operation
Control Module References
A/C Compressor Controls - L18/LLY/LMM
Blower Controls
Batteries - LG4/LG5 and B+ Bus
G100 - LG4
G100 - LG5

HVAC Schematics C40


Object Number: 1839008  Size: FS
Master Electrical Component List
Air Delivery Description and Operation
Control Module References
Batteries - LG4/LG5 and B+ Bus
Ignition Switch - RUN and ACC/RUN Busses
AXL/4WD, BRK, HYD/AIR BRK, and HTR/AC Fuses/Circuit Breakers
Interior Lights Dimming Schematics
G103 - 1 of 2, G105, and G106
G103 - 1 of 2, G105, and G106
G112, G113, G203 - 4 of 4, G204, G205, and G400