GM Service Manual Online
For 1990-2009 cars only
Makes
🢒
Chevrolet
🢒
1999
🢒
S10 Pickup - 4WD
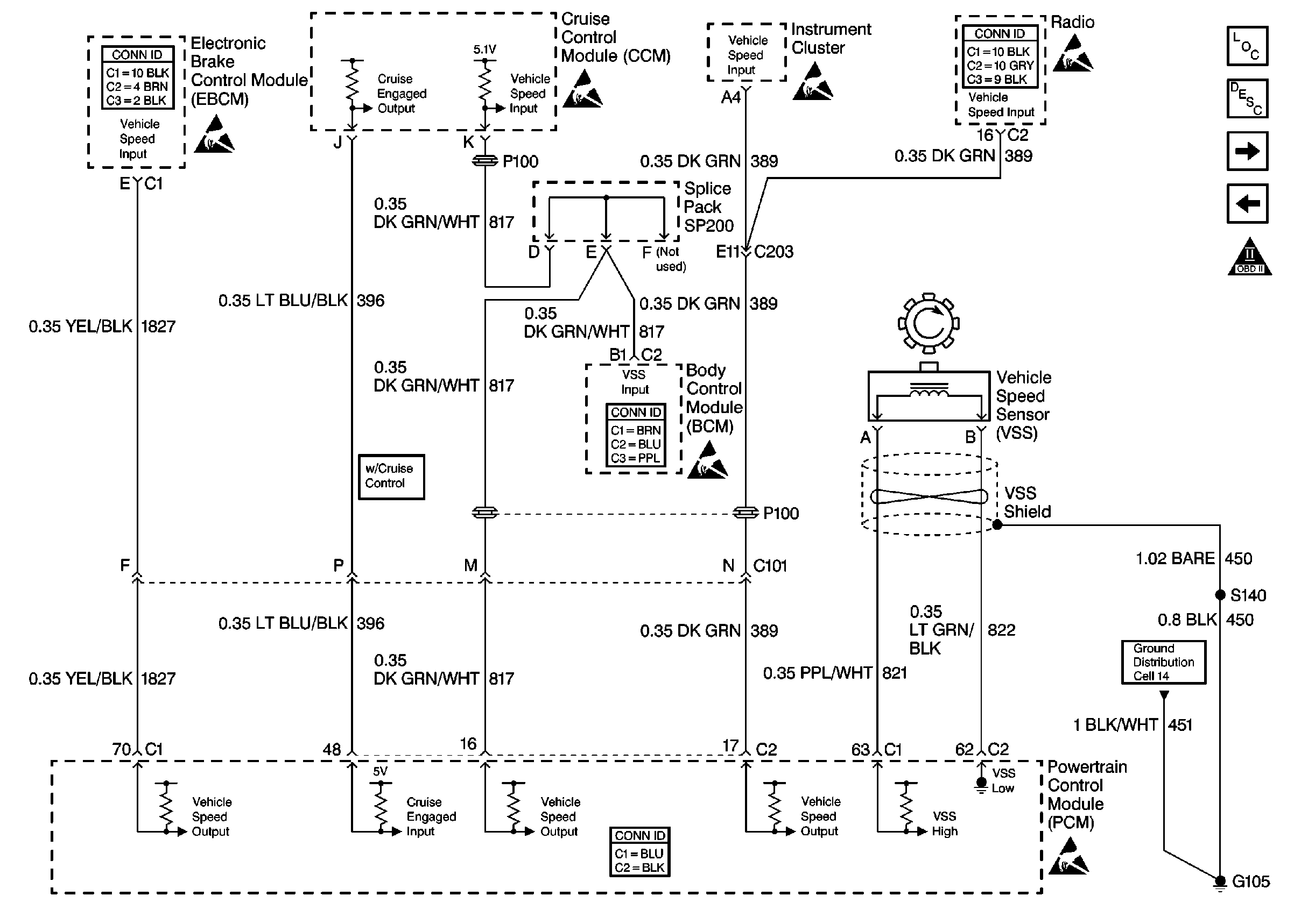
🢒 Cell 20: Vehicle Speed Sensor Signal
Cell 20: Vehicle Speed Sensor Signal
Cell 20: Vehicle Speed Sensor Signal
Antilock Brake System Connector End Views
Handling ESD Sensitive Parts Notice
Handling ESD Sensitive Parts Notice
Handling ESD Sensitive Parts Notice
Entertainment Connector End Views
Handling ESD Sensitive Parts Notice
Engine Controls Components
Powertrain Control Module Description
Cell 20: A/C Compressor Controls
Cell 20: Automatic Transmission Switch Inputs
OBD II Symbol Description Notice
Cell 14: G103 and G105 (2.2L)
Handling ESD Sensitive Parts Notice
Powertrain Control Module Connector End Views
Body Control System Connector End Views
Handling ESD Sensitive Parts Notice