GM Service Manual Online
For 1990-2009 cars only
Makes
🢒
Chevrolet
🢒
2007
🢒
Silverado - 4WD
🢒 Diesel
Diesel
Diesel
Master Electrical Component List
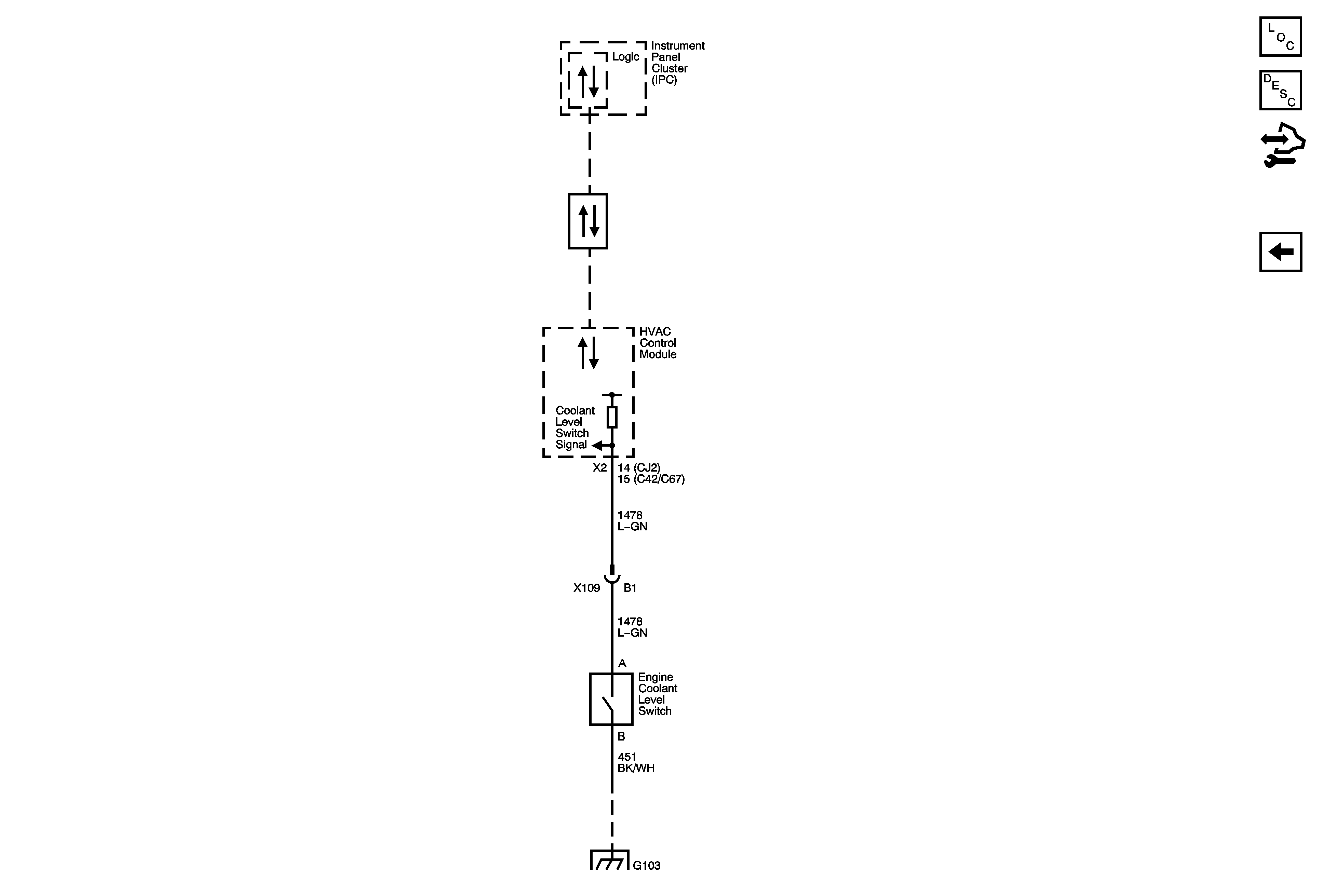
Cooling System Description and Operation
Control Module References
Gas
Low Speed Bus - 1 of 3
G106 (4.3L) and G103