GM Service Manual Online
For 1990-2009 cars only
Makes
🢒
Chevrolet
🢒
2007
🢒
Silverado - 4WD
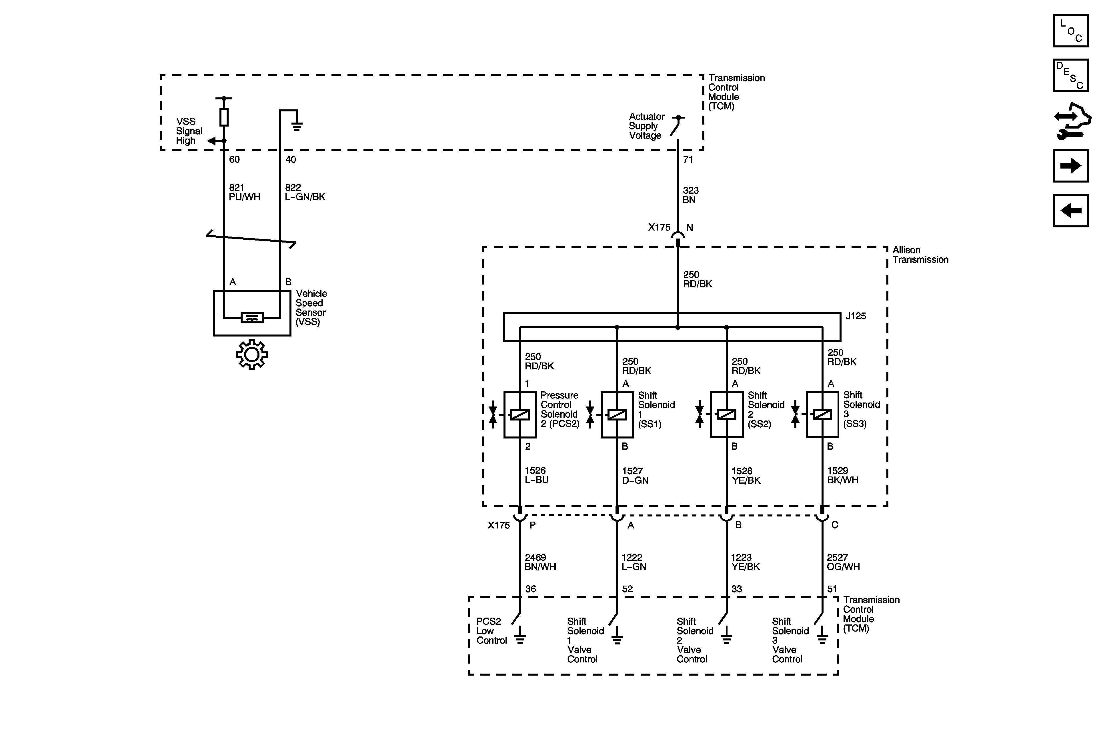
🢒 Shift Solenoids, PCS2, Torque Signals and Speed Sensors
Shift Solenoids, PCS2, Torque Signals and Speed Sensors
Shift Solenoids, PCS 2, Torque Signals and Speed Sensors
Master Electrical Component List
Electronic Component Description
Control Module References
Fluid Pressure Switches, PCS1, TCC PCS, Mod Main Solenoid and FTP Sensor
Power, Ground, Driver Shift request Switch, Tow/Haul Switch, and Serial Data