GM Service Manual Online
For 1990-2009 cars only
Makes
🢒
GMC_Truck
🢒
2007
🢒
Acadia - 2WD
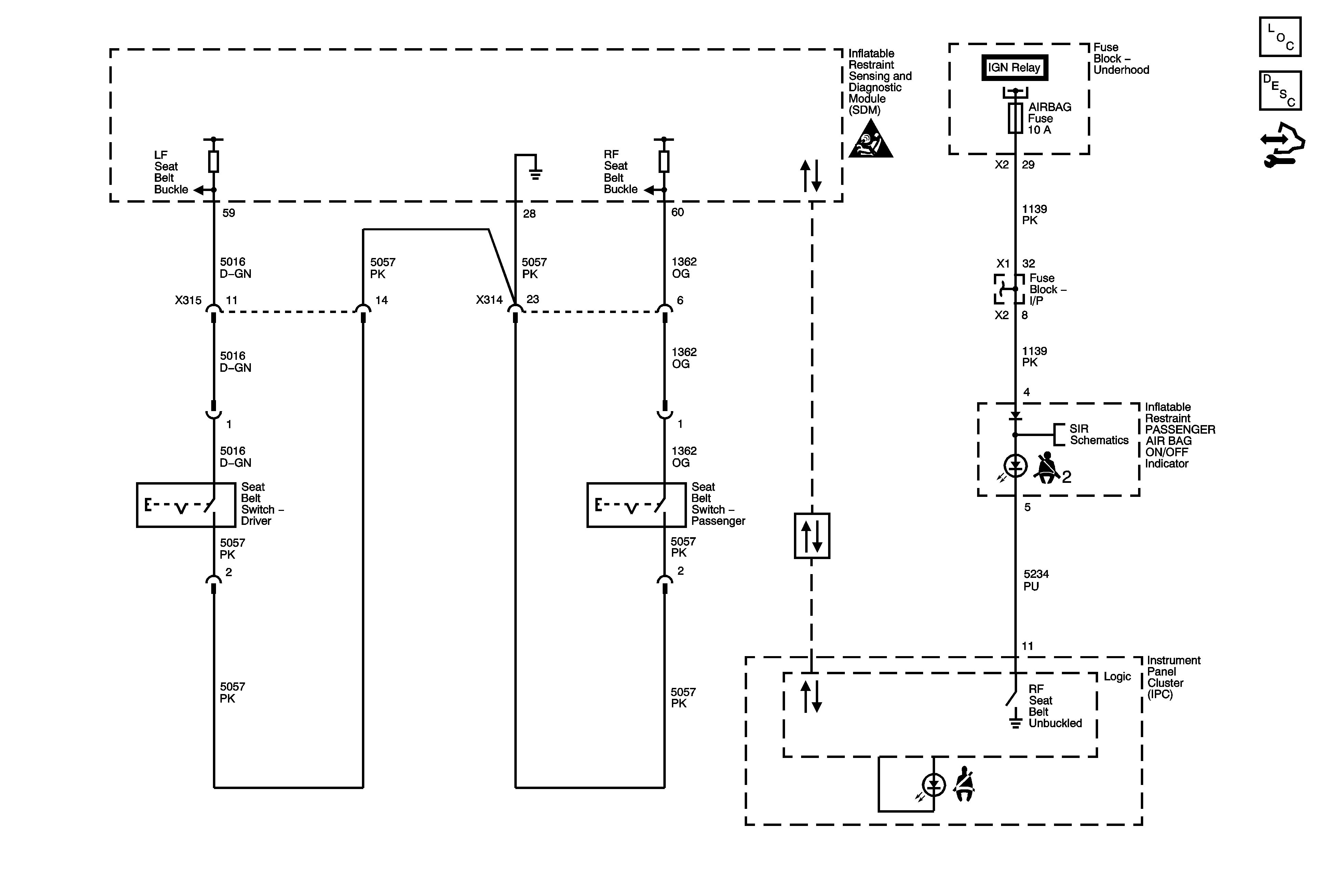
🢒 Seat Belt Schematics
Seat Belt Schematics
Master Electrical Component List
Seat Belt System Description and Operation
Control Module References
B+ Bus 2 of 2
Data Communication Schematics
Module Power, Ground, Indicators, Rollover/Passenger Presence Sensors
Seat Belt Schematic Icons