GM Service Manual Online
For 1990-2009 cars only
Makes
🢒
GMC_Truck
🢒
2003
🢒
Yukon - 2WD
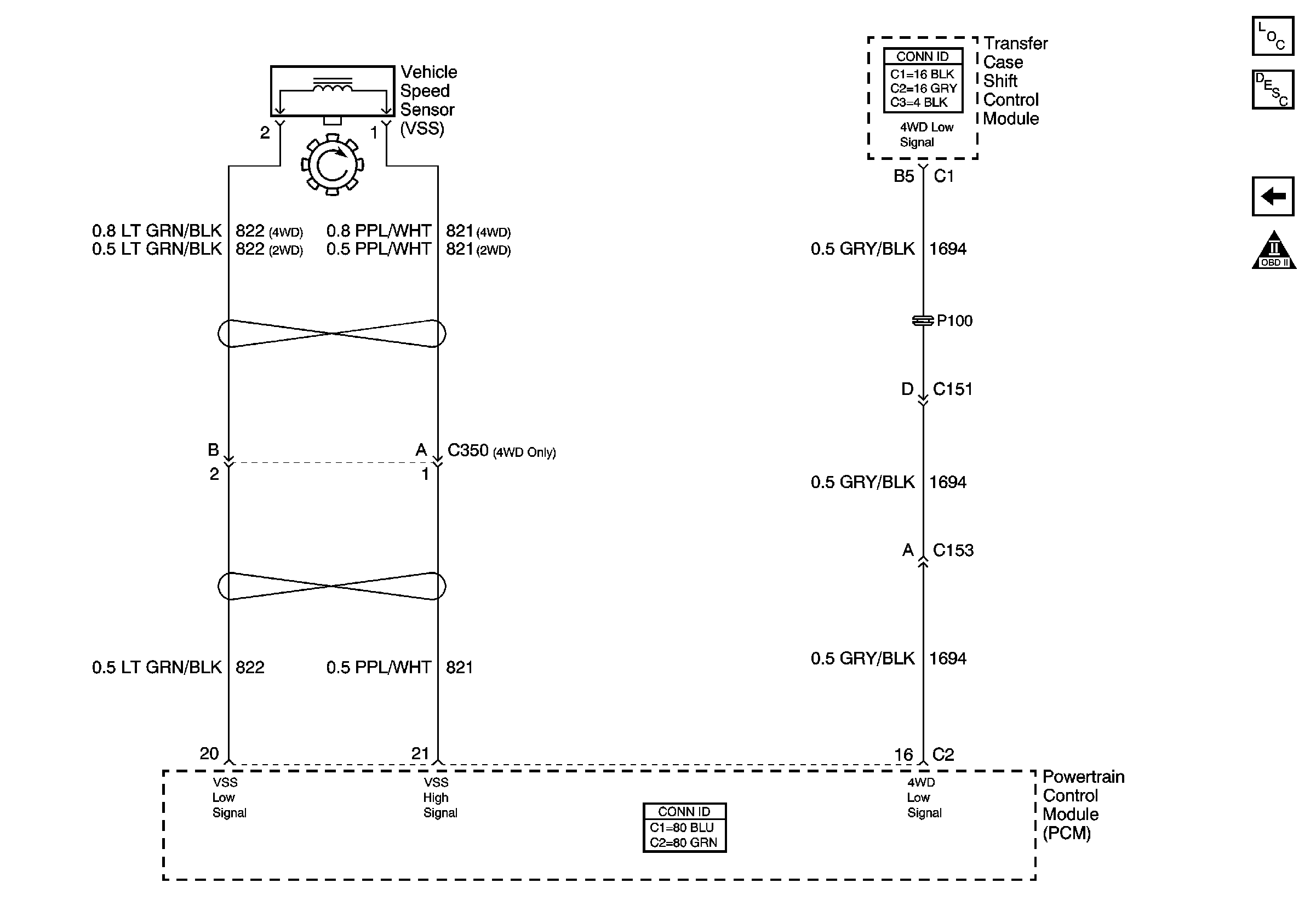
🢒 Vehicle Speed Signal and 4WD Low Signal
Vehicle Speed Signal and 4WD Low Signal
Vehicle Speed Signal and 4WD Low Signal
Master Electrical Component List
Electronic Component Description
Tow/Haul Switch and PNP Switch Inputs
Automatic Transmission Schematic Icons