GM Service Manual Online
For 1990-2009 cars only
Makes
🢒
GMC_Truck
🢒
2003
🢒
Yukon - 2WD
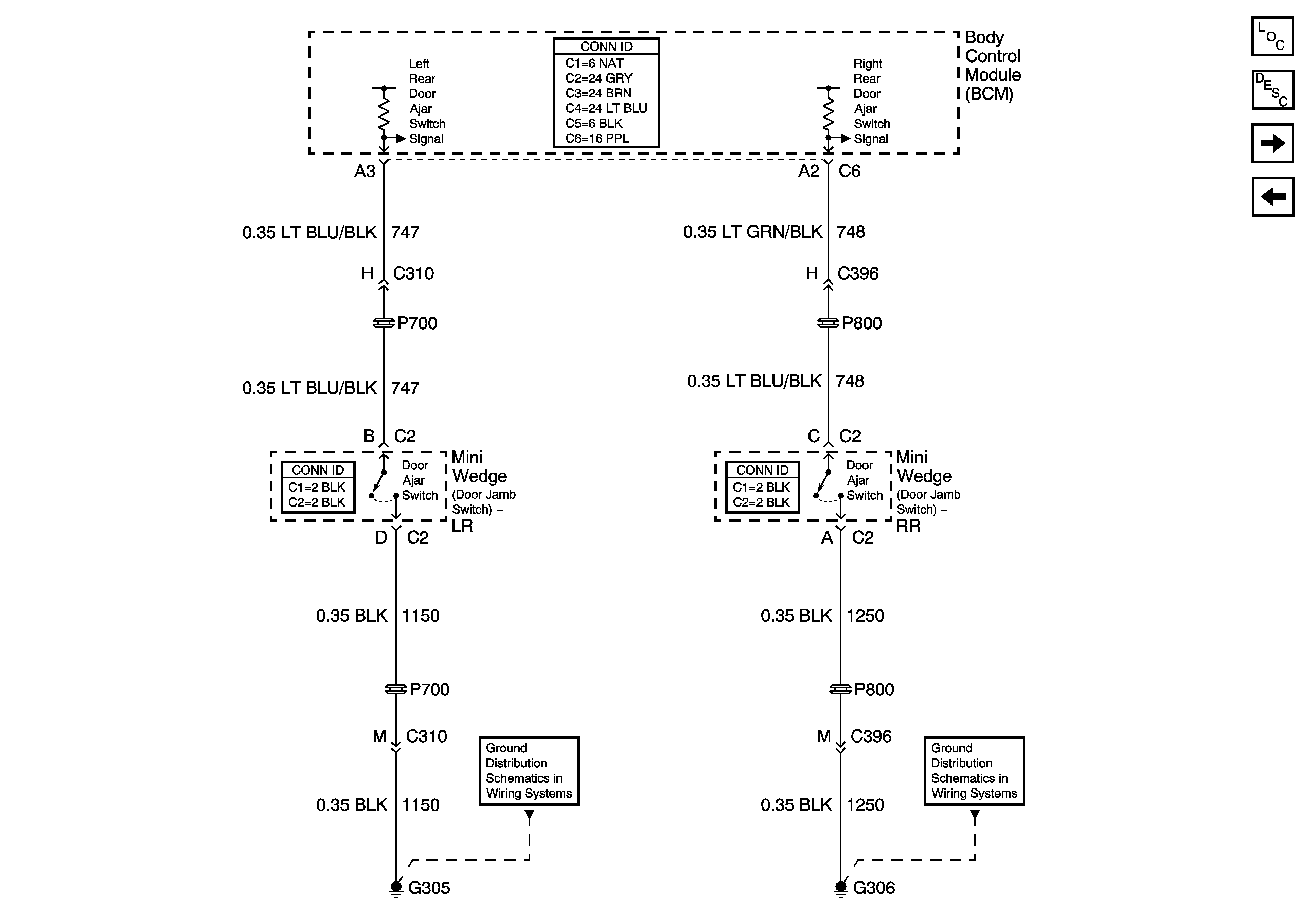
🢒 Rear Door Switches
Rear Door Switches
Rear Door Switches
Master Electrical Component List
Theft Systems Description and Operation
Cargo Door and Liftgate Switches
Front Door Switches
G304, G305
G306