GM Service Manual Online
For 1990-2009 cars only
Makes
🢒
Generic
🢒
2005
🢒
Unit Repair
🢒
Accessories
🢒
Cruise Control
🢒 Cruise Control Schematics
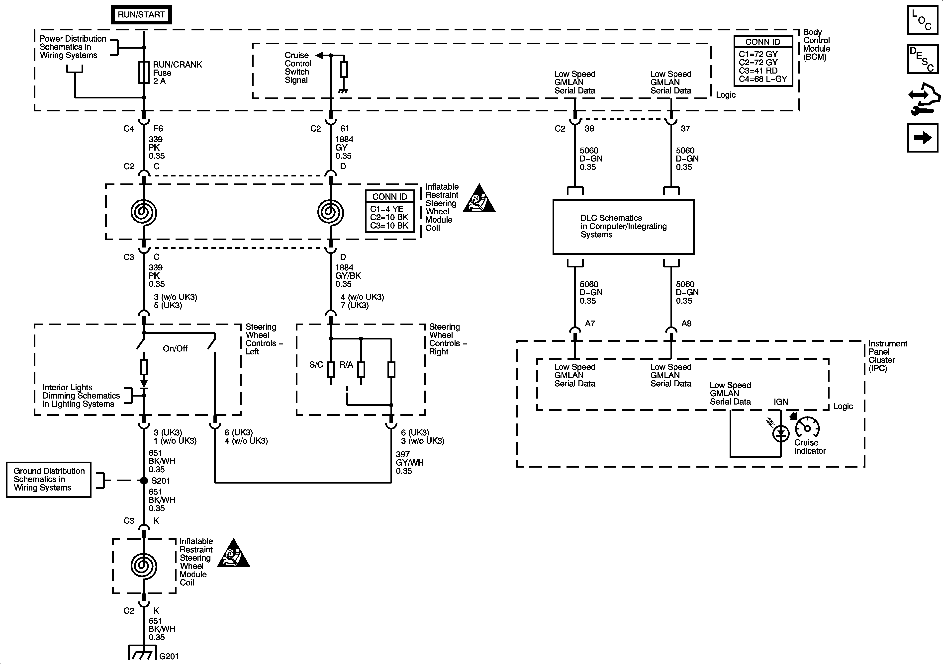
Figure
1:
Switches, DLC and Indicator
Master Electrical Component List
Cruise Control Description and Operation
Control Module References
Brake Pedal Position Sensor and Stop Lamp Switch Signal
Underhood Fuse Block RUN/RLY, IBCM (R/C), Body Control Module (BCM) HVAC BLOWER, HVAC HEAD/ECC, EPS, AIR BAG and RUN/CRANK Fuses
Steering Wheel and Doors
SIR Caution for Zoning
Low Speed Serial Data
G201
SIR Caution for Zoning
G201
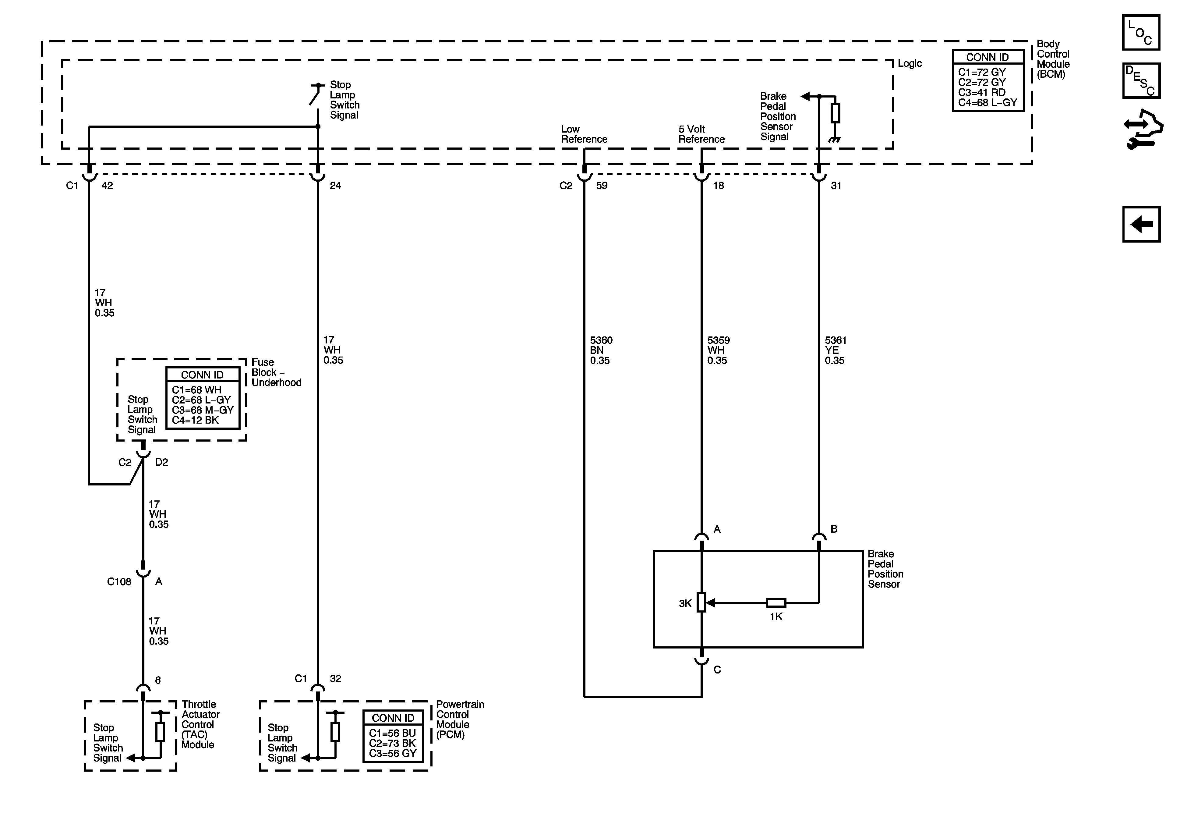
Figure
2:
Brake Pedal Position Sensor and Stop Lamp Switch Signal
Master Electrical Component List
Cruise Control Description and Operation
Control Module References
Switches, DLC and Indicator