GM Service Manual Online
For 1990-2009 cars only
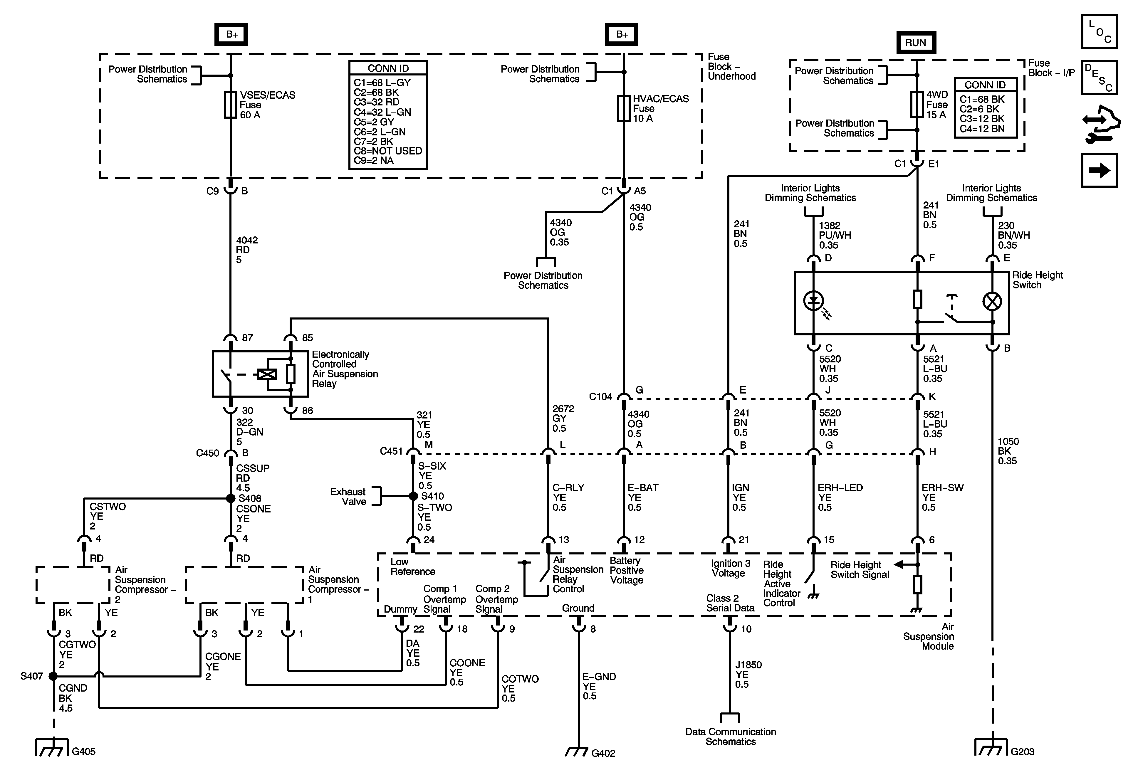
Figure 1:

Power, Ground, Serial Data, and Ride Height Switch


Object Number: 1803824  Size: FS
Master Electrical Component List
Air Suspension Description and Operation
Control Module References
Inflator Switch and Position Sensors
B+ Bus
B+ Bus
4WD, BRAKE, CRUISE, HVAC 1, and IGN 3 Fuses
Ignition Switch - ACY/RUN/START, RUN and Start Bus Bars, and CRANK and IGN A Fuses
4WD, BRAKE, CRUISE, HVAC 1, and IGN 3 Fuses
Instrument Panel Dimming - 1 of 5 and LED Dimming - 1 of 2
Instrument Panel Dimming - 3 of 5
G203 - 1 of 3
Power, Ground, DLC and Splice Pack SP205
Solenoid Valves and Ride Height Sensors
G402, G405, and G410
Figure 2:

Inflator Switch and Position Sensors


Object Number: 1803827  Size: FS
Master Electrical Component List
Air Suspension Description and Operation
Control Module References
Solenoid Valves and Ride Height Sensors
Power, Ground, Serial Data, and Ride Height Switch
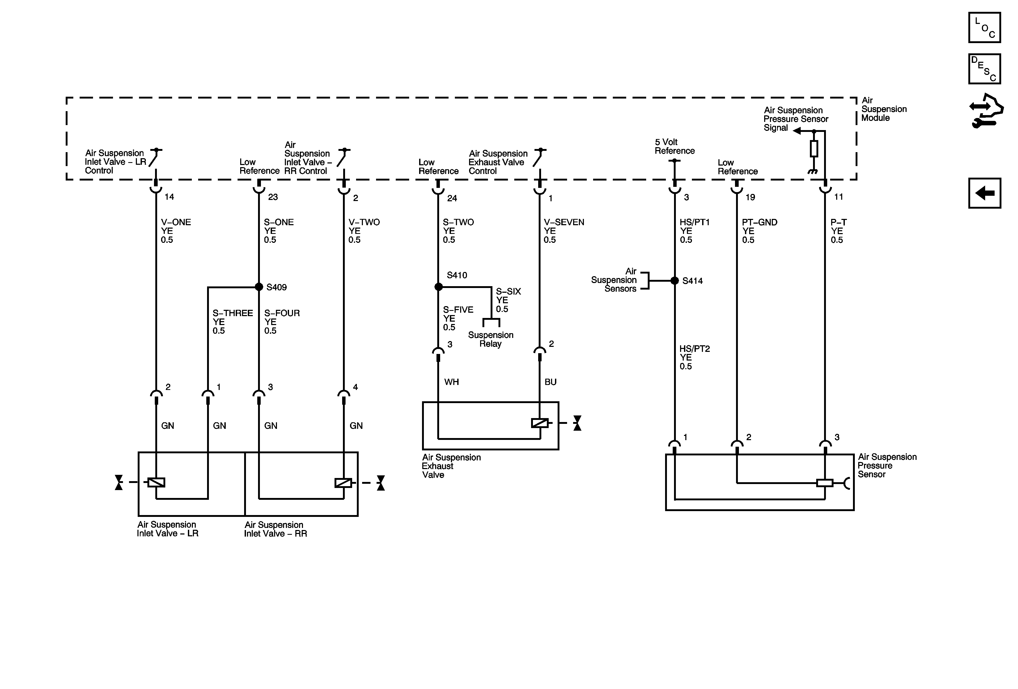
Solenoid Valves and Ride Height Sensors
Figure 3:

Solenoid Valves and Pressure Sensors


Object Number: 1803830  Size: FS
Master Electrical Component List
Air Suspension Description and Operation
Control Module References
Inflator Switch and Position Sensors
Power, Ground, Serial Data, and Ride Height Switch
Inflator Switch and Position Sensors