GM Service Manual Online
For 1990-2009 cars only
Makes
🢒
HUMMER
🢒
2006
🢒
H3
🢒 Driver Door
Driver Door
Driver Door
Master Electrical Component List
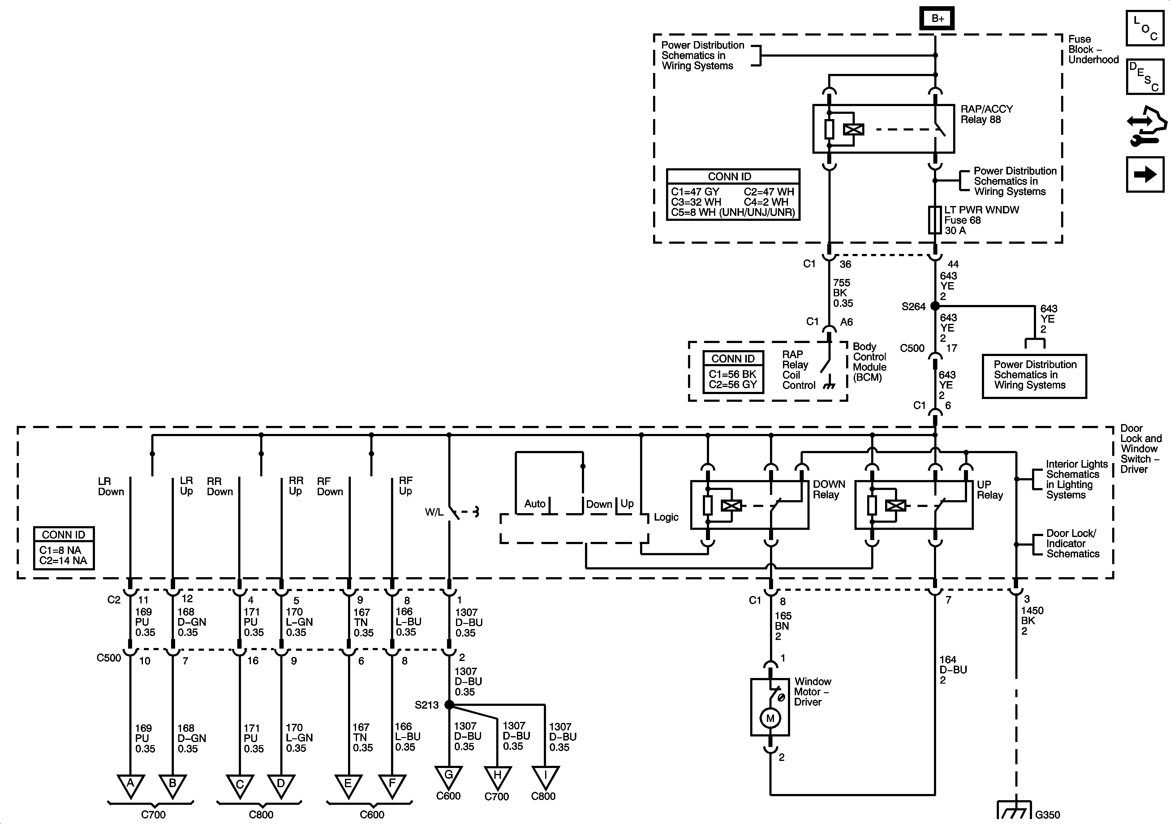
Power Windows Description and Operation
Control Module References
Front Passenger Door
B+ Bus - Underhood Fuse Block - 2 of 2
ETC, LH PWR WNDW, OXY SENSOR, PWR SNRF/WPR/SW, REAR WPR, RH PWR WNDW, RR WSH PMP, and SPO OUTPUT Fuses
ETC, LH PWR WNDW, OXY SENSOR, PWR SNRF/WPR/SW, REAR WPR, RH PWR WNDW, RR WSH PMP, and SPO OUTPUT Fuses
Door Lock and Window Switches
Power Door Locks
G350
Rear Doors
Front Passenger Door
Rear Doors