GM Service Manual Online
For 1990-2009 cars only
Makes
🢒
Holden
🢒
2006
🢒
Viva
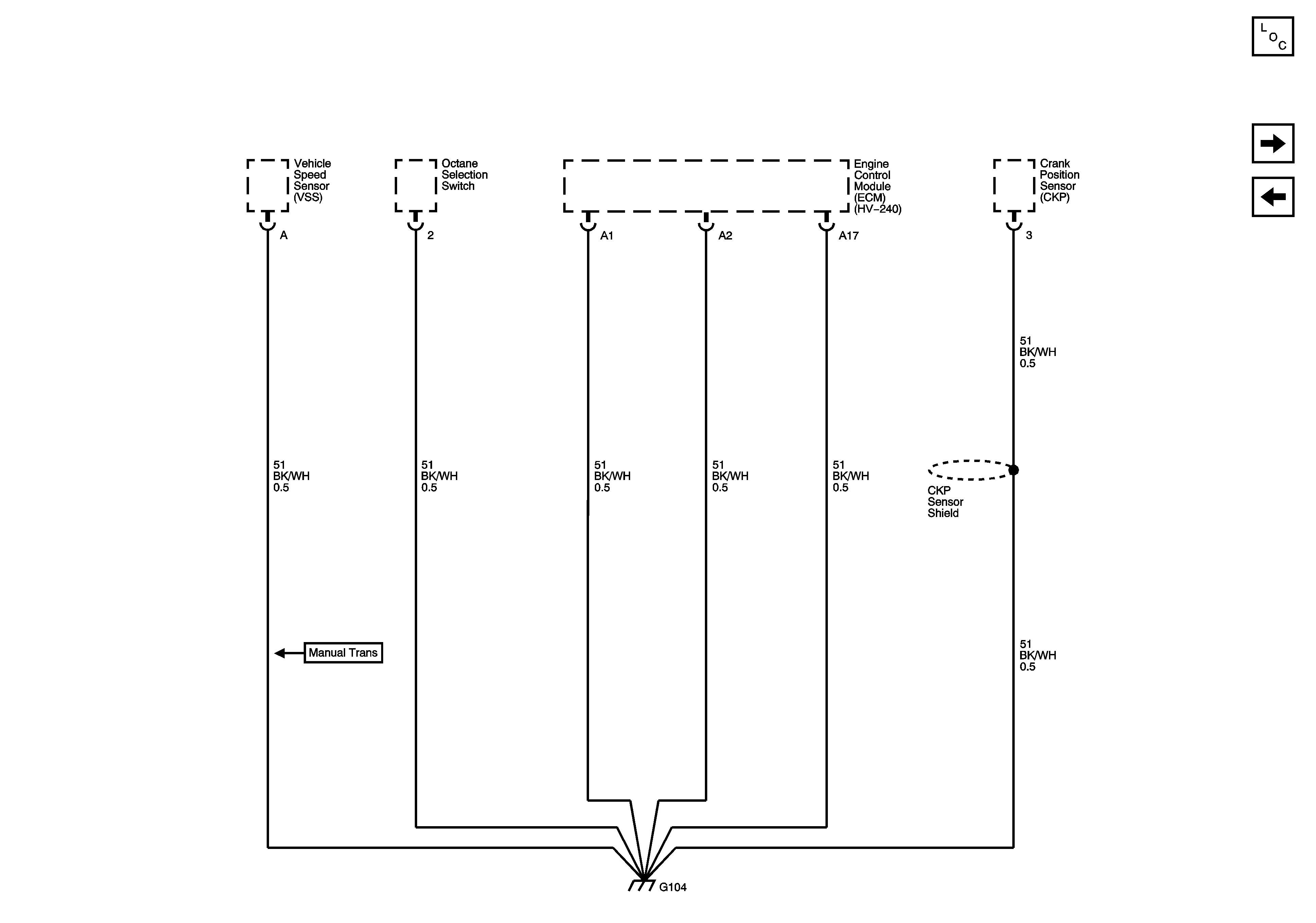
🢒 G104 HV-240
G104 HV-240
G104 - HV-240
Master Electrical Component List
G402 Hatchback Tailgate
G401 Hatchback