GM Service Manual Online
For 1990-2009 cars only
Makes
🢒
Holden
🢒
2008
🢒
Viva
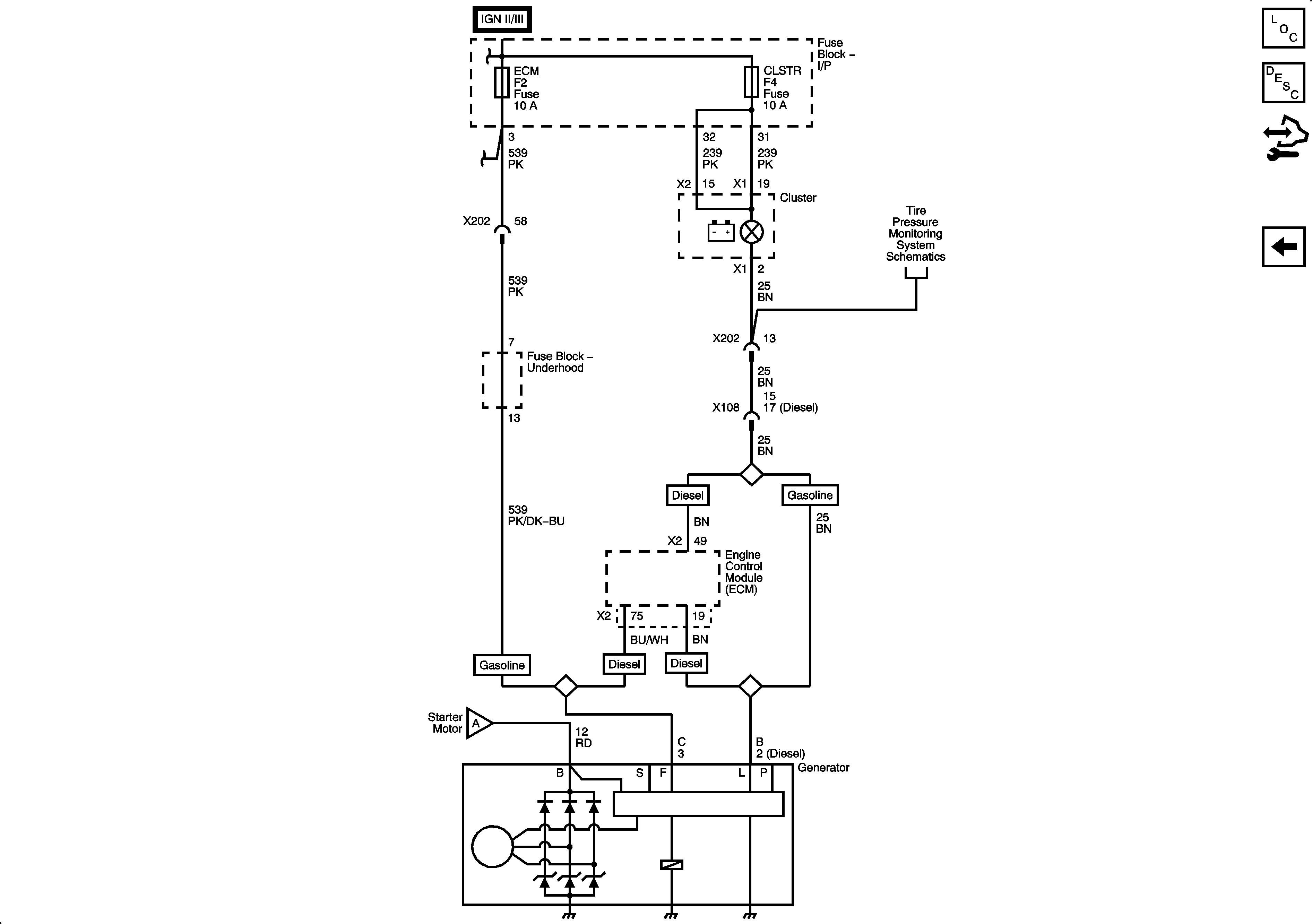
🢒 Charging
Charging
Charging
Master Electrical Component List
Control Module References
Starting
Fuse Block - I/P ECM Fuse
Fuse Block - I/P ECM Fuse
Starting