GM Service Manual Online
For 1990-2009 cars only
Makes
🢒
Holden
🢒
2008
🢒
Viva
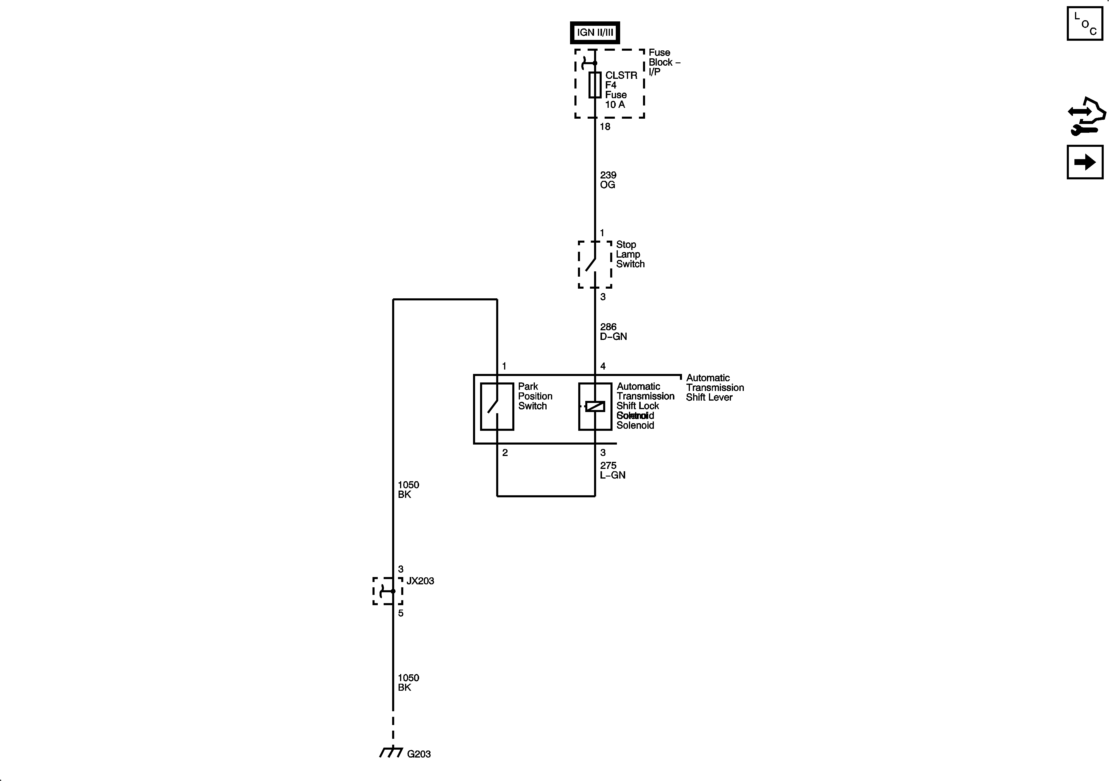
🢒 Automatic Transmission Shift Lock Control w/o Ignition Lock Cylinder Control Actuator
Automatic Transmission Shift Lock Control w/o Ignition Lock Cylinder Control Actuator
Automatic Transmission Shift Lock Control w/o Ignition Lock Cylinder Control Actuator
Master Electrical Component List
Fuse Block - Underhood B+ Bus, 1 of 3
G101
G203