GM Service Manual Online
For 1990-2009 cars only
Makes
🢒
Isuzu
🢒
2003
🢒
Ascender - 2WD
🢒
Transmission/Transaxle
🢒
Automatic Transmission - 4L60-E/4L65-E
🢒 Automatic Transmission Controls Schematics
Figure
1:
Transmission Controls
Master Electrical Component List
Transmission Component and System Description
PNP Switch and Indicator
OBDII Symbol Description Notice
TBC 5, LT DOORS, DDM;, PDM, RT DOORS Fuses
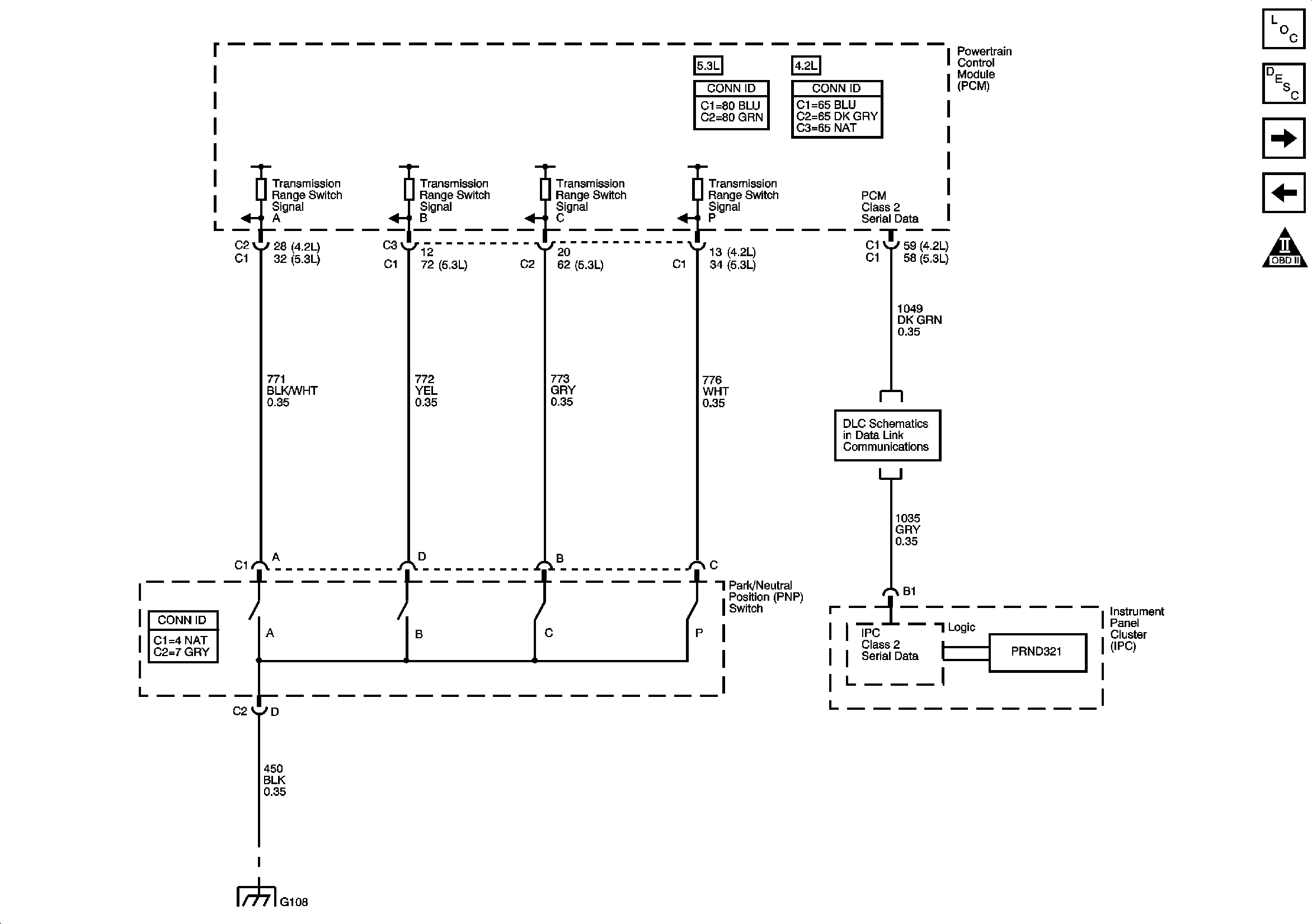
Figure
2:
PNP Switch and Indicator
Master Electrical Component List
Transmission Component and System Description
Vehicle Speed Sensor
Automatic Transmission Controls
OBDII Symbol Description Notice
Data Link Connector
G108
Figure
3:
Vehicle Speed Sensor
Master Electrical Component List
Transmission Component and System Description
PNP Switch and Indicator
OBDII Symbol Description Notice