GM Service Manual Online
For 1990-2009 cars only
Makes
🢒
Isuzu
🢒
2007
🢒
Isuzu MD F-Series
🢒 Splice S321
Splice S321
Splice S321
Master Electrical Component List
Interior Lighting Systems Description and Operation
Control Module References
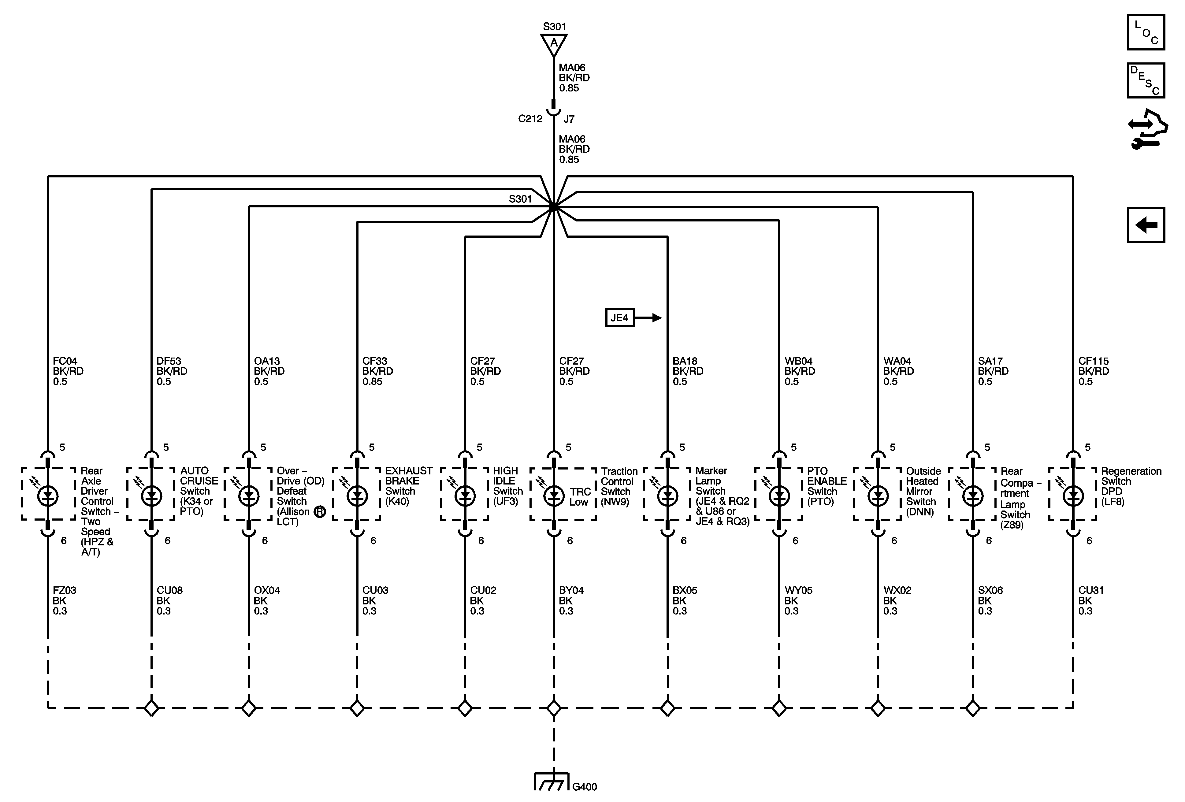
I/P Dimmer Switch and Splice S301
I/P Dimmer Switch and Splice S301
G400 and G402 - 3 of 8