GM Service Manual Online
For 1990-2009 cars only
Makes
🢒
Isuzu
🢒
2007
🢒
Isuzu MD F-Series
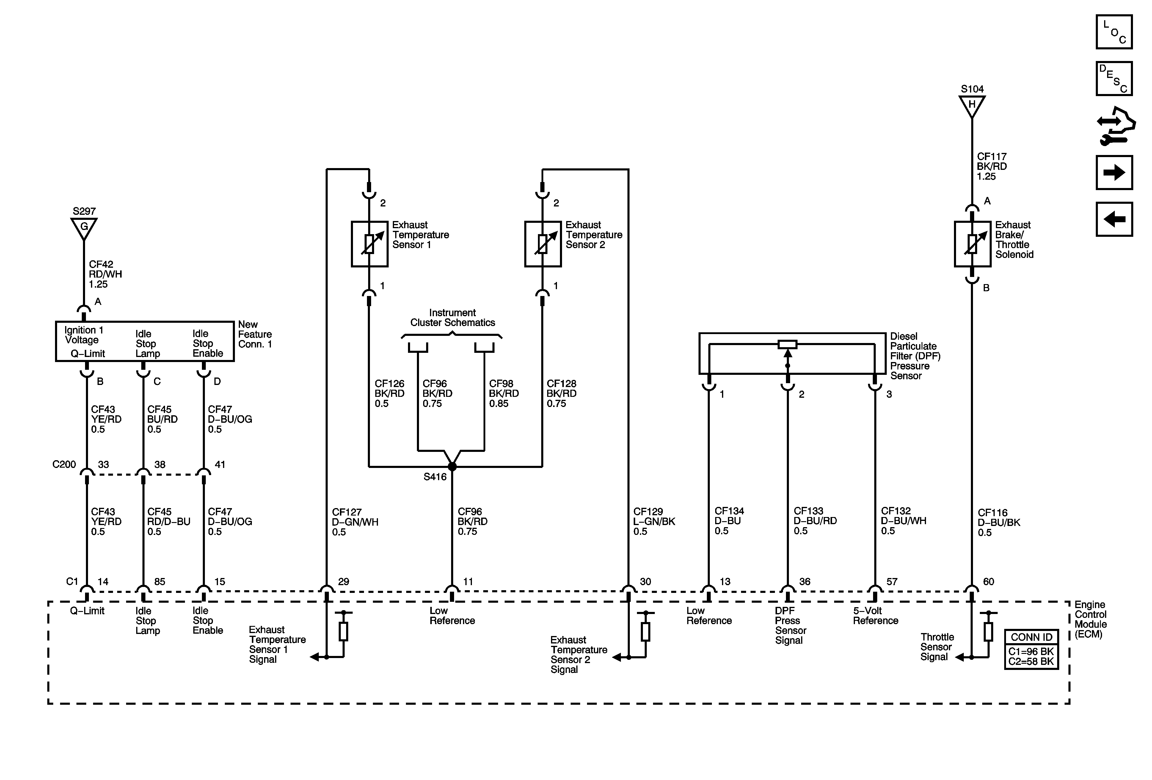
🢒 DPF Sensor, Exhaust Temperature Sensors,Exhaust Brake/Throttle Solenoid
DPF Sensor, Exhaust Temperature Sensors,Exhaust Brake/Throttle Solenoid
DPF Sensor, Exhaust Temperature Sensors, Exhaust Brake/Throttle Solenoid
Master Electrical Component List
Fuel System Description
Control Module References
Fuel Controls - Fuel Injectors
Fuel Controls - Suction Control Valve, Water-In-Fuel/Fuel Temperature Sensors
Module Power, Ground, Serial Data, and MIL
Gages
Module Power, Ground, Serial Data, and MIL