GM Service Manual Online
For 1990-2009 cars only
Makes
🢒
Isuzu
🢒
2001
🢒
Isuzu T-Series (Truck Line C)
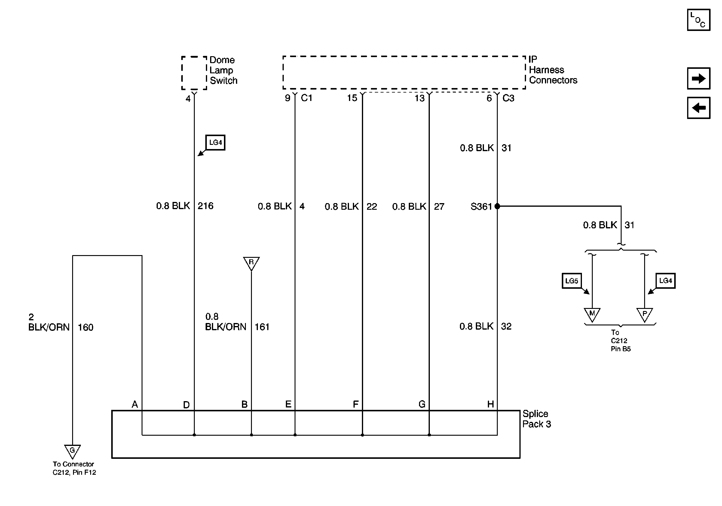
🢒 G105 Continued, Splice Pack 3, S361
G105 Continued, Splice Pack 3, S361
G105 Continued, Splice Pack 3, S361
Master Electrical Component List
G111, S151, S243, S244, S245, S246, S247
G410, S135, S179, S407
G105 Continued, S324, S326, S500
G105 Continued, Splice Pack 2
G105 Continued, Splice Pack 5, S242
G403, G409, S108, S120, S121, S122, S137, S150, S190, S242, S412