GM Service Manual Online
For 1990-2009 cars only
Makes
🢒
Isuzu
🢒
2002
🢒
Isuzu T-Series (Truck Line C)
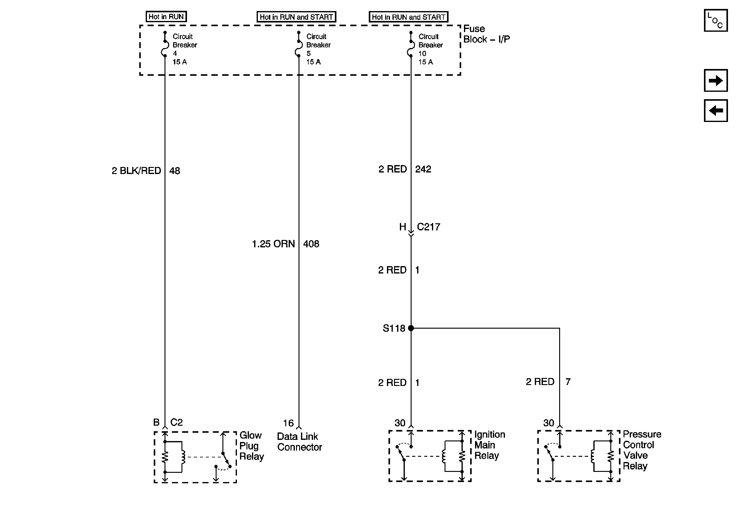
🢒 IP Fuse Block, Curcuit Breakers 4, 5, 10
IP Fuse Block, Curcuit Breakers 4, 5, 10
IP Fuse BLock, Circuit Breakers 4, 5, 10
Master Electrical Component List
IP Fuse Block, Curcuit Breaker 6, Page 1 of 2
IP Fuse Block, Circuit Breakers 1, 2, 3