GM Service Manual Online
For 1990-2009 cars only
Makes
🢒
Isuzu
🢒
2000
🢒
S/T Isuzu - 2WD
🢒
Body and Accessories
🢒
Body Control System
🢒 Antilock Brake System Schematics
Figure
1:
Power and Ground
ABS Components
ABS Description
Class 2 Communication
Power and Grounding Connector End Views
STUD 2, ABS and TBC Fuses
RAP, IGN B Fuses and Ignition Switch
Brake Switch Input
Stoplamp Switch Input
Antilock Brake System Connector End Views
Handling ESD Sensitive Parts Notice
G102
G102
Figure
2:
Class 2 Communication
ABS Components
ABS Description
Wheel Speed Sensors
Power and Ground
Data Link Connector (DLC), PCM/VCM, Engine Oil Pressure Gauge Sensor
Handling ESD Sensitive Parts Notice
SP201 (2.2L)
Body Control System Connector End Views
VCM Connector End Views
Handling ESD Sensitive Parts Notice
Antilock Brake System Connector End Views
Handling ESD Sensitive Parts Notice
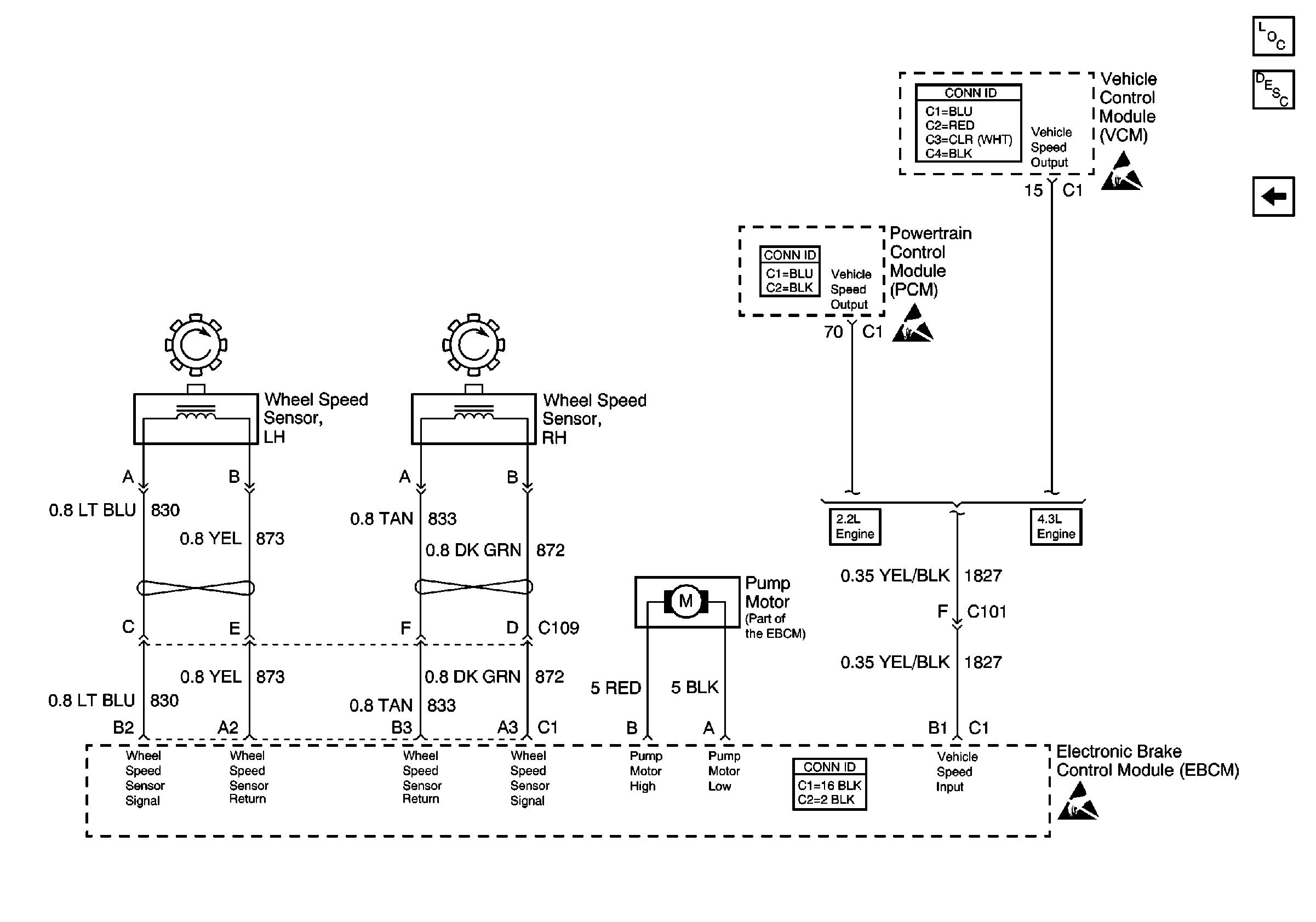
Figure
3:
Wheel Speed Sensors
ABS Components
ABS Description
Class 2 Communication
VCM Connector End Views
Handling ESD Sensitive Parts Notice
Powertrain Control Module Connector End Views
Handling ESD Sensitive Parts Notice
Antilock Brake System Connector End Views
Handling ESD Sensitive Parts Notice