GM Service Manual Online
For 1990-2009 cars only
Makes
🢒
Isuzu
🢒
2000
🢒
S/T Isuzu - 2WD
🢒
Body and Accessories
🢒
Doors
🢒 Door Lock/Indicator Schematics
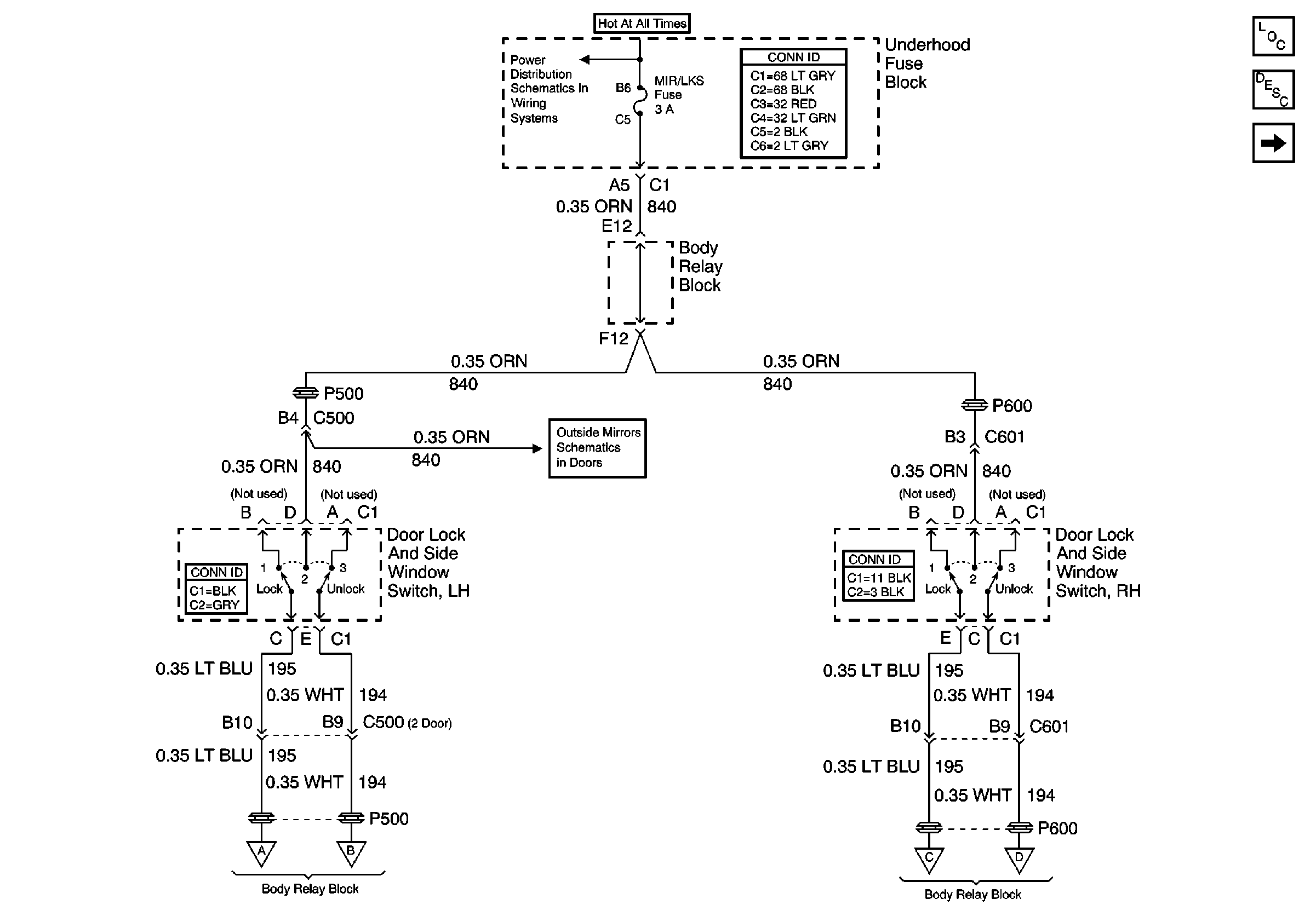
Figure
1:
Door Lock Switch Inputs
Power Door Systems Components
Power Door Locks Circuit Description
Relay Control and Door Lock Actuators
MIR/LKS, FOG LP, LT HDLP, and RT HDLP Fuses
Power and Grounding Connector End Views
Power Door Systems Connector End Views
Outside Rear View Mirror Switch
Power Door Systems Connector End Views
Relay Control and Door Lock Actuators
Relay Control and Door Lock Actuators
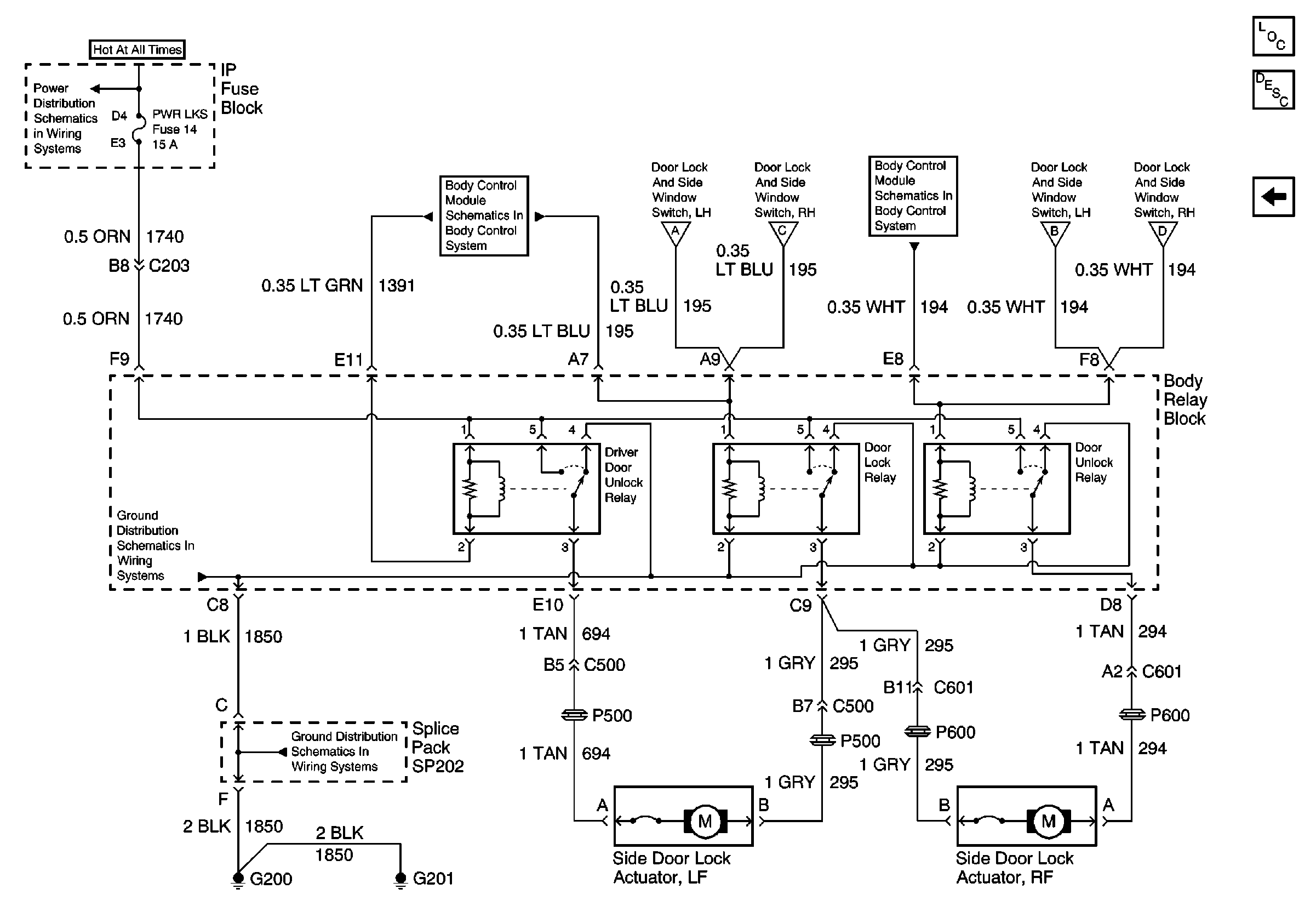
Figure
2:
Relay Control and Door Lock Actuators
Power Door Systems Components
Power Door Locks Circuit Description
Door Lock Switch Inputs
INT BATT, PWR LKS, CTSY LP and CIGAR LTR Fuses
Door Lock/Unlock Relays
Door Lock Switch Inputs
Door Lock/Unlock Relays
Door Lock Switch Inputs
G200, G201 and G207
G200, G201 and G207