GM Service Manual Online
For 1990-2009 cars only
Makes
🢒
Oldsmobile
🢒
2002
🢒
Aurora
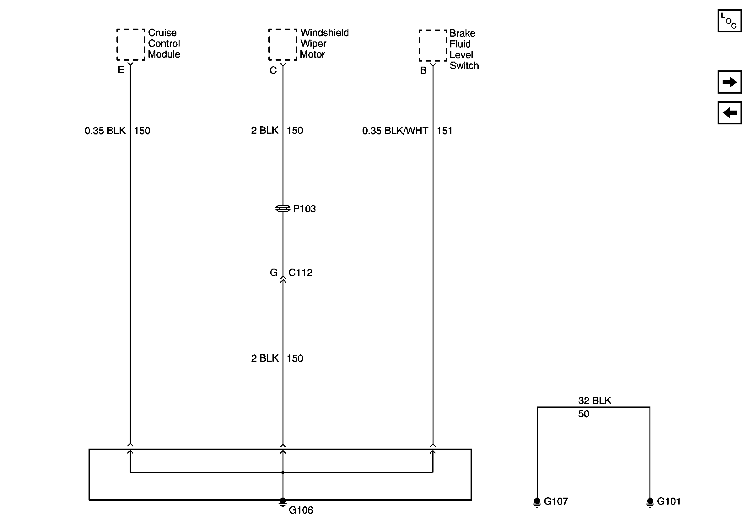
🢒 G106, G107 and G101
G106, G107 and G101
G106, G107 and G101
Master Electrical Component List
G200
G104 and G105, L47