GM Service Manual Online
For 1990-2009 cars only
Figure 1:

Headlamp Switch


Object Number: 537756  Size: FS
Lighting Systems Components
Interior Lights Circuit Description
CTSY LP Fuse and Courtesy Lamp Relay
AUX PWR, RDO BATT and HDLP SW Fuses
Headlamp Grounding Relay and BCM
B+ Bus Bar
Power and Grounding Connector End Views
Handling ESD Sensitive Parts Notice
Body Control System Connector End Views
Headlamp Switch and BCM (Envoy/Diamond Edition 1SK)
Headlamp Switch, Ambient Light Sensor and BCM
Headlamp Switch, Ambient Light Sensor and BCM
G203 and G204 (Utility w/ Automatic A/C)
Park and Turn Signal Lamps, Marker and License Lamps, Rear (Pickup)
Headlamp Switch
Power Door Systems Connector End Views
Power Door Systems Connector End Views
Body Control System Connector End Views
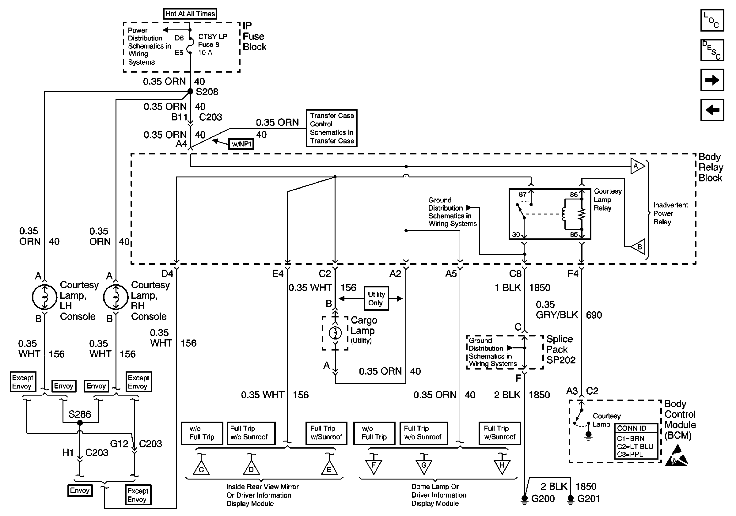
Figure 2:

CTSY LP Fuse and Courtesy Lamp Relay


Object Number: 537760  Size: FS
Lighting Systems Components
Interior Lights Circuit Description
Front Door Jamb and Door Handle Switches
Headlamp Switch
INT BATT Fuse
Power and Ground
G200, G201 and G207 (Utility)
Inadvertent Power Relay
G200, G201 and G207 (Utility)
Body Control System Connector End Views
Handling ESD Sensitive Parts Notice
Inside Rear View Mirror or Driver Information Display Module
Driver Information Display Module (Utility w/o Sunroof)
Driver Information Display Module (Utility w/ Sunroof)
Inside Rear View Mirror or Driver Information Display Module
Driver Information Display Module (Utility w/o Sunroof)
Driver Information Display Module (Utility w/ Sunroof)
Figure 3:

Front Door Jamb and Door Handle Switches


Object Number: 598660  Size: FS
Lighting Systems Components
Interior Lights Circuit Description
Rear Door Jamb and Liftglass Ajar Jamb Switches
CTSY LP Fuse and Courtesy Lamp Relay
Body Control System Connector End Views
Handling ESD Sensitive Parts Notice
G203 and G204 (Utility w/ Automatic A/C)
G200, G201 and G207 (Utility)
G200, G201 and G207 (Utility)
Rear Door Jamb and Liftglass Ajar Jamb Switches
G205 and G206 (Utility)
G202 (Utility)
G202 (Utility)
Instrument Cluster Turn Signal Indicators
G205 and G206 (Utility)
Figure 4:

Rear Door Jamb and Liftglass Ajar Jamb Switches


Object Number: 598669  Size: FS
Lighting Systems Components
Interior Lights Circuit Description
Inadvertent Power Relay
Front Door Jamb and Door Handle Switches
Body Control System Connector End Views
Body Control System Schematic Icons
Rear Jamb Switches, Ignition Key Alarm Switch
Front Door Jamb and Door Handle Switches
G420 and G450 (Utility w/ Endgate)
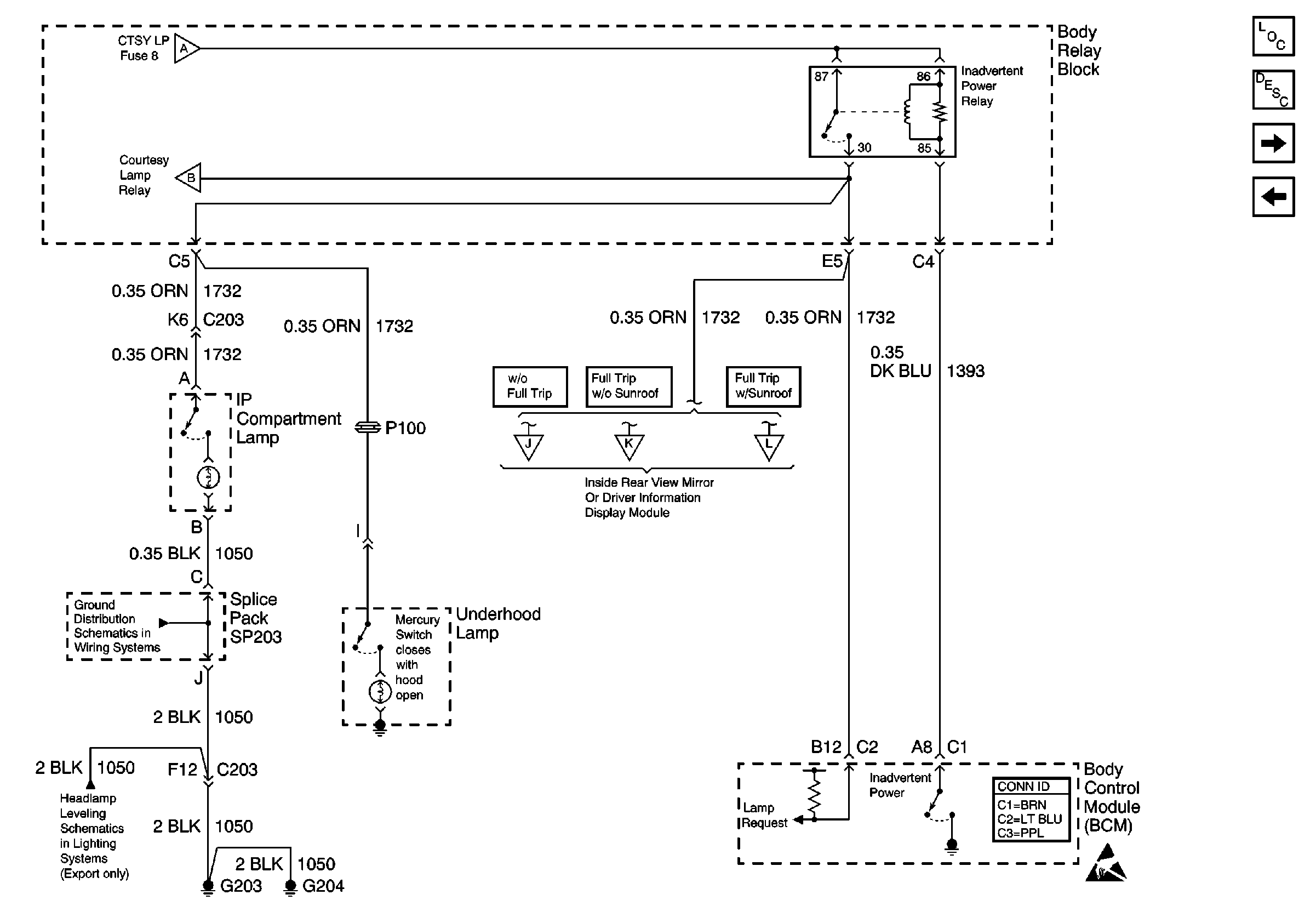
Figure 5:

Inadvertent Power Relay


Object Number: 537761  Size: FS
Lighting Systems Components
Interior Lights Circuit Description
Inside Rear View Mirror or Driver Information Display Module
Rear Door Jamb and Liftglass Ajar Jamb Switches
CTSY LP Fuse and Courtesy Lamp Relay
G203 and G204 (Utility w/ Manual A/C)
2000 S/T Headlight Leveling
Inside Rear View Mirror or Driver Information Display Module
Driver Information Display Module (Utility w/o Sunroof)
Driver Information Display Module (Utility w/ Sunroof)
Body Control System Connector End Views
Handling ESD Sensitive Parts Notice
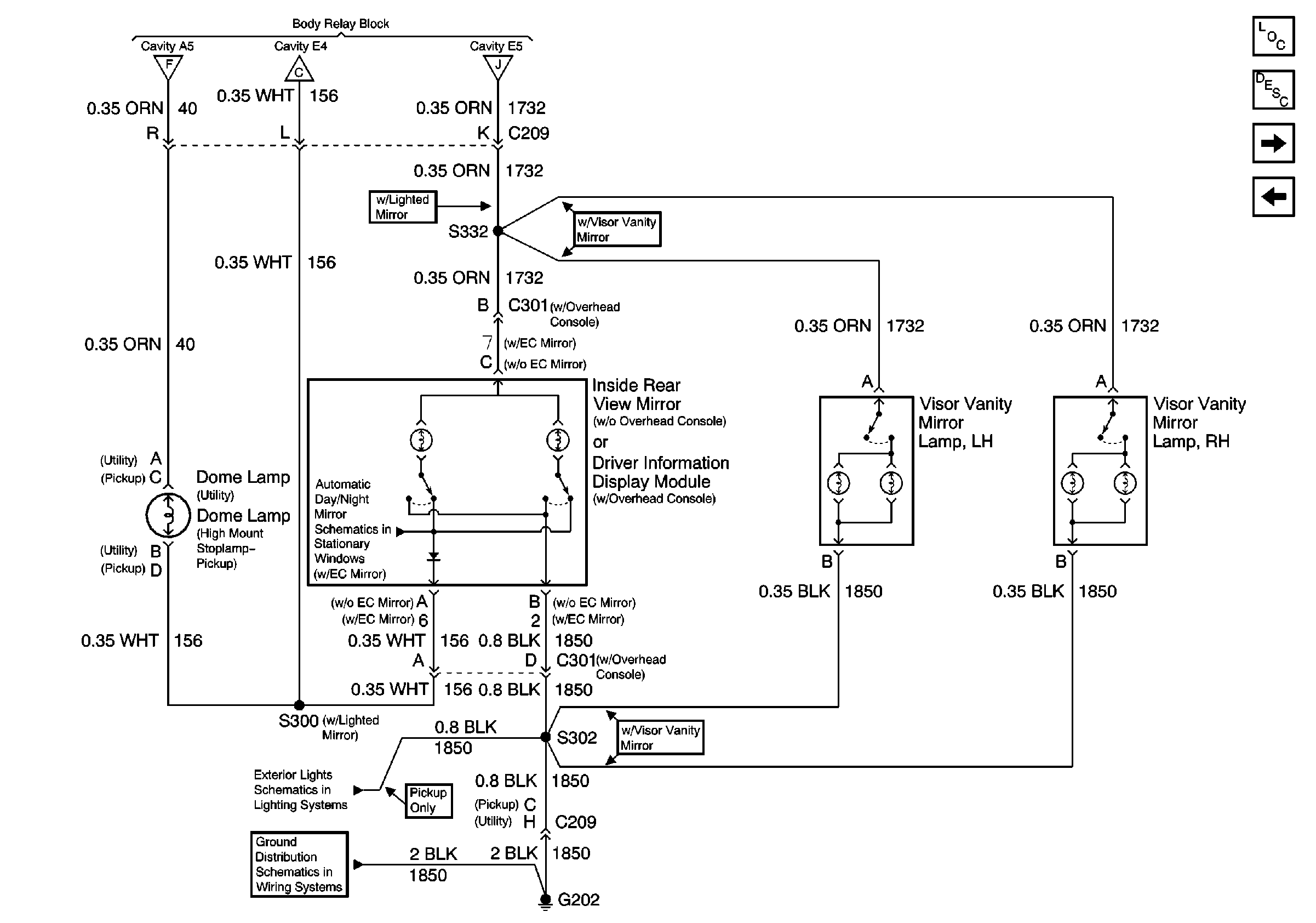
Figure 6:

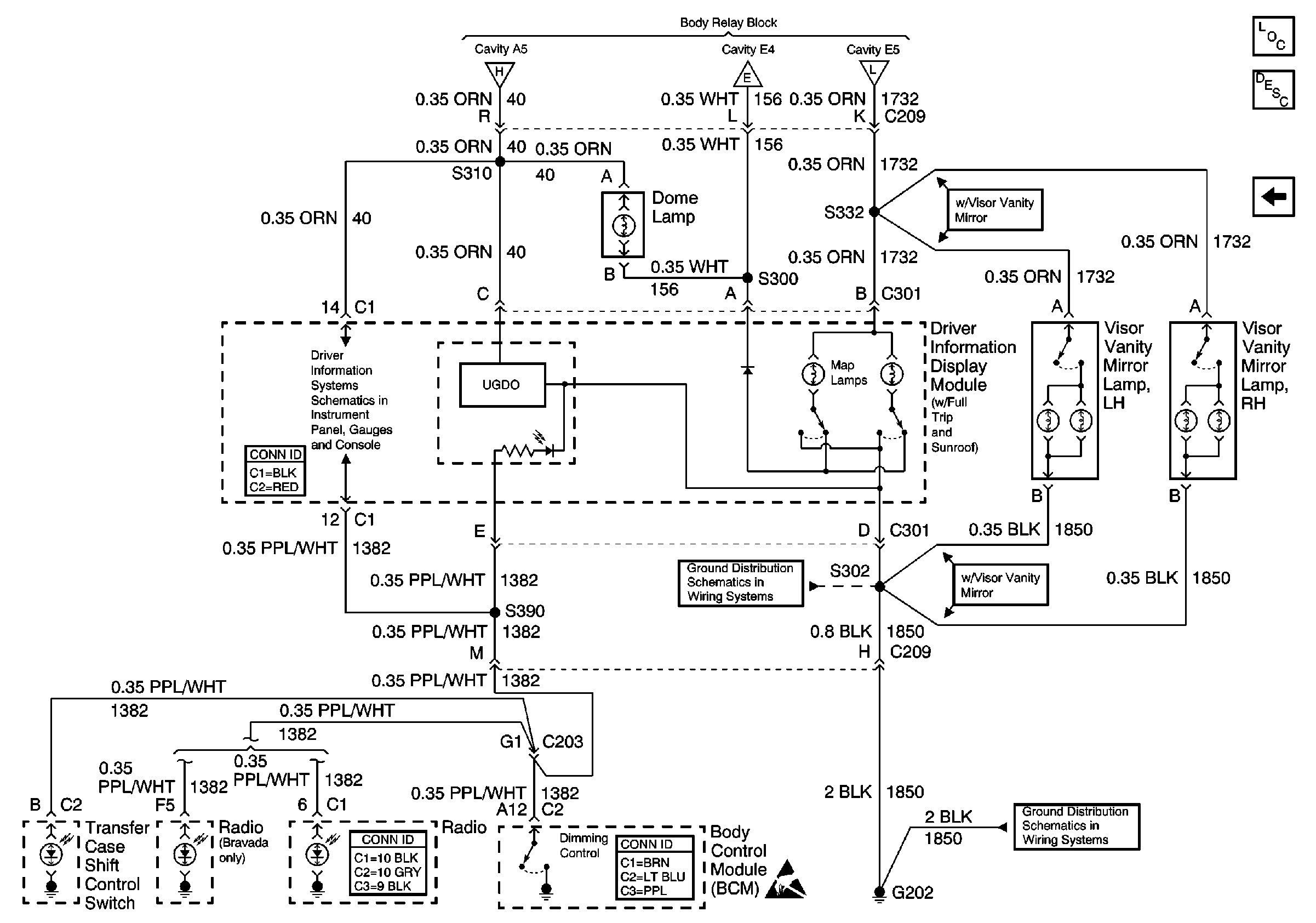
Inside Rear View Mirror or Driver Information Display Module


Object Number: 537763  Size: FS
Lighting Systems Components
Interior Lights Circuit Description
Driver Information Display Module (Utility w/o Sunroof)
Inadvertent Power Relay
CTSY LP Fuse and Courtesy Lamp Relay
Inadvertent Power Relay
Automatic Day-Night Mirrors Schematics
Tail, Stop and License Lamps (Export)
G202 (Pickup)
Figure 7:

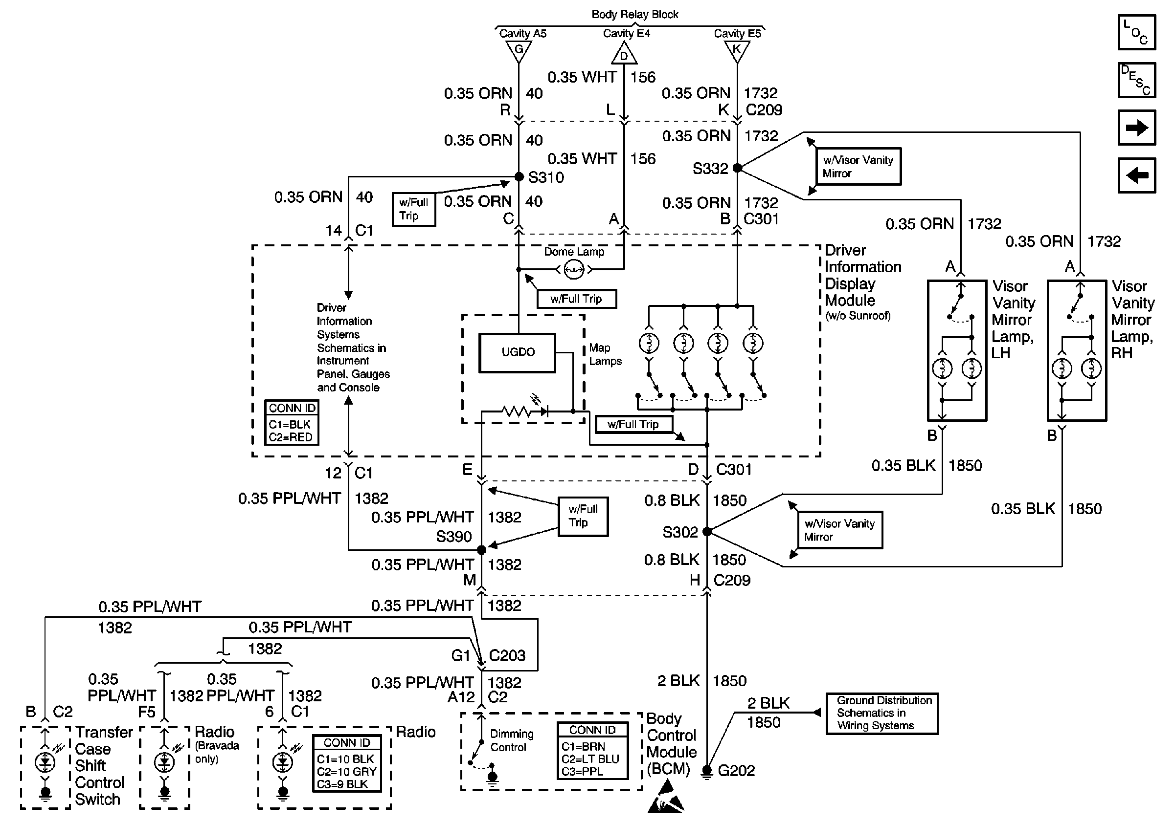
Driver Information Display Module (Utility w/o Sunroof)


Object Number: 537771  Size: FS
Lighting Systems Components
Interior Lights Circuit Description
Driver Information Display Module (Utility w/ Sunroof)
Inside Rear View Mirror or Driver Information Display Module
CTSY LP Fuse and Courtesy Lamp Relay
Inadvertent Power Relay
Driver Information Systems Connector End Views
Power and Ground (w/ Trip Computer)
Entertainment Connector End Views
Body Control System Connector End Views
Handling ESD Sensitive Parts Notice
G202 (Utility)
Figure 8:

Driver Information Display Module (Utility w/ Sunroof)


Object Number: 537775  Size: FS
Lighting Systems Components
Interior Lights Circuit Description
Driver Information Display Module (Utility w/o Sunroof)
CTSY LP Fuse and Courtesy Lamp Relay
CTSY LP Fuse and Courtesy Lamp Relay
Inadvertent Power Relay
Power and Ground (w/ Trip Computer)
Driver Information Systems Connector End Views
G202 (Utility)
Entertainment Connector End Views
Body Control System Connector End Views
Handling ESD Sensitive Parts Notice
G202 (Utility)