GM Service Manual Online
For 1990-2009 cars only
Makes
🢒
Oldsmobile
🢒
2003
🢒
Bravada
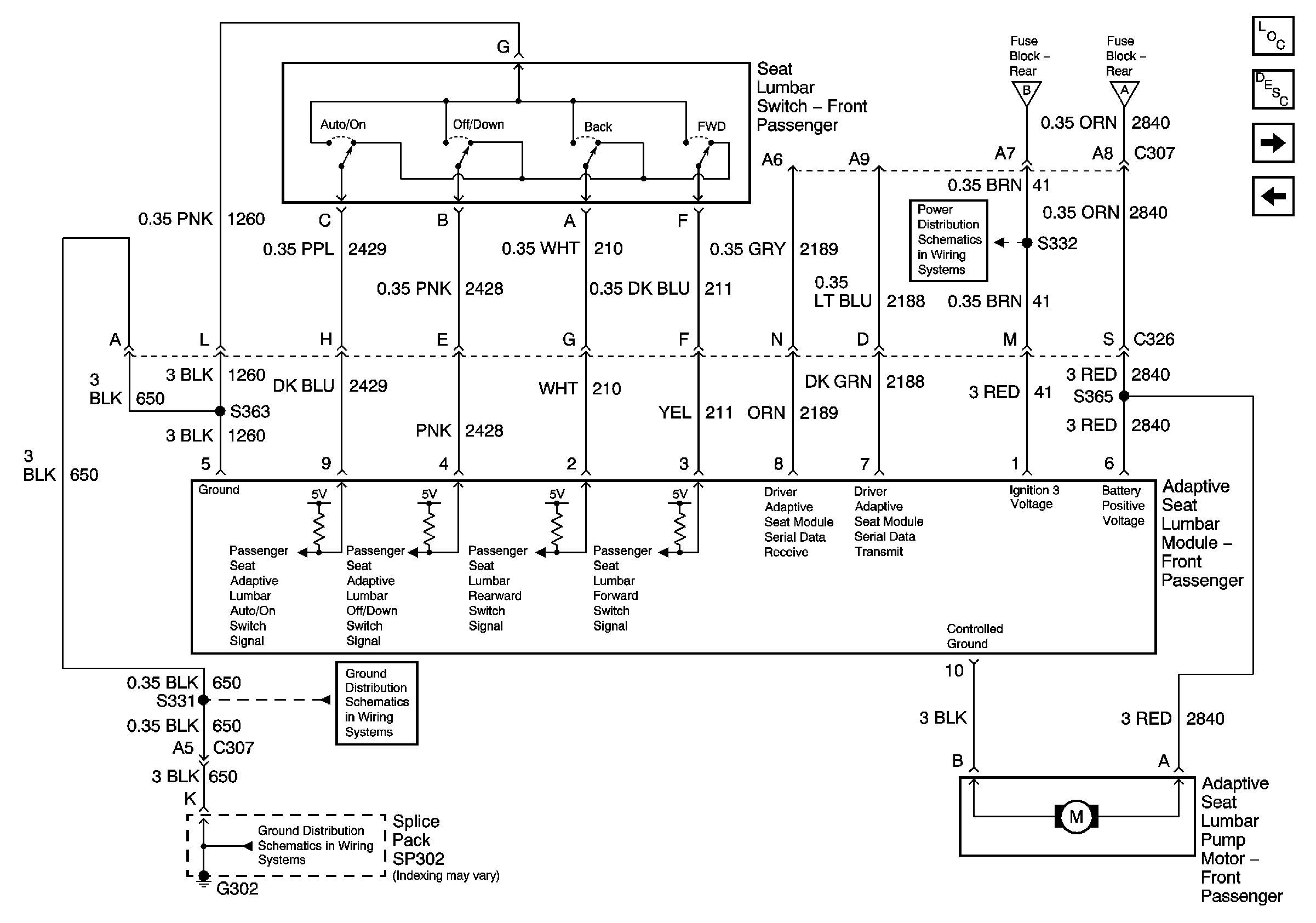
🢒 Passenger Adaptive Seat (w/ AC9)
Passenger Adaptive Seat (w/ AC9)
Passenger Adaptive Seat (AC9)
Master Electrical Component List
Lumbar Support Description and Operation with AC9
Driver Seat (w/ AM3)
Driver Adaptive Seat (w/ AC9)
G302 (1 of 3)
Driver Adaptive Seat (w/ AC9)
Driver Adaptive Seat (w/ AC9)
Driver Adaptive Seat (w/ AC9)