GM Service Manual Online
For 1990-2009 cars only
Makes
🢒
Opel
🢒
2007
🢒
GT
🢒 High Speed LAN
High Speed LAN
High Speed LAN
Master Electrical Component List
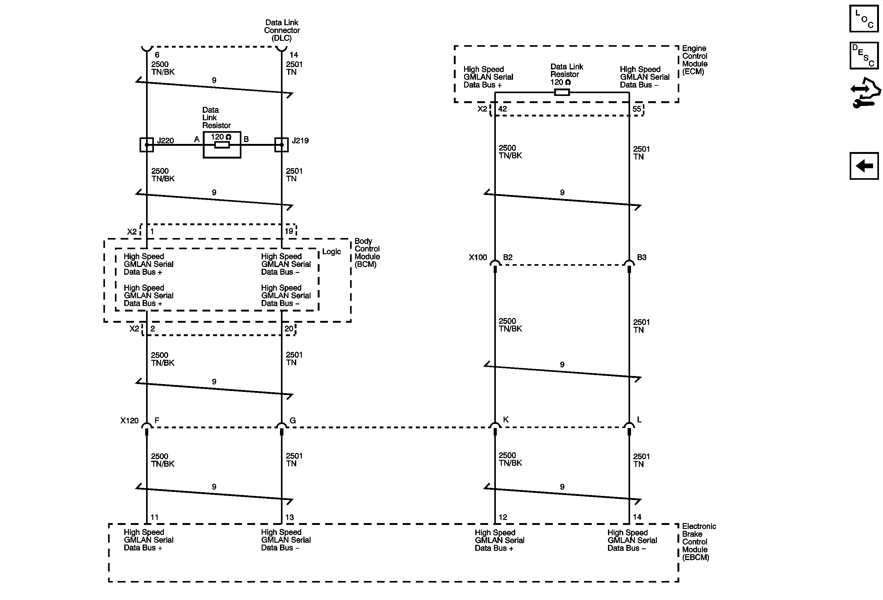
Data Link Communications Description and Operation
Control Module References
Low Speed LAN