GM Service Manual Online
For 1990-2009 cars only
Makes
🢒
Opel
🢒
2008
🢒
GT
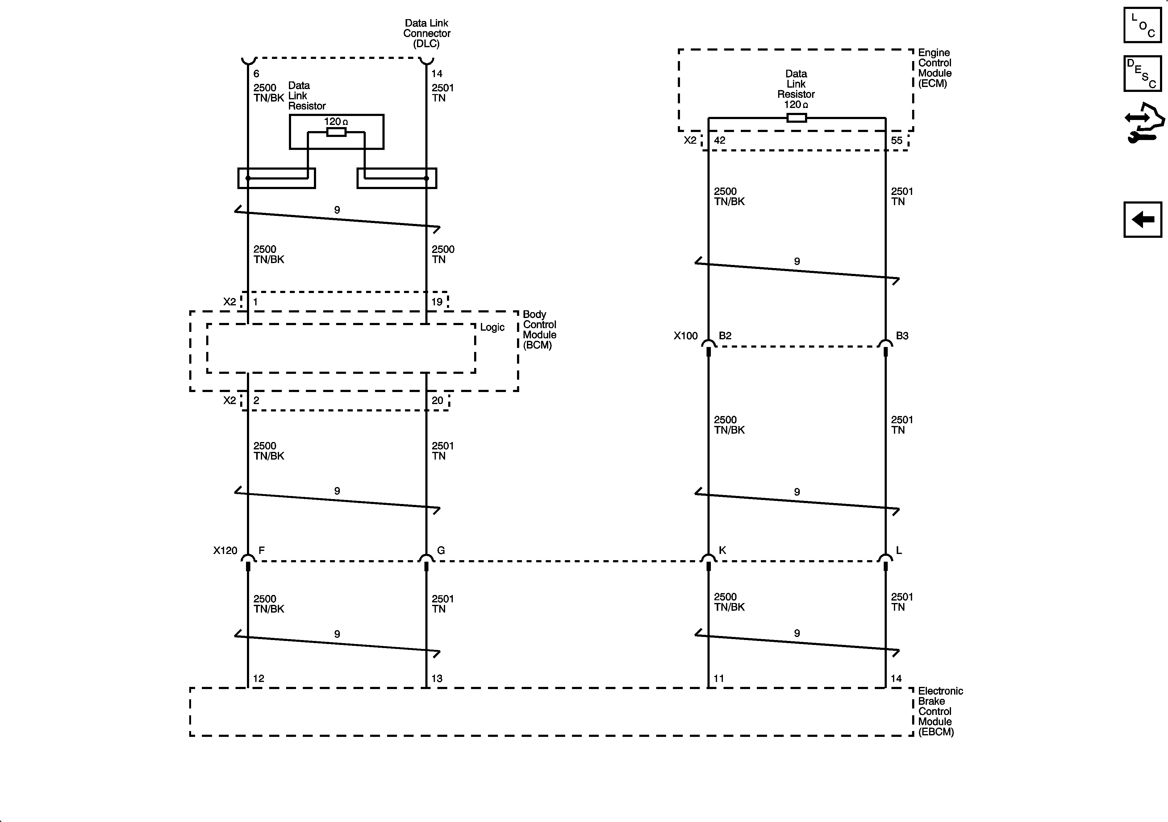
🢒 High Speed LAN
High Speed LAN
High Speed LAN
Master Electrical Component List
Data Link Communications Description and Operation
Control Module References
Low Speed LAN
Engine Data Sensors - Electronic Throttle Controls
Engine Data Sensors - Electronic Throttle Controls
Engine Data Sensors - Electronic Throttle Controls
Engine Data Sensors - Electronic Throttle Controls
Engine Data Sensors - Electronic Throttle Controls
Engine Data Sensors - Electronic Throttle Controls