GM Service Manual Online
For 1990-2009 cars only
Makes
🢒
Pontiac
🢒
2000
🢒
Bonneville
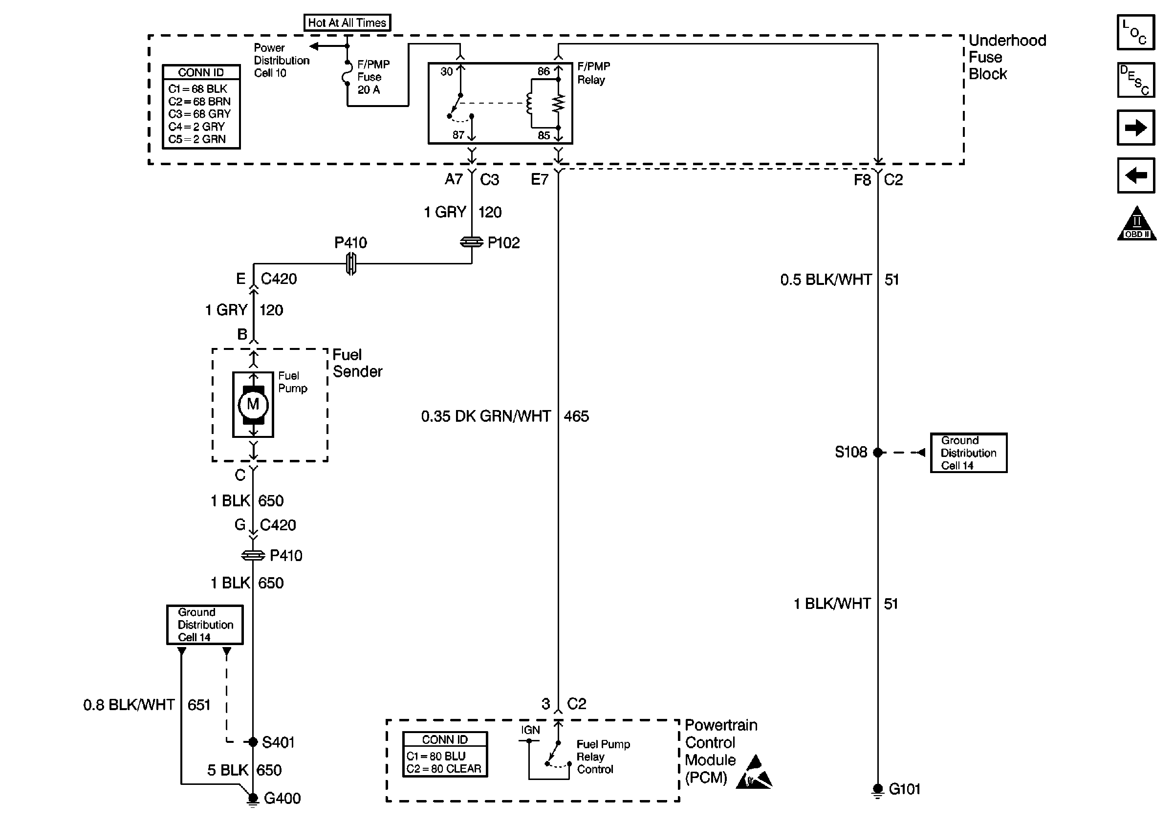
🢒 Cell 20: Fuel Control (VIN 1)
Cell 20: Fuel Control (VIN 1)
Cell 20: Fuel Control (VIN 1)
Engine Controls Components
Powertrain Control Module Description
Cell 20: Fuel Injectors
Cell 20: Ignition Control
OBDII Symbol Description Notice
Handling ESD Sensitive Parts Notice
Cell 14: G101, G102 and G103
Cell 14: G400 (1 of 2)
Cell 10: F/Pump Fuse
Powertrain Control Module Connector End Views
Power and Grounding Connector End Views