GM Service Manual Online
For 1990-2009 cars only
Makes
🢒
Pontiac
🢒
2007
🢒
G5
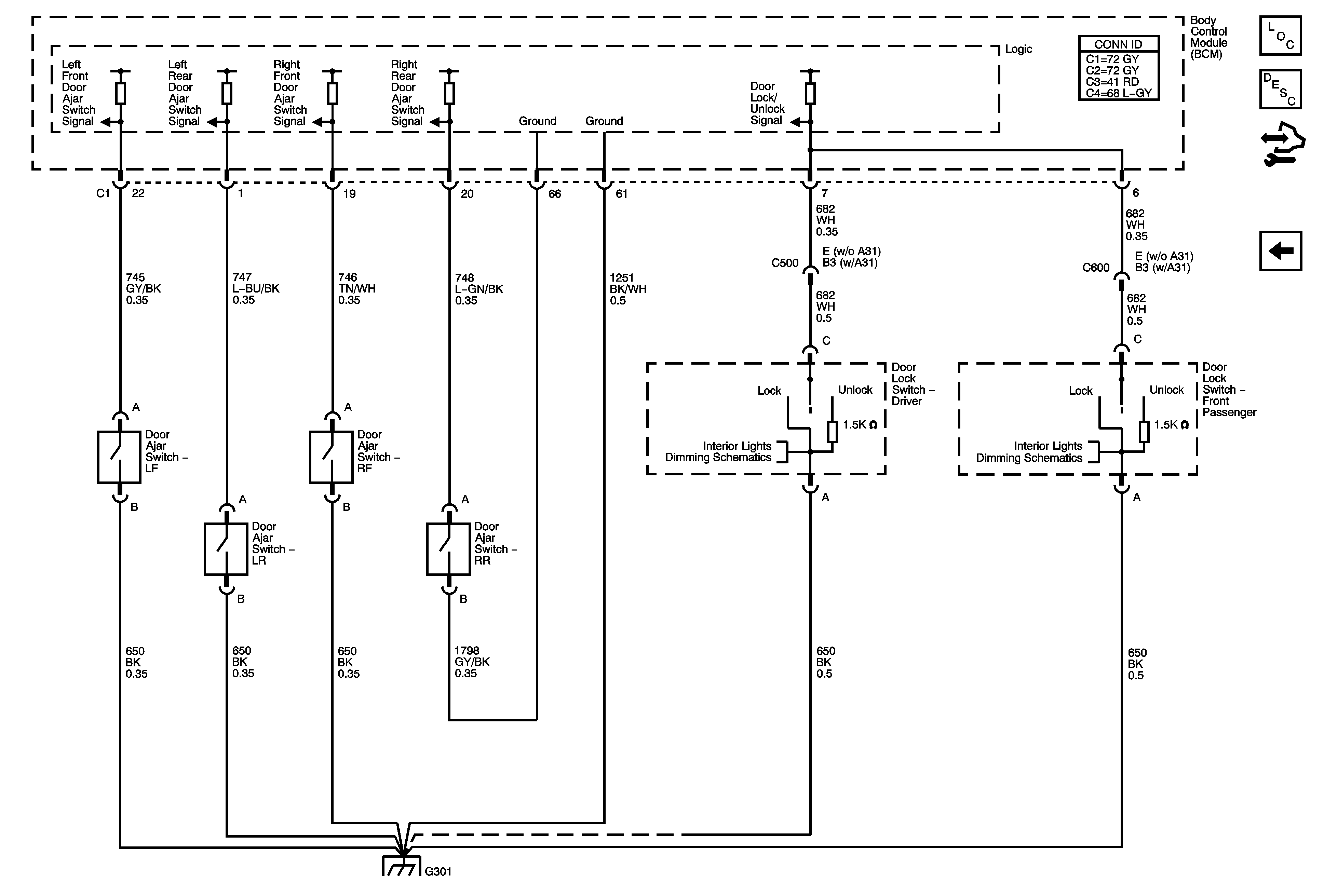
🢒 Door Switches
Door Switches
Door Switches
Master Electrical Component List
Power Door Locks Description and Operation
Control Module References
Door Latches
Door and Seat Lighting
Door and Seat Lighting
G301 (2 of 2)