GM Service Manual Online
For 1990-2009 cars only
Figure 1:

DLC, Ground, Indicators and Power


Object Number: 1630478  Size: FS
Master Electrical Component List
ABS Description and Operation
Control Module References
Sensors
Low Speed Serial Data
Power, Ground, Serial Data, High Speed GMLAN
Underhood Fuse Block RUN/CRANK Relay, ABS, IGN 1, INJ, PCM IGN 1 and TRANS Fuses
G109
G109
Figure 2:

Sensors


Object Number: 1630480  Size: FS
Master Electrical Component List
ABS Description and Operation
Control Module References
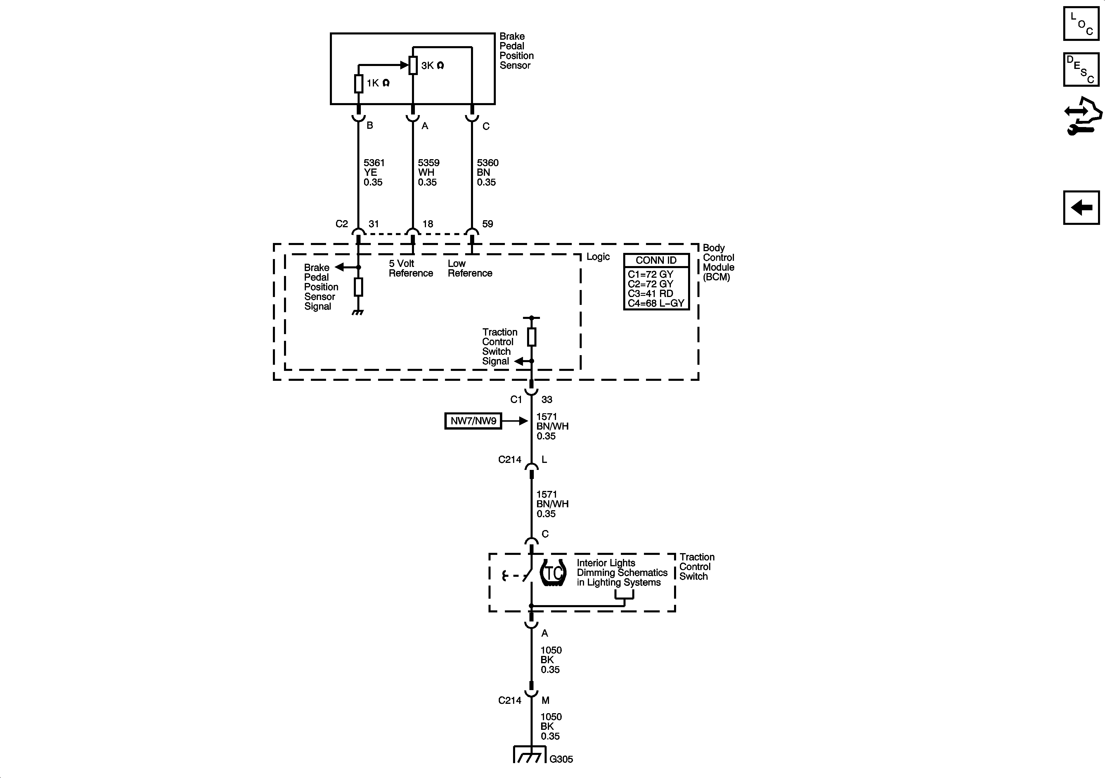
Brake Pedal Position Sensor and Traction Control Switch
DLC, Ground, Indicators, and Power
Figure 3:

Brake Pedal Position Sensor and Traction Control Switch


Object Number: 1740743  Size: FS
Master Electrical Component List
ABS Description and Operation
Control Module References
Sensors
Seats and Center Console
G304 and G305