GM Service Manual Online
For 1990-2009 cars only

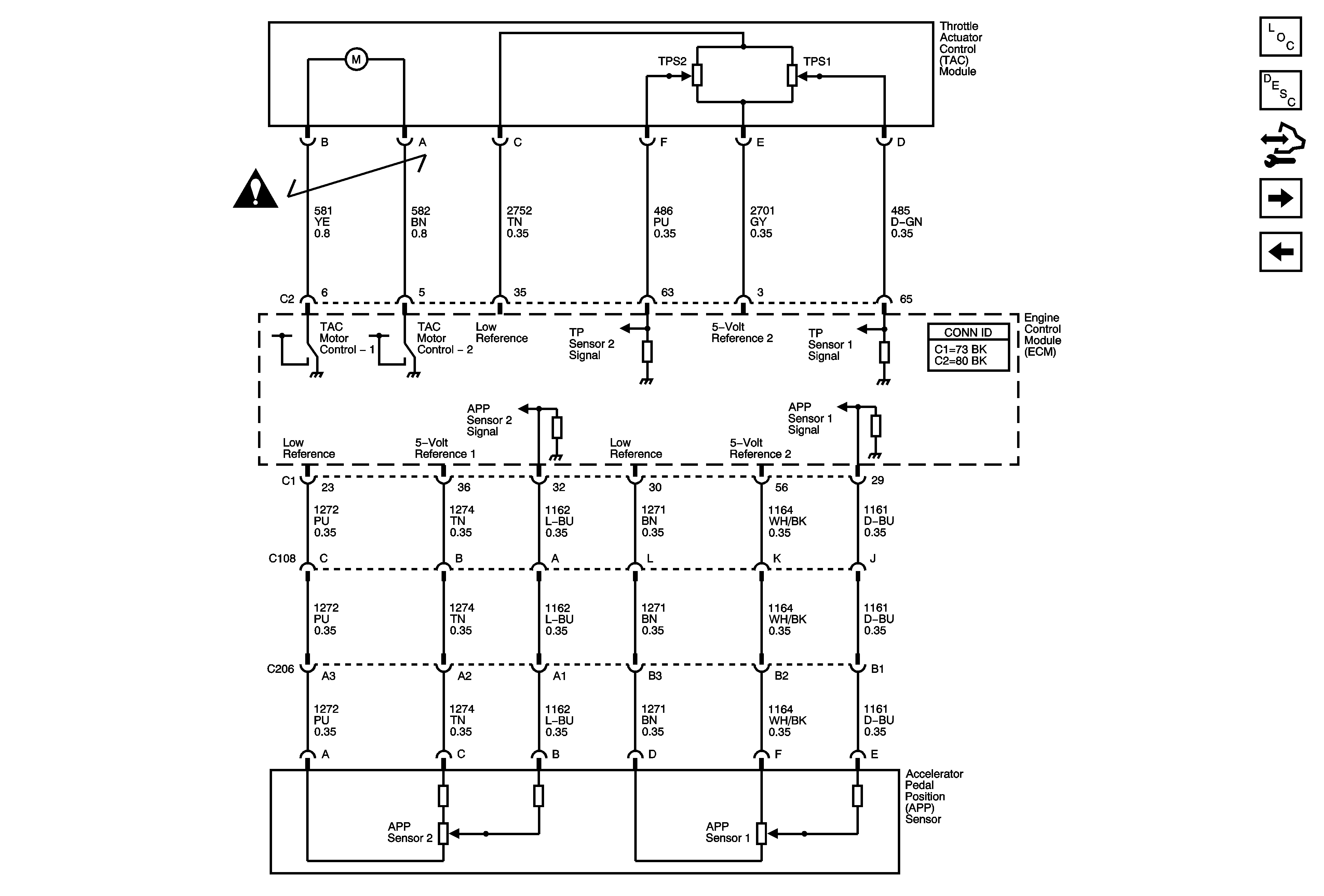
Electronic Throttle Controls

Electronic Throttle Controls


Object Number: 1771395  Size: FS
Master Electrical Component List
Throttle Actuator Control (TAC) System Description
Control Module References
Ignition System
Heated Oxygen Sensors
Engine Controls Schematic Icons