GM Service Manual Online
For 1990-2009 cars only

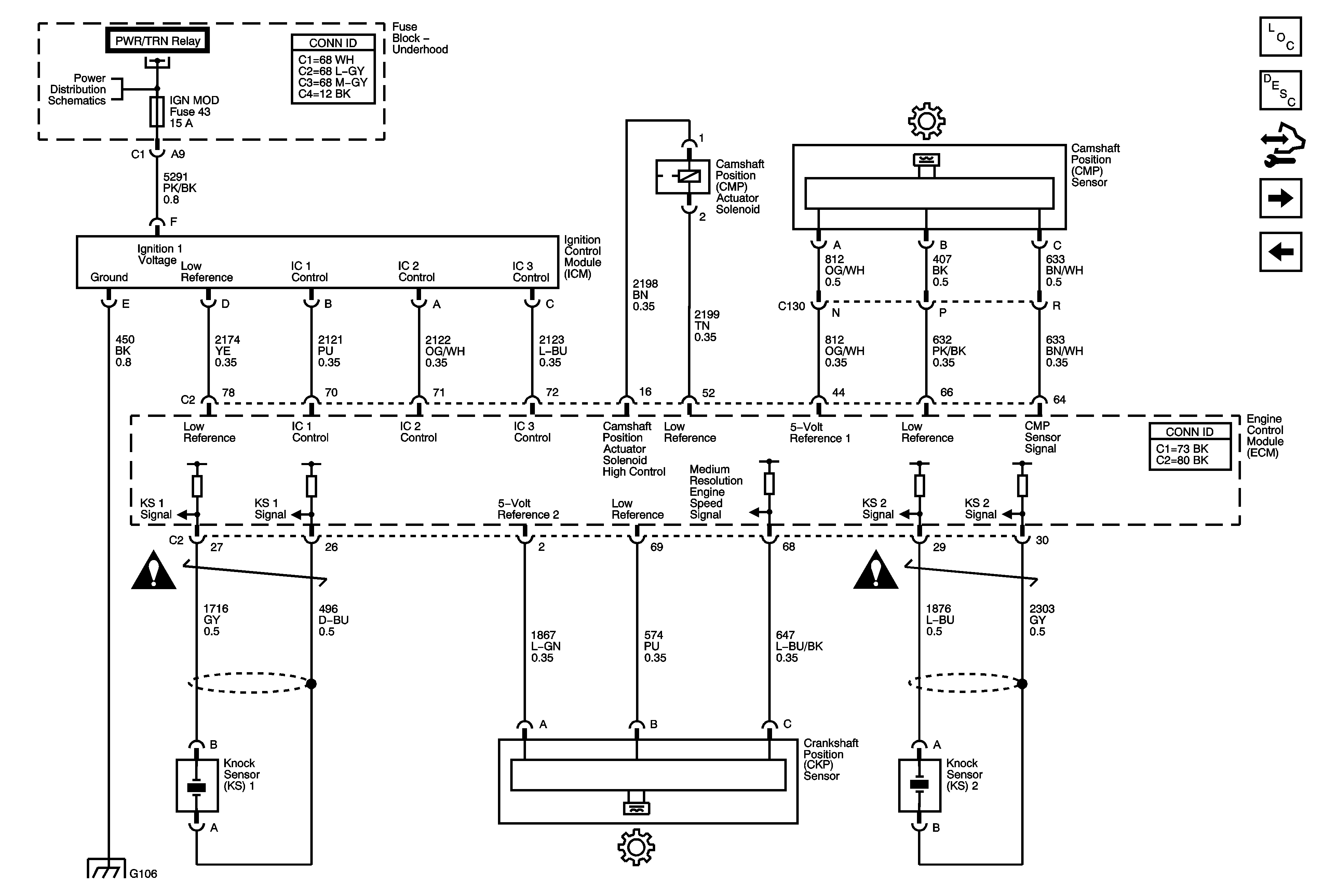
Ignition System

Ignition System


Object Number: 1771398  Size: FS
Master Electrical Component List
Electronic Ignition (EI) System Description
Control Module References
Fuel Injectors and Fuel Pump
Electronic Throttle Controls
Underhood Fuse Block A/C CLUTCH and PWR/TRN Relays, EMISSION 1, ETC, IGN MOD and IMTV/DOD Fuses
Engine Controls Schematic Icons
Engine Controls Schematic Icons
G106