GM Service Manual Online
For 1990-2009 cars only
Makes
🢒
Pontiac
🢒
2004
🢒
Grand Prix
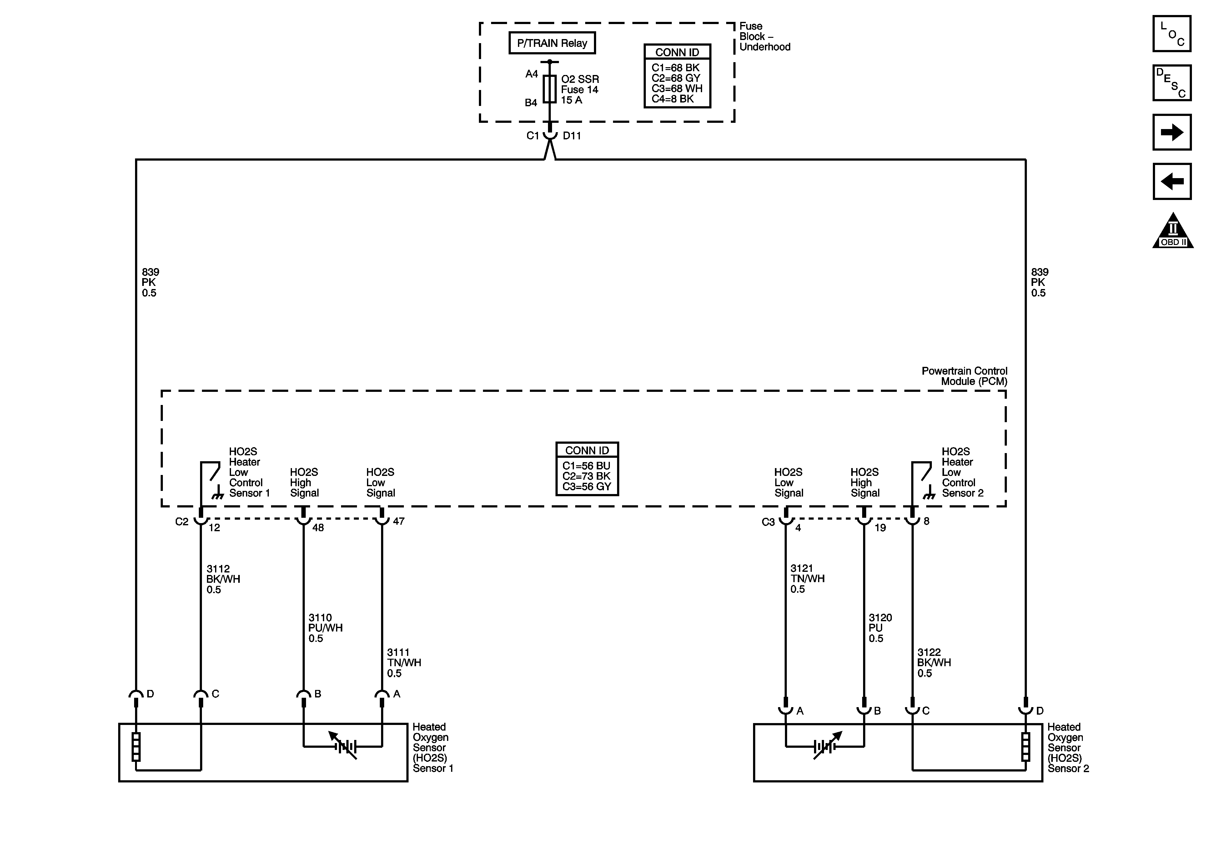
🢒 Heated Oxygen Sensors
Heated Oxygen Sensors
Heated Oxygen Sensors
Master Electrical Component List
Evaporative Emission Control System Description
Electronic Throttle Controls
IAT/MAF Sensor, Super Charger Boost Control Solenoid, and A/T Controls VSS References
Engine Controls Schematic Icons
PCM Power, Ground, MIL, and Serial Data