GM Service Manual Online
For 1990-2009 cars only
Makes
🢒
Pontiac
🢒
2007
🢒
Solstice
🢒 Data Link, Ground, Indicator, Power, and Sensors
Data Link, Ground, Indicator, Power, and Sensors
Data Link, Ground, Indicator, Power, and Sensors
Master Electrical Component List
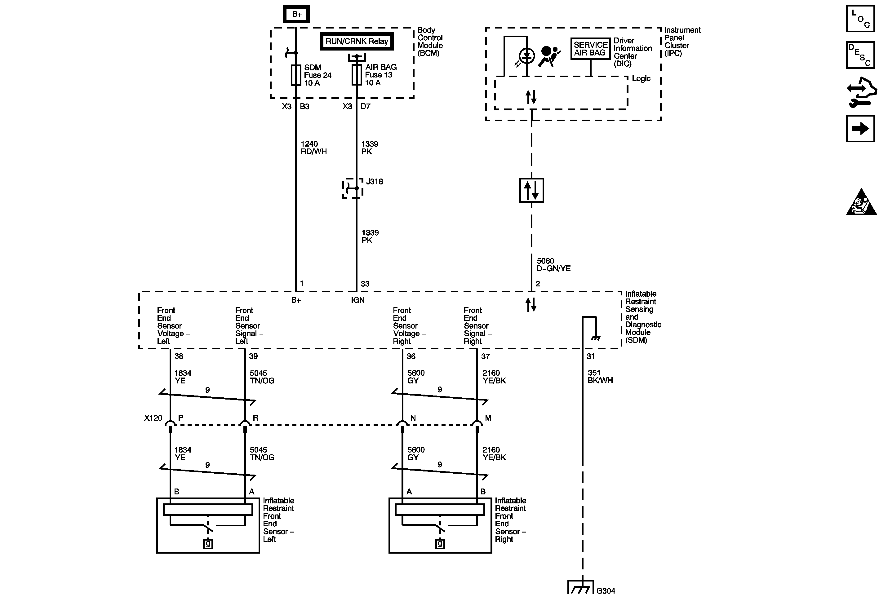
SIR System Description and Operation
Control Module References
Deployment Loops
SIR Schematic Icons
TANK VENT, OUTLET, IP IGN, BACKUP, ABS, and ECM TRANS Fuses
WINDOWS, DOOR LKS, INT LPS, ECM/TCM, RADIO, and SDM Fuses
Data Communication Schematics
G103, G304, G105, G104, and G106