GM Service Manual Online
For 1990-2009 cars only
Makes
🢒
Pontiac
🢒
2007
🢒
Torrent
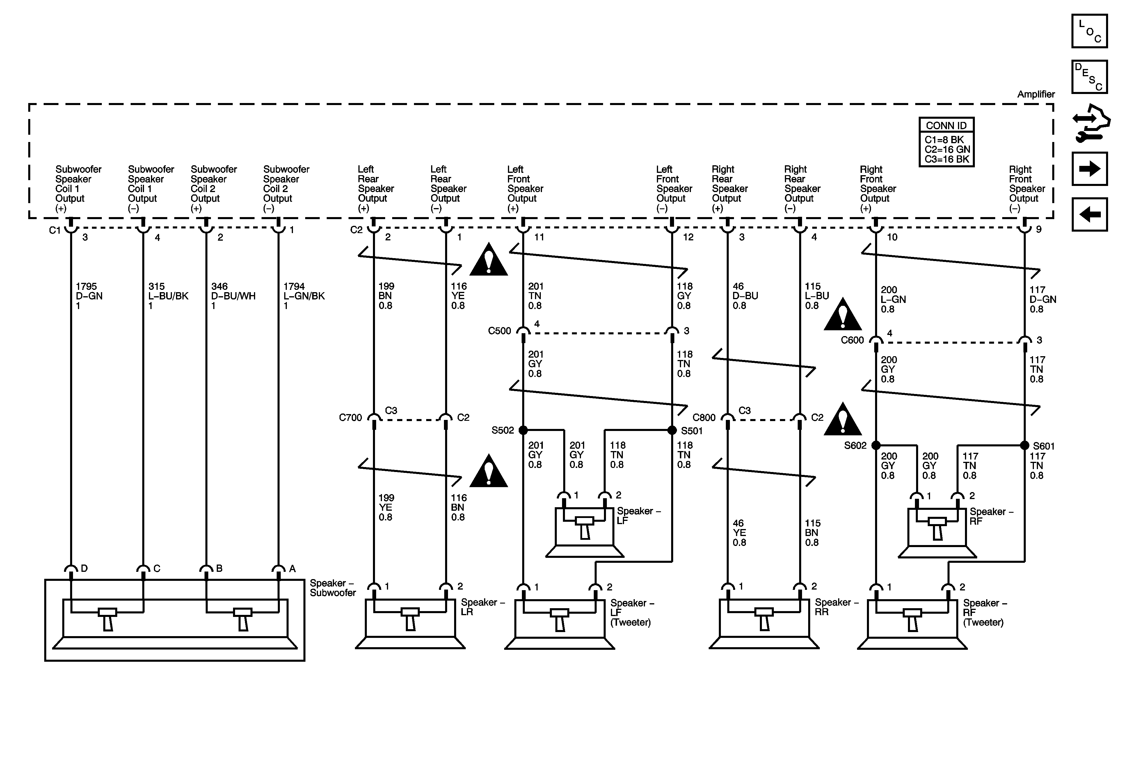
🢒 Radio w/U65 - 2 of 2
Radio w/U65 - 2 of 2
Radio w/U65 -- 2 of 2
Master Electrical Component List
Radio/Audio System Description and Operation
Control Module References
Digital Radio Receiver (U2K)
Radio w/U65 - 1 of 2