GM Service Manual Online
For 1990-2009 cars only
Makes
🢒
Saturn
🢒
2007
🢒
AURA
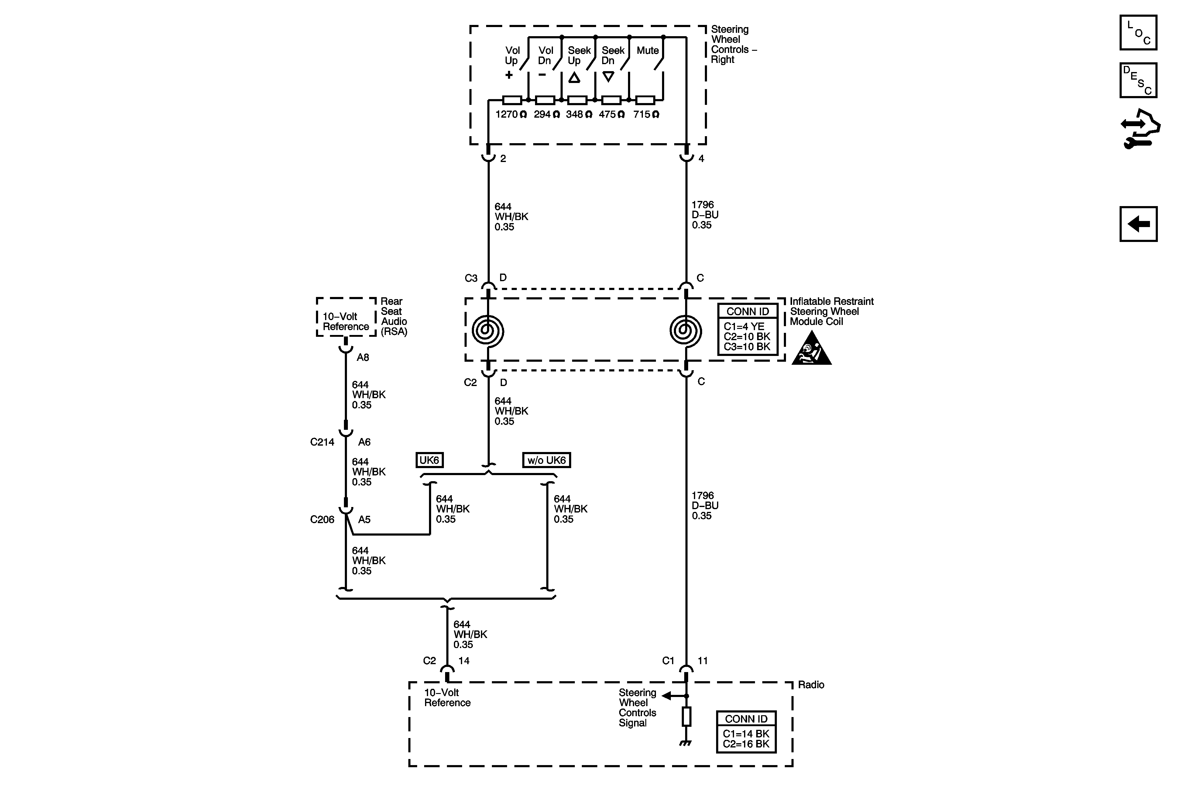
🢒 Redundant Radio Controls
Redundant Radio Controls
Redundant Radio Controls
Master Electrical Component List
Radio/Audio System Description and Operation
Control Module References
Digital Radio Receiver
Entertainment/Communication Schematic Icons