GM Service Manual Online
For 1990-2009 cars only
Makes
🢒
Saturn
🢒
2008
🢒
Astra
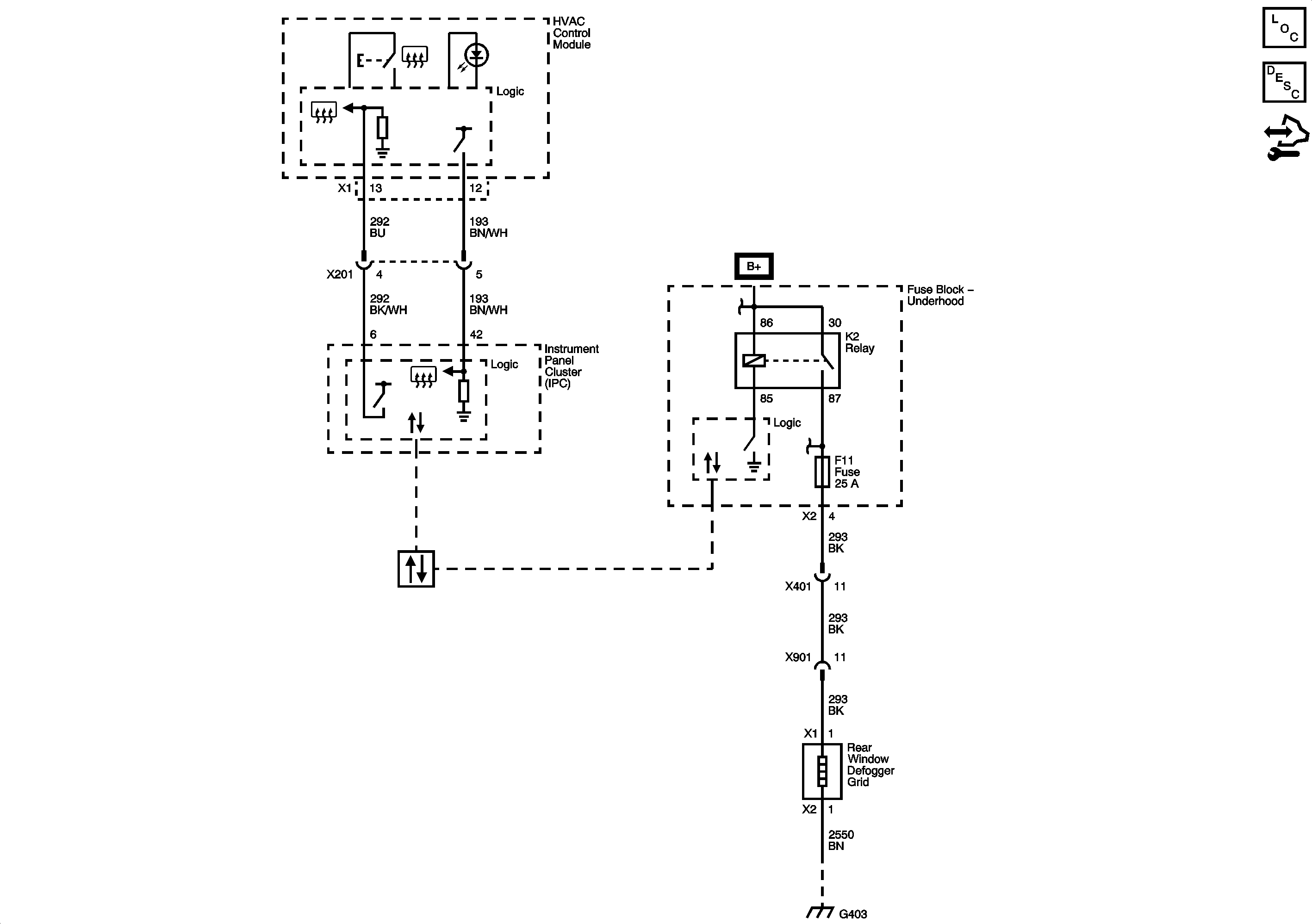
🢒 Rear Defogger
Rear Defogger
Master Electrical Component List
Rear Window Defogger Description and Operation
Control Module References
B+ Bus 1 of 2
Fuse Block - Rear F11 and F21 Fuses
Power, Ground, Class 2, and GM Low Speed Serial Data (CAN A)
G403