GM Service Manual Online
For 1990-2009 cars only

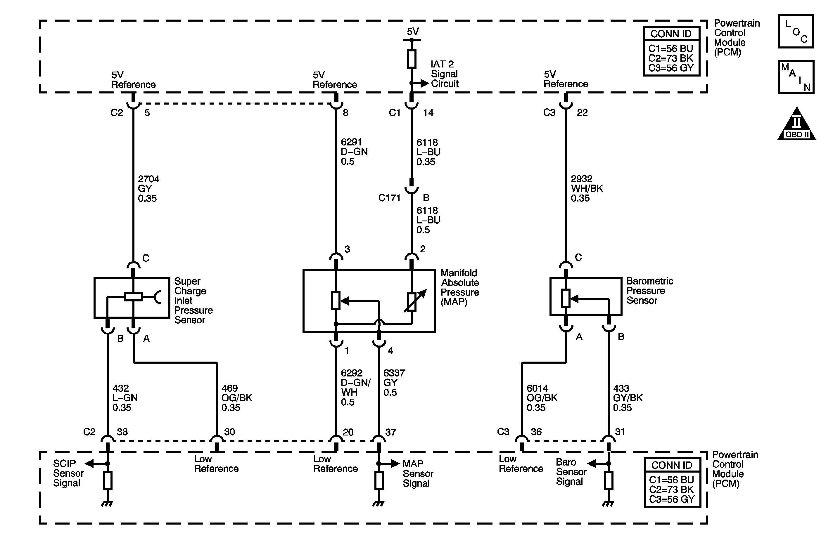
Object Number: 1403221  Size: MF

Circuit Description

The barometric pressure (BARO) sensor measures the pressure of the atmosphere. This pressure is affected by altitude and weather conditions. A diaphragm within the BARO sensor is displaced by the pressure changes that occur from varying altitudes and weather conditions. The sensor translates this diaphragm action into the voltage signal input that is used by the powertrain control module (PCM) for diagnostics and emissions control.

The supercharger inlet pressure (SCIP) sensor measures both the atmospheric pressure and the vacuum that exists under different operating conditions in the supercharger intake plenum. The plenum volume between the throttle body (TB) and the supercharger is where this sensor is located, and for the purpose of this diagnostic, this area is considered to be the intake manifold. The diaphragm within the SCIP sensor functions in the same manner as the BARO sensor. The sensors are not interchangeable. The actual measurement from the SCIP sensor is used by the PCM to calculate the difference continuously between BARO and SCIP. The calculated difference is displayed as the SC Inlet Pressure parameter.

The purpose of this diagnostic is to analyze the correlation between the BARO sensor, and the SCIP sensor. This is accomplished by comparing the difference between BARO and SCIP at key ON, engine OFF (KOEO), at closed throttle idle conditions, and at wide open throttle update events. At KOEO the difference between BARO and SCIP is represented on the scan tool by the SC Inlet Pressure parameter as a value that should be very close to zero. A negative SC Inlet Pressure parameter means that the BARO sensor value is less than the SCIP value. A positive SC Inlet Pressure parameter represents a BARO sensor value that is more than the SCIP value.

At idle the SC Inlet Pressure parameter represents the calculated difference between BARO and the reduced pressure that is present in the supercharger intake plenum as a positive value. At wide open throttle the SC Inlet Pressure parameter represents the calculated difference between BARO and the increased pressure that is present in the supercharger intake plenum, and should be very close to zero.

Both sensors have the following types of circuits:

    • A PCM supplied and regulated 5-volt reference circuit
    • A PCM supplied ground for the low reference circuit
    • A sensor signal circuit that supplies a voltage input to the PCM

Changes in BARO due to weather are relatively small, while changes due to altitude are significant. Pressure can range from 56 kPa at an altitude of 4267 meters (14,000 feet), to 104 kPa at or below sea level.

If the PCM detects that the BARO sensor signal and the SCIP sensor signal are not within a calibrated range of each other, whether that value is negative or positive, DTC P0069 sets.

DTC Descriptor

This diagnostic procedure supports the following DTC:

DTC P0069 Supercharger Inlet Pressure (SCIP) - Barometric (BARO) Pressure Correlation

Conditions for Running the DTC

    • DTCs P0101, P0102, P0103, P0112, P0113, P0117, P0118, P0120, P0121, P0125, P0128, P0220, P0502, P1182, P1183, P1184, P1516, P2101, P2227, P2228, P2229 are not set.
    • The ignition is ON.
        OR
    • The engine is running.
    • DTC P0069 runs continuously when the above conditions are met.

Conditions for Setting the DTC

    • The PCM detects that during ignition ON, with the engine OFF, the calculated difference between BARO and SCIP, whether that value is negative or positive, is more than 12 kPa for more than 30 seconds.
        OR
    • The PCM has detected that a wide open throttle update event has occurred within the previous 2 kilometers (1.2 miles) and the difference between BARO, and a calculated BARO using the SCIP sensor, is more than 12 kPa for more than 30 seconds.
        OR
    • The PCM has not detected a wide open throttle update event within the previous 2 kilometers (1.2 miles) and the difference between BARO, and a calculated BARO using the SCIP sensor, is more than 60 kPa for more than 30 seconds.

Action Taken When the DTC Sets

    • The control module illuminates the malfunction indicator lamp (MIL) on the second consecutive ignition cycle that the diagnostic runs and fails.
    • The control module records the operating conditions at the time the diagnostic fails. The first time the diagnostic fails, the control module stores this information in the Failure Records. If the diagnostic reports a failure on the second consecutive ignition cycle, the control module records the operating conditions at the time of the failure. The control module writes the operating conditions to the Freeze Frame and updates the Failure Records.

Conditions for Clearing the MIL/DTC

    • The control module turns OFF the malfunction indicator lamp (MIL) after 3 consecutive ignition cycles that the diagnostic runs and does not fail.
    • A current DTC, Last Test Failed, clears when the diagnostic runs and passes.
    • A history DTC clears after 40 consecutive warm-up cycles, if no failures are reported by this or any other emission related diagnostic.
    • Clear the MIL and the DTC with a scan tool.

Step

Action

Values

Yes

No

Schematic Reference: Engine Controls Schematics

Connector End View Reference: Engine Controls Connector End Views or Powertrain Control Module Connector End Views

1

Did you perform the Diagnostic System Check - Engine Controls?

--

Go to Step 2

Go to Diagnostic System Check - Engine Controls

2

Were you sent here from DTC P0101 or DTC P1101?

--

Go to Step 4

Go to Step 3

3

  1. Observe the Freeze Frame/Failure Records for this DTC.
  2. Turn OFF the ignition for 90 seconds.
  3. Turn ON the ignition for 60  seconds, with the engine OFF.
  4. Start the engine.
  5. Operate the vehicle within the Conditions for Running the DTC. You may also operate the vehicle within the conditions that you observed from the Freeze Frame/Failure Records.

Did the DTC fail this ignition?

--

Go to Step 4

Go to Intermittent Conditions and Inducing Intermittent Fault Conditions in Wiring Systems

4

Important: The harness connectors for the following sensors are of the same configuration but are not interchangeable.

  1. Turn OFF the ignition.
  2. Review the engine controls schematics for the barometric pressure (BARO) sensor and for the supercharger inlet pressure (SCIP) sensor and note the circuit colors.
  3. Inspect the wiring harness of the BARO sensor for the proper connection.
  4. Inspect the wiring harness of the SCIP sensor for the proper connection.

Did you find and correct the condition?

--

Go to Step 28

Go to Step 5

5

Inspect both sensors for the following:

    • Any damage or fractures to the sensor housing
    • Any debris that has blocked the sensor port

Did you find and correct the condition?

--

Go to Step 28

Go to Step 6

6

  1. Turn ON the ignition, with the engine OFF.
  2. Connect a vacuum pump to the port of the BARO sensor.
  3. Observe the BARO kPa parameter with a scan tool.
  4. Apply 33 kPa/10 inches Hg. of vacuum to the sensor.

Does the BARO kPa parameter decrease?

--

Go to Step 7

Go to Step 25

7

Important:: The Altitude vs. Barometric Pressure table indicates a pressure range for a given altitude under normal weather conditions. Weather conditions consisting of very low or very high pressure and/or temperature may cause a reading to be slightly out of range.

  1. Remove the vacuum pump.
  2. Accurately determine the altitude for your location.
  3. Observe the BARO kPa parameter with a scan tool.
  4. The BARO pressure should be within the specified range for your altitude. Refer to Altitude Versus Barometric Pressure .

Is the BARO pressure within the specified range as indicated on the Altitude vs. Barometric pressure table?

--

Go to Step 8

Go to Step 9

8

  1. Select the Induction Data on the scan tool.
  2. Observe the SC Inlet Pressure parameter.

Is the SC Inlet Pressure parameter within the specified range?

-11 kPa to +11 kPa

Go to Intermittent Conditions and Inducing Intermittent Fault Conditions in Wiring Systems

Go to Step 10

9

Test for an intermittent and for a poor connection at the BARO sensor connector. Refer to Testing for Intermittent Conditions and Poor Connections and Connector Repairs in Wiring Systems.

Did you find and correct the condition?

--

Go to Step 28

Go to Step 11

10

Test for an intermittent and for a poor connection at the SCIP sensor connector. Refer to Testing for Intermittent Conditions and Poor Connections and Connector Repairs in Wiring Systems.

Did you find and correct the condition?

--

Go to Step 28

Go to Step 12

11

  1. Turn ON the ignition, with the engine OFF.
  2. Connect a test lamp between the 5-volt reference circuit of the BARO sensor at the harness connector and a good ground.
  3. Measure the voltage from the 5-volt reference circuit of the BARO sensor to a good ground with a DMM.

Is the voltage within the specified range?

4.8-5.2 V

Go to Step 13

Go to Step 17

12

  1. Turn ON the ignition, with the engine OFF.
  2. Connect a test lamp between the 5-volt reference circuit of the SCIP sensor at the harness connector and a good ground.
  3. Measure the voltage from the 5-volt reference circuit of the SCIP sensor to a good ground with a DMM.

Is the voltage within the specified range?

4.8-5.2 V

Go to Step 14

Go to Step 18

13

  1. Connect a jumper wire between the 5-volt reference circuit of the BARO sensor and the signal circuit of the BARO sensor at the harness connector.
  2. Observe the BARO parameter with a scan tool.

Is the BARO parameter more than the specified value?

4.8 V

Go to Step 15

Go to Step 19

14

  1. Connect a jumper wire between the 5-volt reference circuit of the SCIP sensor and the signal circuit of the SCIP sensor at the harness connector.
  2. Observe the SC Inlet Pressure Sensor parameter with a scan tool.

Is the SC Inlet Pressure Sensor parameter more than the specified value?

2.4 V

Go to Step 16

Go to Step 20

15

Important: All electrical components and accessories must be turned OFF.

  1. Turn OFF the ignition for 90 seconds to allow the control modules to power down.
  2. Measure the resistance from the low reference circuit of the BARO sensor at the harness connector to a good ground with a DMM.

Is the resistance more than the specified value?

5 ohms

Go to Step 21

Go to Step 25

16

Important: All electrical components and accessories must be turned OFF.

  1. Turn OFF the ignition for 90 seconds to allow the control modules to power down.
  2. Measure the resistance from the low reference circuit of the SCIP sensor at the harness connector to a good ground with a DMM.

Is the resistance more than the specified value?

5 ohms

Go to Step 22

Go to Step 26

17

  1. Disconnect the powertrain control module (PCM).
  2. Measure the resistance of the 5-volt reference circuit between the BARO sensor and the PCM, with a DMM.

Is the resistance more than the specified value?

5 ohms

Go to Step 24

Go to Step 23

18

  1. Disconnect the PCM.
  2. Measure the resistance of the 5-volt reference circuit between the SCIP sensor and the PCM, with a DMM.

Is the resistance more than the specified value?

5 ohms

Go to Step 24

Go to Step 23

19

  1. Disconnect the PCM.
  2. Measure the resistance of the BARO sensor signal circuit between the BARO sensor and the PCM, with a DMM.

Is the resistance more than the specified value?

5 ohms

Go to Step 24

Go to Step 23

20

  1. Disconnect the PCM.
  2. Measure the resistance of the SCIP sensor signal circuit between the SCIP sensor and the PCM, with a DMM.

Is the resistance more than the specified value?

5 ohms

Go to Step 24

Go to Step 23

21

  1. Disconnect the PCM.
  2. Measure the resistance of the BARO sensor low reference circuit between the BARO sensor and the PCM, with a DMM.

Is the resistance more than the specified value?

5 ohms

Go to Step 24

Go to Step 23

22

  1. Disconnect the PCM.
  2. Measure the resistance of the SCIP sensor low reference circuit between the SCIP sensor and the PCM, with a DMM.

Is the resistance more than the specified value?

5 ohms

Go to Step 24

Go to Step 23

23

Test for an intermittent and for a poor connection at the PCM. Refer to Testing for Intermittent Conditions and Poor Connections and Connector Repairs in Wiring Systems.

Did you find and correct the condition?

--

Go to Step 28

Go to Step 27

24

Repair the high resistance in the circuit. Refer to Wiring Repairs in Wiring Systems.

Did you complete the repair?

--

Go to Step 28

--

25

Replace the BARO sensor. Refer to Barometric Pressure Sensor Replacement .

Did you complete the replacement?

--

Go to Step 28

--

26

Replace the SCIP sensor. Refer to Manifold Absolute Pressure Sensor Replacement .

Did you complete the replacement?

--

Go to Step 28

--

27

Replace the PCM. Refer to Powertrain Control Module Replacement .

Did you complete the replacement?

--

Go to Step 28

--

28

  1. Clear the DTCs with a scan tool.
  2. Turn OFF the ignition for 90 seconds.
  3. Start the engine.
  4. Operate the vehicle within the Conditions for Running the DTC. You may also operate the vehicle within the conditions that you observed from the Freeze Frame/Failure Records.

Did the DTC fail this ignition?

--

Go to Step 2

Go to Step 29

29

Observe the Capture Info with a scan tool.

Are there any DTCs that have not been diagnosed?

--

Go to Diagnostic Trouble Code (DTC) List

System OK