GM Service Manual Online
For 1990-2009 cars only

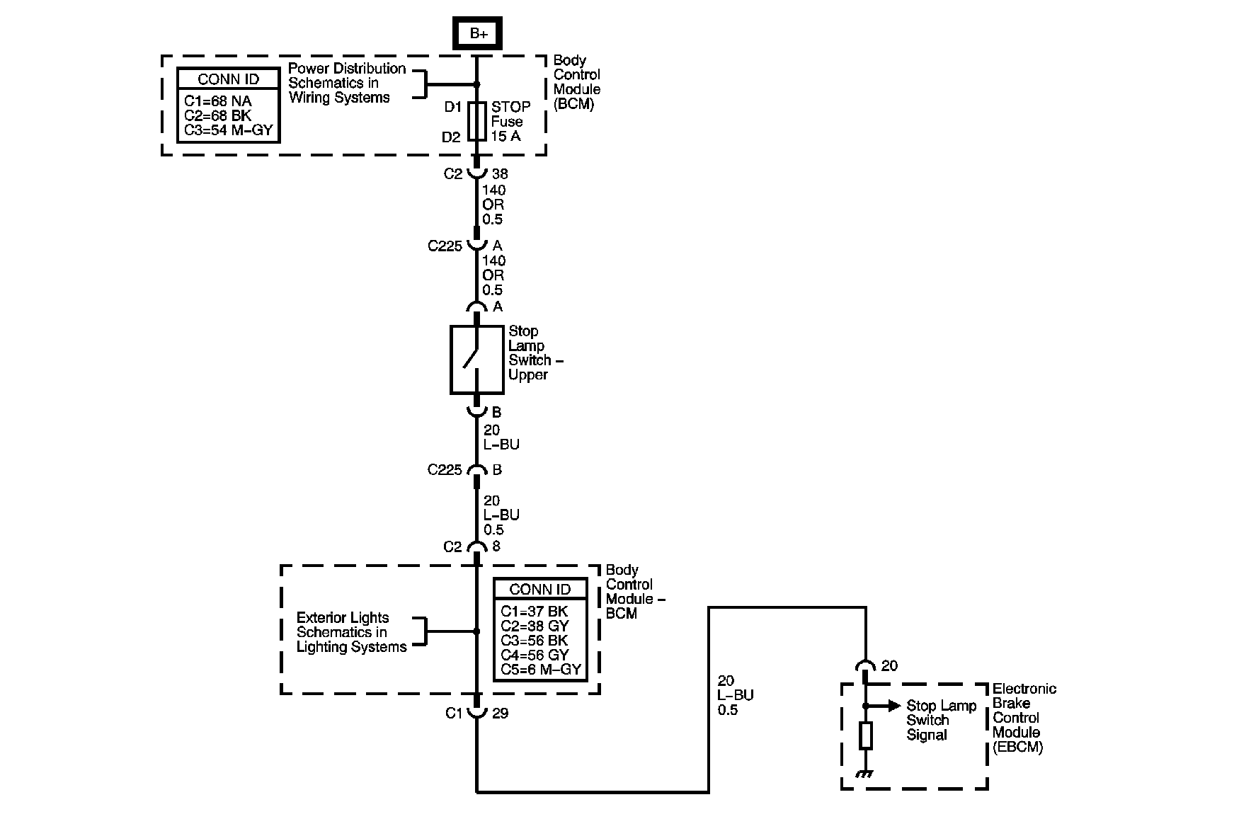
Object Number: 879956  Size: MF

Circuit Description

The Stoplamp Switch is a normally open switch, when the brake pedal is depressed the EBCM will sense battery voltage. This allows the EBCM to determine the state of the brake lamps. The EBCM sources 5 volts on the stop lamp switch signal circuit when the stop lamp switch is inactive. The voltage is supplied a ground path through the stop lamp bulbs.

Conditions for Running the DTC

The ignition switch is ON.

Conditions for Setting the DTC

    • EBCM detects open in the brake signal circuit.
    • Both brake lamps are faulty.
    • The stoplamp switch input voltage is between 6.6 and 9 volts for 0.5 second.

Action Taken When the DTC Sets

If equipped, the following actions occur:

    • A malfunction DTC will set.
    • The EBCM stores this information-only DTC for as long as the condition is present.
    • The ABS remains functional.
    • The ABS indicator remains OFF.

Conditions for Clearing the DTC

    • The condition for the DTC is no longer present and you used the scan tool Clear DTC function.
    • The EBCM automatically clears the history DTC when a current DTC is not detected in 100 consecutive drive cycles.

Diagnostic Aids

    • It is very important that a thorough inspection of the wiring and connectors be performed. Failure to carefully and fully inspect wiring and connectors may result in misdiagnosis, causing part replacement with reappearance of the malfunction.
    • Thoroughly inspect any circuitry that may be causing the complaint for the following conditions:
       - Backed out terminals
       - Improper mating
       - Broken locks
       - Improperly formed or damaged terminals
       - Poor terminal-to-wiring connections
       - Physical damage to the wiring harness
    • Possible causes of this DTC are the following conditions:
       - A signal circuit of the stop lamp switch is open
       - The stop lamp switch is misadjusted
       - Verify proper stop lamp switch operation using the data list of the scan tool. As the brake is applied, the data list displays the stop lamp switch ON within 2.54 cm (1 in) of travel
       - All brake lamps are open
       - All brake lamp grounds are open
       - Circuit has a wiring problem, terminal corrosion, or poor connections
       - Loose or corroded EBCM ground
    • If an intermittent malfunction exists refer to Testing for Intermittent Conditions and Poor Connections in Wiring Systems.

Test Description

The numbers below refer to the step numbers on the diagnostic table.

  1. This DTC detects an open stop lamp switch signal circuit from the stop lamp side of the splice pack to the EBCM.

  2. The EBCM sources 5 volts on the stop lamp switch signal circuit. This small voltage has a ground path through the stop lamp bulbs. This DTC sets if the path to ground is open.

Step

Action

Yes

No

Schematic Reference: Antilock Brake System Schematics

Connector End View Reference: Antilock Brake System Connector End Views or Lighting Systems Connector End Views in Lighting Systems

1

Did you perform the ABS Diagnostic System Check?

Go to Step 2

Go to Diagnostic System Check - ABS

2

  1. Press the brake pedal.
  2. With the scan tool, observe the Brake Switch Status parameter in the ABS data list.

Does the Brake Switch Status parameter display Applied?

Go to Step 4

Go to Step 3

3

Test the signal circuit of the stop lamp switch for an open. Refer to Circuit Testing and Wiring Repairs in Wiring Systems.

Did you find and correct the condition?

Go to Step 9

Go to Step 7

4

Press the brake pedal.

Are all of the stoplamps OFF?

Go to Step 5

Go to Diagnostic Aids

5

Test the feed circuit of the stop lamps for an open or high resistance. Refer to Circuit Testing and Wiring Repairs in Wiring Systems.

Did you find and correct the condition?

Go to Step 9

Go to Step 6

6

Test the ground circuit of the stop lamps for an open or high resistance. Refer to Circuit Testing and Wiring Repairs in Wiring Systems.

Did you find and correct the condition?

Go to Step 9

Go to Diagnostic Aids

7

Inspect for poor connections at the harness connector of the EBCM. Refer to Testing for Intermittent Conditions and Poor Connections and Connector Repairs in Wiring Systems.

Did you find and correct the condition?

Go to Step 9

Go to Step 8

8

Replace the EBCM. Refer to Electronic Brake Control Module Replacement .

Did you complete the replacement?

Go to Step 9

--

9

  1. Use the scan tool in order to clear the DTCs.
  2. Operate the vehicle within the Conditions for Running the DTC as specified in the supporting text.

Does the DTC reset?

Go to Step 2

System OK