GM Service Manual Online
For 1990-2009 cars only

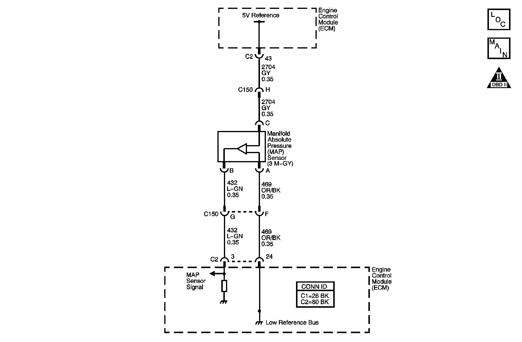
Object Number: 891184  Size: MF

Circuit Description

The manifold absolute pressure (MAP) sensor responds to pressure changes in the intake manifold. The pressure changes occur based on the engine load. The MAP sensor has the following circuits:

    • A 5-volt reference circuit
    • A low reference circuit
    • A MAP sensor signal circuit

The engine control module (ECM) supplies 5 volts to the MAP sensor on the 5-volt reference circuit. The ECM also provides a ground on the low reference circuit. The MAP sensor provides a signal to the ECM on the MAP sensor signal circuit which is relative to the pressure changes in the manifold. The ECM should detect a low signal voltage at a low MAP, such as during an idle or a deceleration. The ECM should detect a high signal voltage at a high MAP, such as the ignition is ON, with the engine OFF, or at a wide open throttle (WOT). The MAP sensor is also used in order to determine the barometric pressure (BARO). This occurs when the ignition switch is turned ON, with the engine OFF. The BARO reading may also be updated whenever the engine is operated at WOT. The ECM monitors the MAP sensor signal for voltage outside of the normal range. If the ECM detects a MAP sensor signal voltage that is excessively high, DTC P0108 will set.

Conditions for Running the DTC

    • DTCs P0122 or P0123 are not set.
    • The TP Angle parameter is less than 2 percent when the Engine Speed parameter is less than 1,600 RPM.
        OR
    • The TP angle parameter is less than 10 percent when the Engine Speed parameter is more than 1,600 RPM.

Conditions for Setting the DTC

The ECM detects that the MAP sensor voltage is more than 4.2 volts for 3 seconds.

Action Taken When the DTC Sets

    • The control module illuminates the malfunction indicator lamp (MIL) when the diagnostic runs and fails.
    • The control module records the operating conditions at the time the diagnostic fails. The control module stores this information in the Freeze Frame/Failure Records.

Conditions for Clearing the MIL/DTC

    • The control module turns OFF the malfunction indicator lamp (MIL) after 3 consecutive ignition cycles that the diagnostic runs and does not fail.
    • A current DTC, Last Test Failed, clears when the diagnostic runs and passes.
    • A history DTC clears after 40 consecutive warm-up cycles, if no failures are reported by this or any other emission related diagnostic.
    • Clear the MIL and the DTC with a scan tool.

Test Description

The number below refers to the step number on the diagnostic table.

  1. If DTC P0641 is set, the 5-volt reference system voltage has been affected. This DTC should be diagnosed first.

Step

Action

Values

Yes

No

Schematic Reference: Engine Controls Schematics

Connector End View Reference: Engine Controls Connector End Views or Engine Control Module Connector End Views

1

Did you perform the Diagnostic System Check-Engine Controls?

--

Go to Step 2

Go to Diagnostic System Check - Engine Controls

2

  1. Turn ON the ignition with the engine OFF.
  2. Observe the Diagnostic Trouble Code (DTC) Information with the scan tool.

Is DTC P0641 also set?

--

Go to DTC P0641

Go to Step 3

3

  1. Start the engine.
  2. Observe the MAP Sensor parameter with a scan tool.

Is the voltage more than the specified value?

4.2 V

Go to Step 5

Go to Step 4

4

  1. Observe the Freeze Frame/Failure Records for this DTC.
  2. Turn OFF the ignition for 30 seconds.
  3. Start the engine.
  4. Operate the vehicle within the Conditions for Running the DTC. You may also operate the vehicle within the conditions that you observed from the Freeze Frame/Failure Records.

Did the DTC fail this ignition?

--

Go to Step 5

Go to Intermittent Conditions

5

  1. Turn OFF the ignition.
  2. Inspect the manifold absolute pressure (MAP) sensor and the vacuum source for the following conditions:
  3. • Leaks
    • Restrictions
    • Faulty connections

Did you find and correct the condition?

--

Go to Step 14

Go to Step 6

6

Test for an intermittent and for a poor connection at the MAP sensor. Refer to Testing for Intermittent Conditions and Poor Connections and Connector Repairs in Wiring Systems.

Did you find and correct the condition?

--

Go to Step 14

Go to Step 7

7

  1. Disconnect the MAP sensor electrical connector.
  2. Turn ON the ignition, with the engine OFF.
  3. Observe the MAP Sensor parameter with the scan tool.

Is the voltage less than the specified value?

0.2 V

Go to Step 8

Go to Step 9

8

  1. Turn OFF the ignition.
  2. Connect a jumper wire between each of the terminals in the MAP sensor harness connector and the corresponding terminal at the MAP sensor Refer to Using Connector Test Adapters in Wiring Systems.
  3. Turn ON the ignition, with the engine OFF.
  4. Measure the voltage from the low reference circuit of the MAP sensor at the jumper wire terminal to a good ground with a DMM. Refer to Measuring Voltage Drop in Wiring Systems.

Is the voltage more than the specified value?

0.2 V

Go to Step 10

Go to Step 12

9

Important: Disconnecting the ECM may eliminate the short during testing.

Test the MAP sensor signal circuit between the ECM and the MAP sensor for a short to voltage. Refer to Circuit Testing and Wiring Repairs in Wiring Systems.

Did you find and correct the condition?

--

Go to Step 14

Go to Step 13

10

Test the low reference circuit between the ECM and the MAP sensor for high resistance or for an open. Refer to Circuit Testing and Wiring Repairs in Wiring Systems.

Did you find and correct the condition?

--

Go to Step 14

Go to Step 11

11

Test for an intermittent and for a poor connection at the ECM. Refer to Testing for Intermittent Conditions and Poor Connections and Connector Repairs in Wiring Systems.

Did you find and correct the condition?

--

Go to Step 14

Go to Step 13

12

Replace the MAP sensor. Refer to Manifold Absolute Pressure Sensor Replacement .

Did you complete the replacement?

--

Go to Step 14

--

13

Replace the ECM. Refer to Engine Control Module Replacement .

Did you complete the replacement?

--

Go to Step 14

--

14

  1. Clear the DTCs with a scan tool.
  2. Turn OFF the ignition for 30 seconds.
  3. Start the engine.
  4. Operate the vehicle within the Conditions for Running the DTC. You may also operate the vehicle within the conditions that you observed from the Freeze Frame/Failure Records.

Did the DTC fail this ignition?

--

Go to Step 2

Go to Step 15

15

Observe the Capture Info with a scan tool.

Are there any DTCs that have not been diagnosed?

--

Go to Diagnostic Trouble Code (DTC) List

System OK