GM Service Manual Online
For 1990-2009 cars only
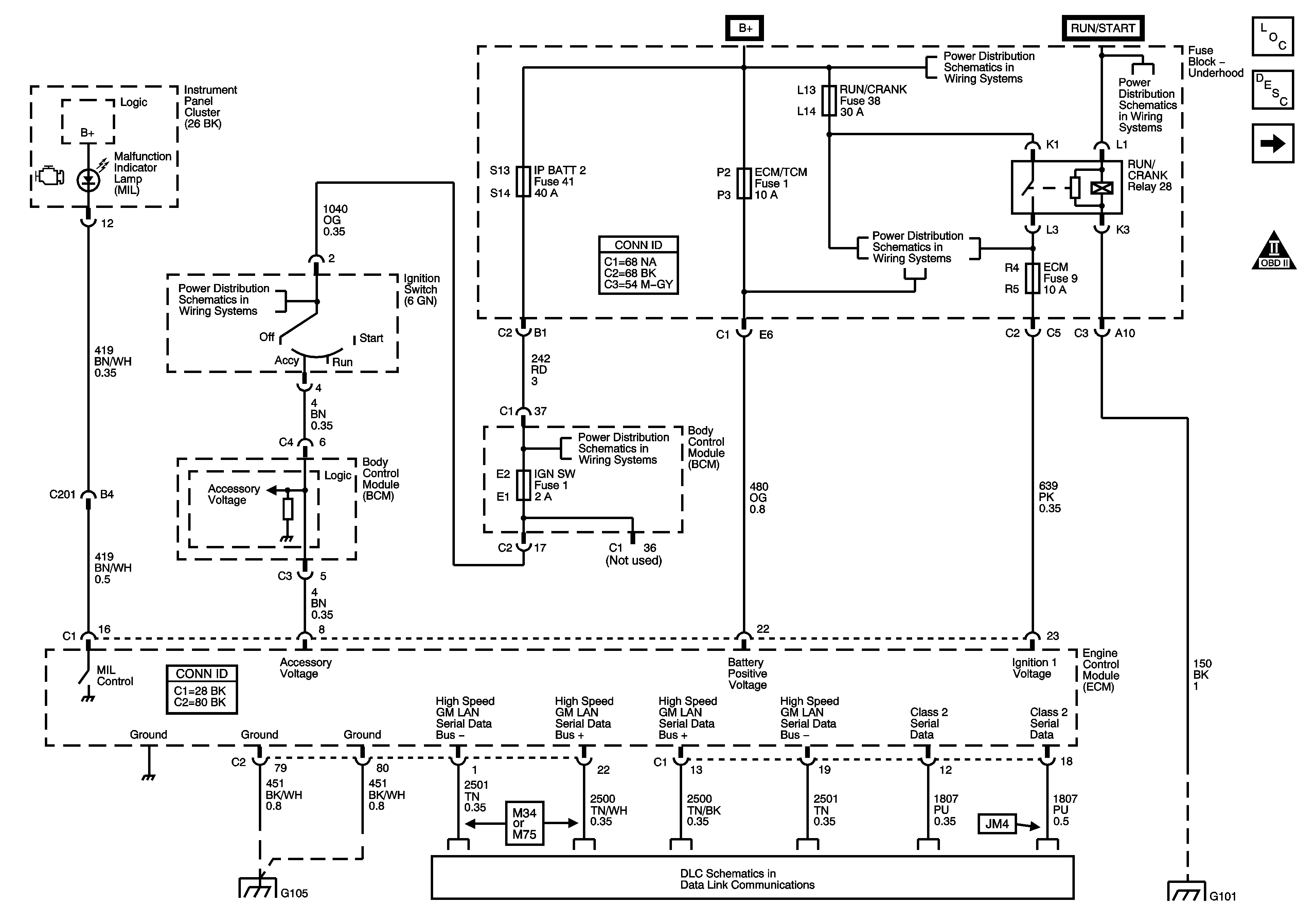
Figure 1:

Ground, MIL, Power, and Serial Data


Object Number: 1255319  Size: FS
Master Electrical Component List
Engine Control Module Description
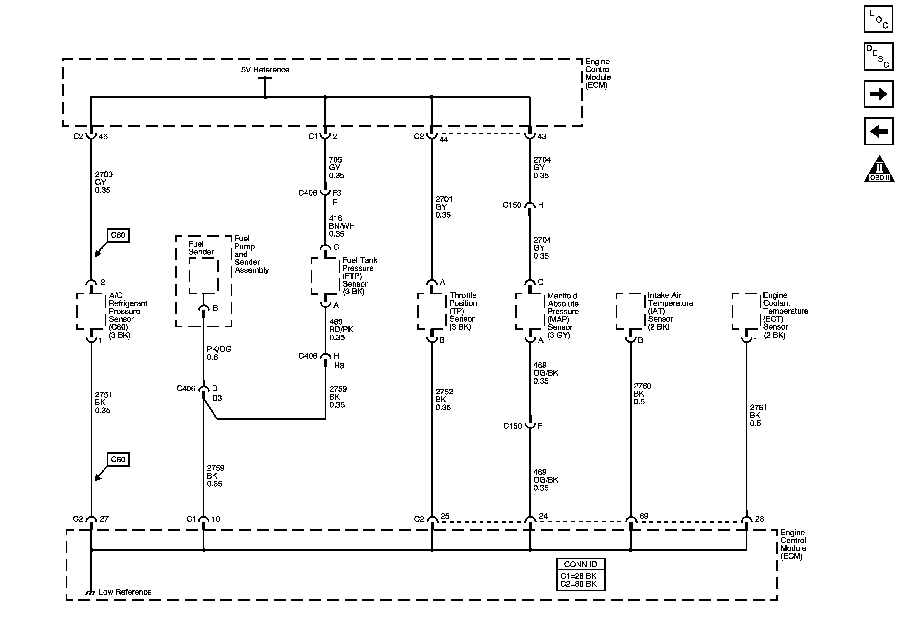
Engine Data Sensors - 5 Volt and Low Reference Bussing
OBD II Symbol Description Notice
Fuse Block - Underhood Fuses: ABS, ABS1, ABS2, ECM, ECM/TCM, IGN, LH HDLP, Prem Audio, RH HDLP, Run/Crank
Fuse Block - Underhood Fuses: ABS, ABS1, ABS2, ECM, ECM/TCM, IGN, LH HDLP, Prem Audio, RH HDLP, Run/Crank
Ignition Switch
Fuse Block - Underhood Fuses: IPBATT2 and RUN (IGN3) BCM Fuses: BCM Elect, Cluster, Fuel Pump, HVAC, IGN SW, and Stop
G103 (2.2L), G105 (2.2L), G109
Data Link Communication Schematics
G101 - Early Production
Ignition Switch
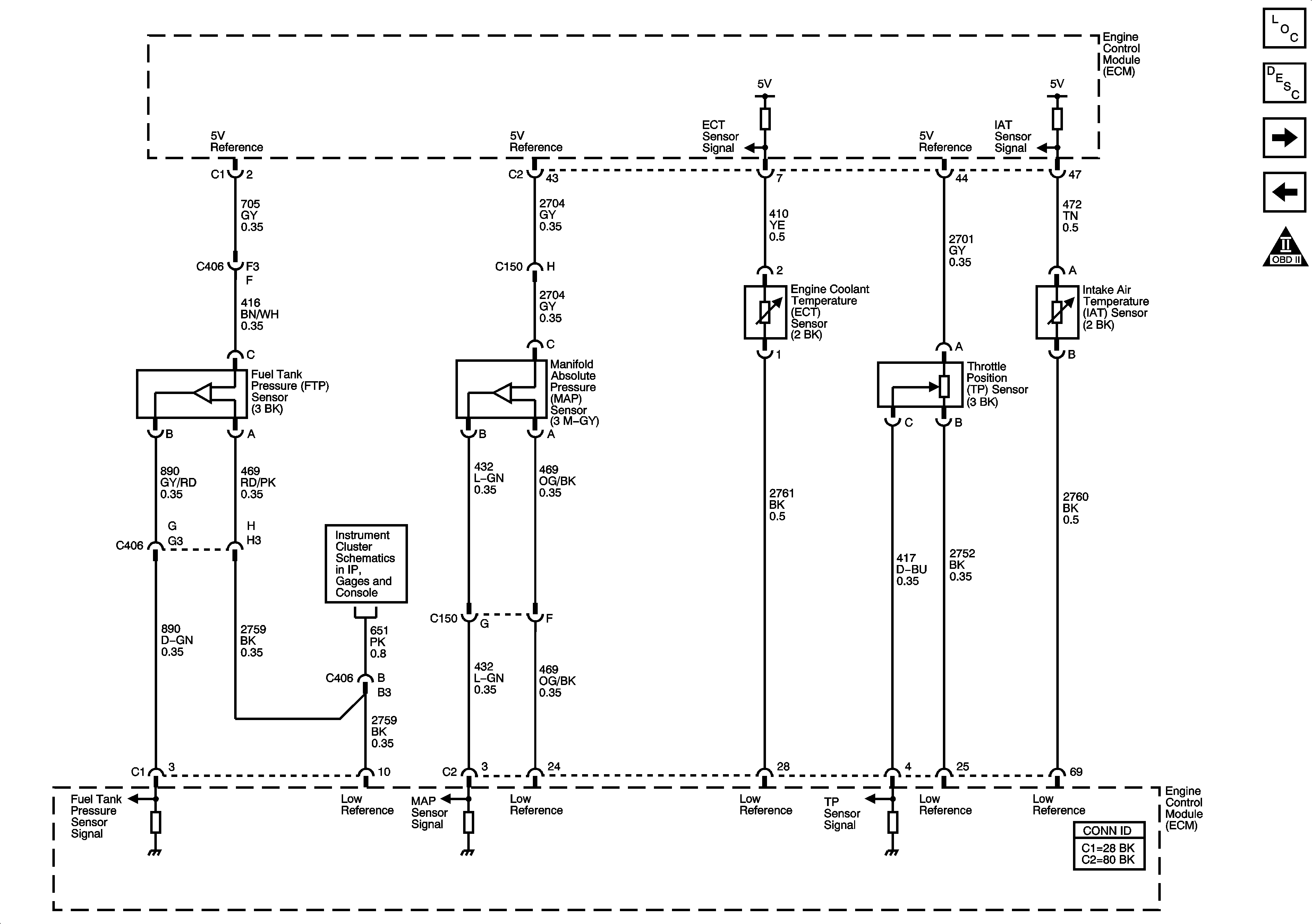
Figure 2:

Engine Data Sensors-5-Volt and Low Reference Bussing


Object Number: 1255320  Size: FS
Master Electrical Component List
Engine Control Module Description
Engine Data Sensors - Pressure and Temperature
Power, Ground, MIL, and Serial Data
OBD II Symbol Description Notice
Figure 3:

Engine Data Sensors-Pressure and Temperature


Object Number: 1255321  Size: FS
Master Electrical Component List
Engine Control Module Description
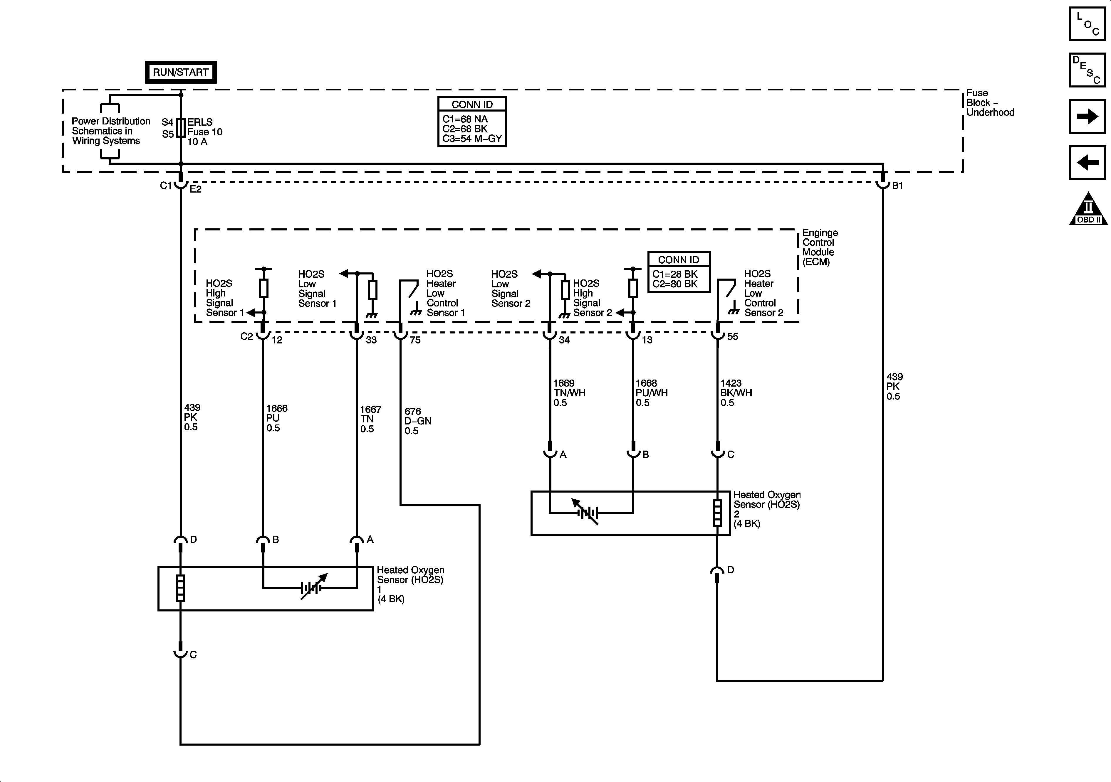
Engine Data Sensors - HO2S
Engine Data Sensors - 5 Volt and Low Reference Bussing
OBD II Symbol Description Notice
Fuel Level and Oil Pressure
Figure 4:

Engine Data Sensors-HO2S


Object Number: 1255322  Size: FS
Master Electrical Component List
Engine Control Module Description
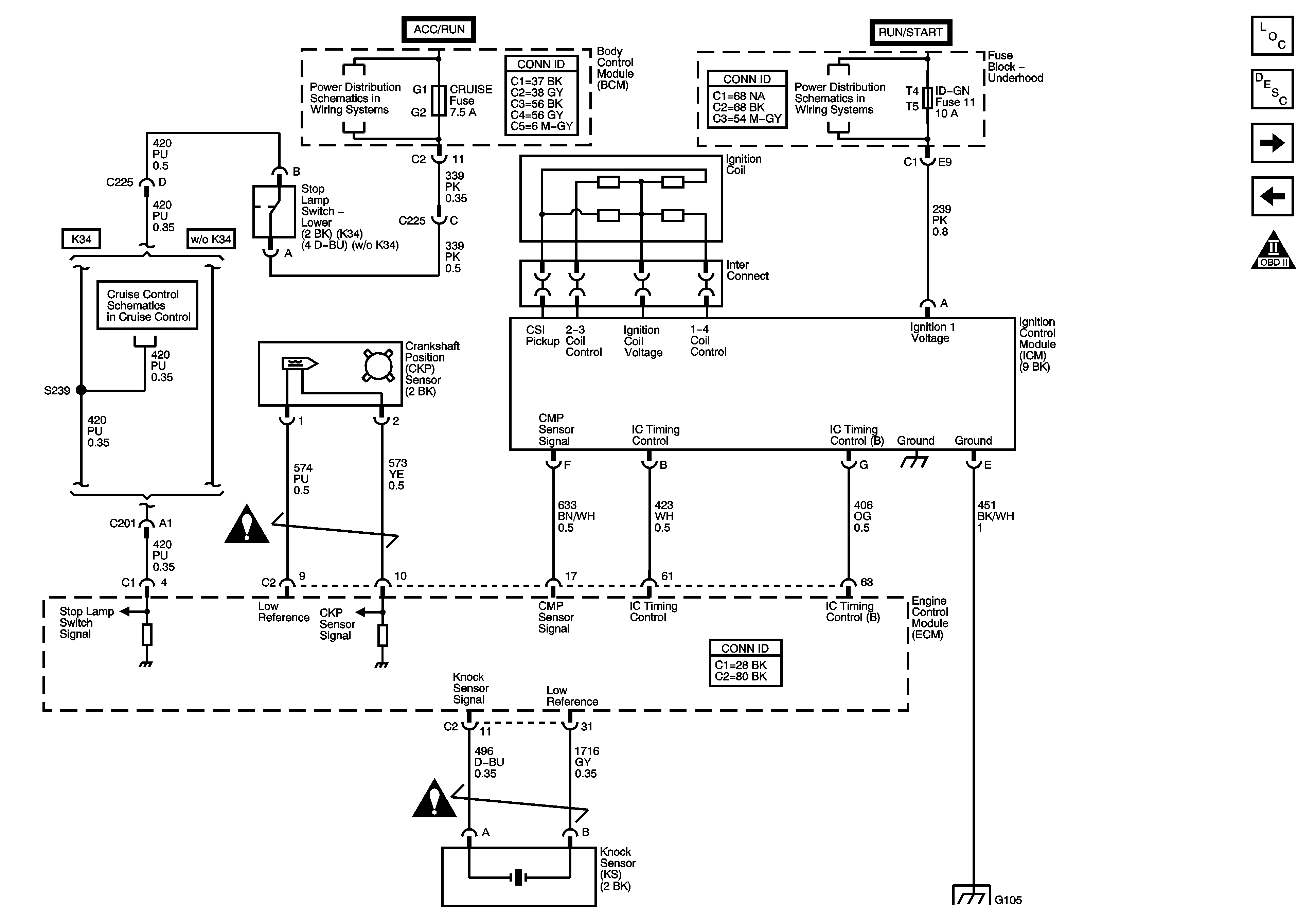
Ignition Controls
Engine Data Sensors - Pressure and Temperature
OBD II Symbol Description Notice
Fuse Block - Underhood Fuses: ERLS and Injectors, BCM Fuses: Air Bag, EPS
Figure 5:

Ignition Controls


Object Number: 1255324  Size: FS
Master Electrical Component List
Engine Control Module Description
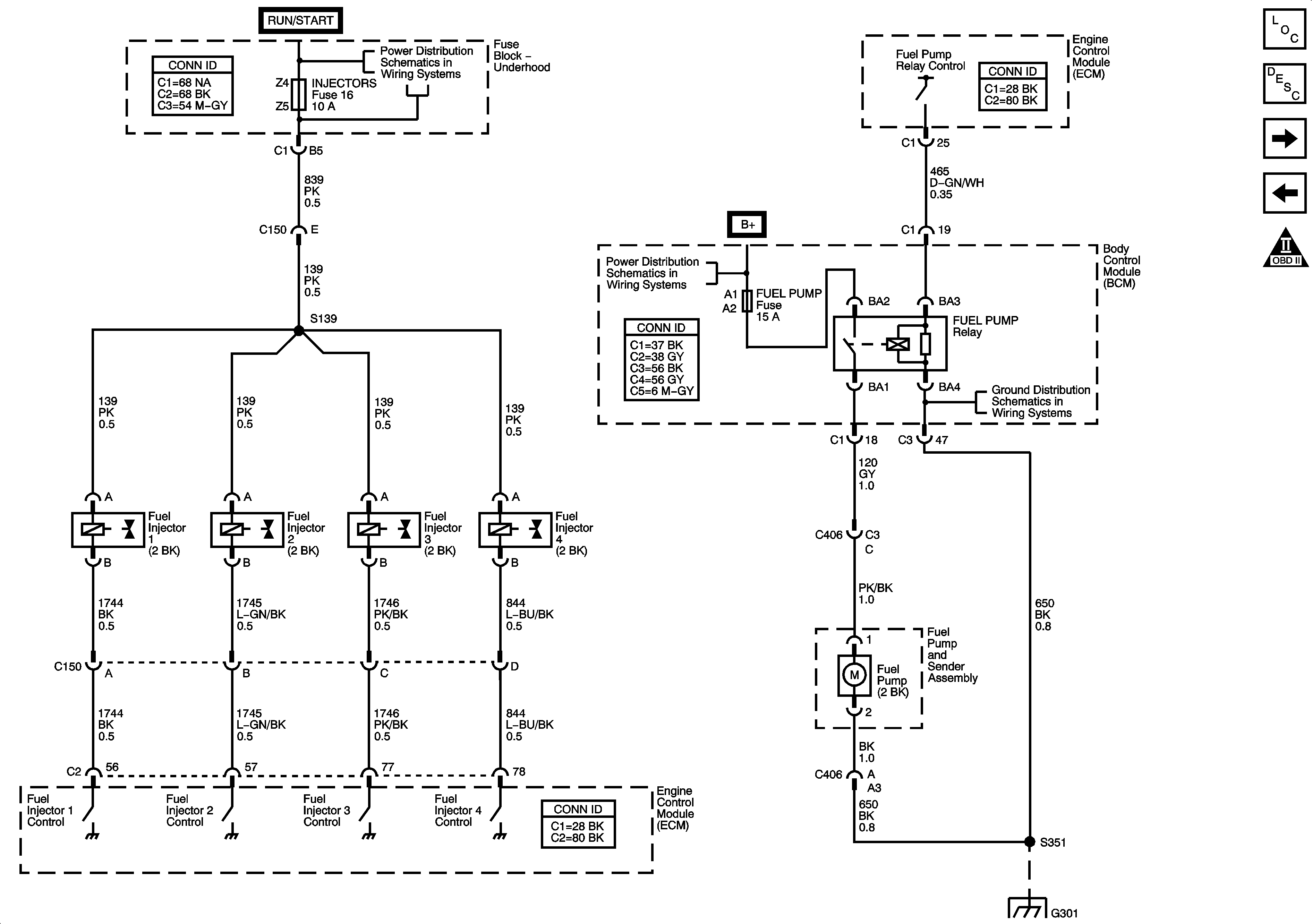
Fuel Delivery
Engine Data Sensors - HO2S
OBD II Symbol Description Notice
Fuse Block - Underhood Fuses: ERLS and Injectors, BCM Fuses: Air Bag, EPS
Fuse Block - Underhood Fuses: ABS, ABS1, ABS2, ECM, ECM/TCM, IGN, LH HDLP, Prem Audio, RH HDLP, Run/Crank
Stop Lamp Switch
Engine Controls Schematic Icons
Engine Controls Schematic Icons
G103 (2.2L), G105 (2.2L), G109
Figure 6:

Fuel Delivery


Object Number: 1255326  Size: FS
Master Electrical Component List
Engine Control Module Description
EVAP Controls and IAC
Ignition Controls
OBD II Symbol Description Notice
Fuse Block - Underhood Fuses: ERLS and Injectors, BCM Fuses: Air Bag, EPS
Fuse Block - Underhood Fuses: IPBATT2 and RUN (IGN3) BCM Fuses: BCM Elect, Cluster, Fuel Pump, HVAC, IGN SW, and Stop
G301
G301
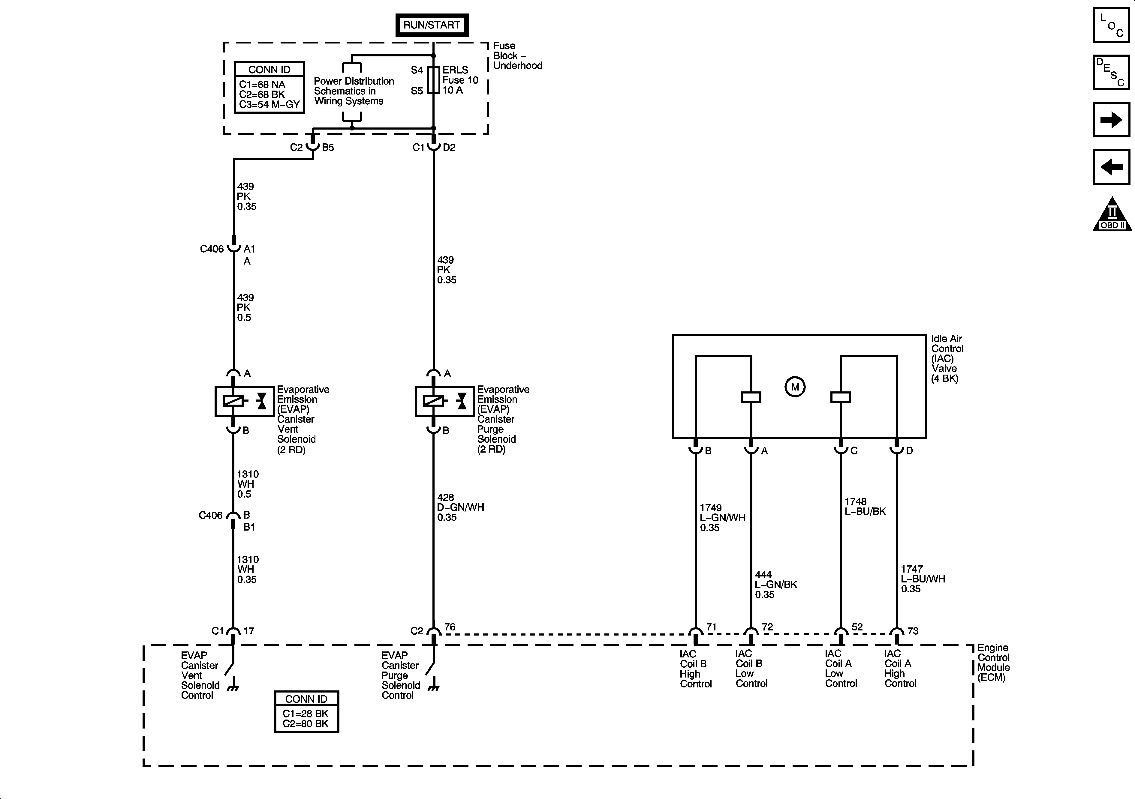
Figure 7:

EVAP Controls and IAC


Object Number: 1255327  Size: FS
Master Electrical Component List
Engine Control Module Description
Controlled/Monitored Subsystem Reference
Fuel Delivery
OBD II Symbol Description Notice
Fuse Block - Underhood Fuses: ERLS and Injectors, BCM Fuses: Air Bag, EPS
Figure 8:

Controlled/Monitored Subsystem References


Object Number: 1255328  Size: FS
Master Electrical Component List
Engine Control Module Description
EVAP Controls and IAC
OBD II Symbol Description Notice
Fuel Level and Oil Pressure
Ground, Power, and Steering Wheel
Stop Lamp Switch
2.2L
A/C Compressor Controls (C60)
Charging
Starting - Early Production
Manual Transmission - M86 Getrag