GM Service Manual Online
For 1990-2009 cars only
Makes
🢒
Saturn
🢒
2005
🢒
ION
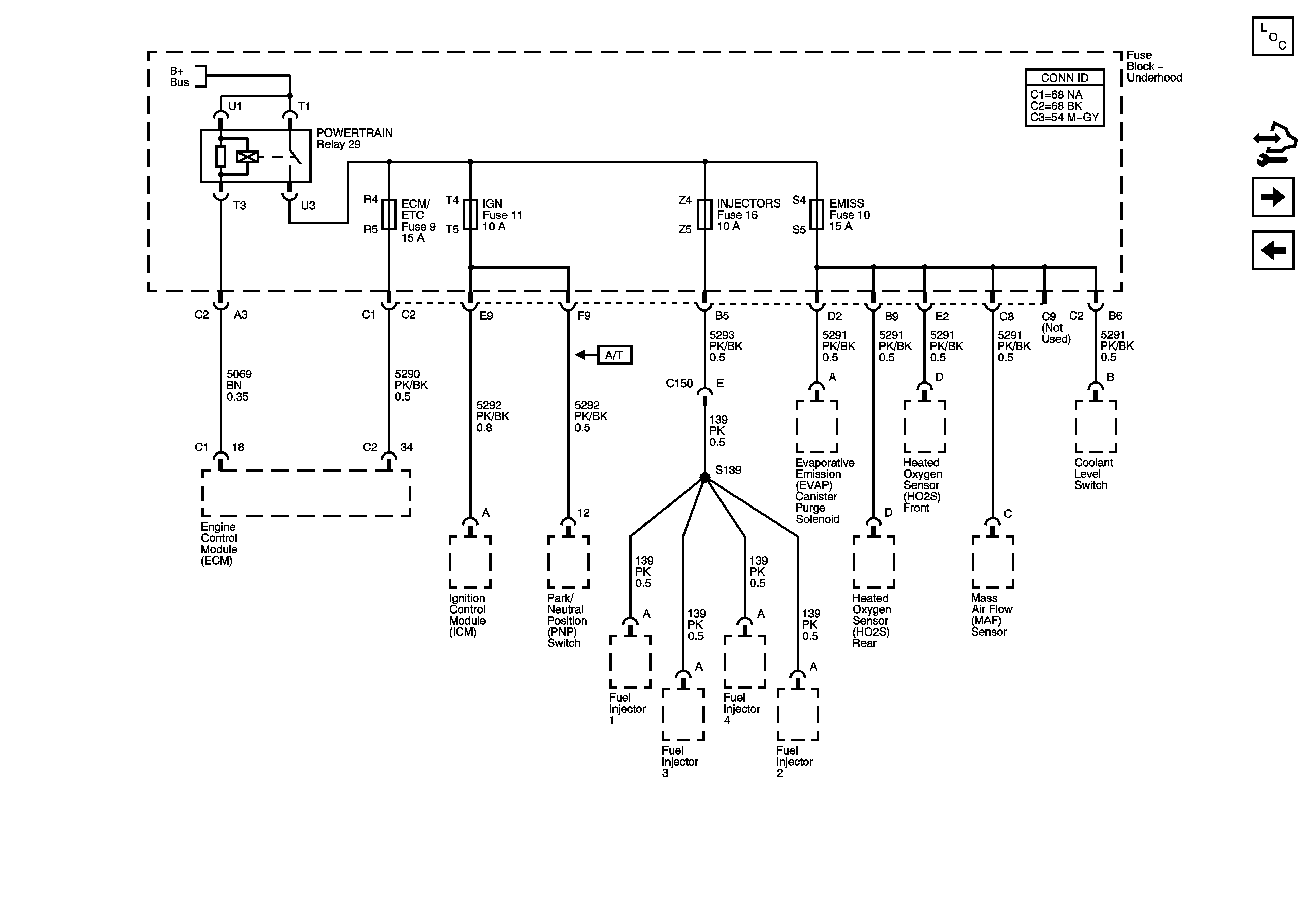
🢒 ECM/ETC, EMISS, IGN, and INJECTORS Fuses - 2.2L
ECM/ETC, EMISS, IGN, and INJECTORS Fuses - 2.2L
ECM/ETC, IGN, INJECTORS, and EMISS Fuses - 2.2L
Master Electrical Component List
Control Module References
ECM/ETC, EMISS, IGN, and INJECTORS Fuses - 2.0L
AIR BAG, CLUTCH/BRAKE, and 2A EPS (2A) Fuses
Fuseblock - Underhood Bus