GM Service Manual Online
For 1990-2009 cars only
Makes
🢒
Saturn
🢒
2007
🢒
ION
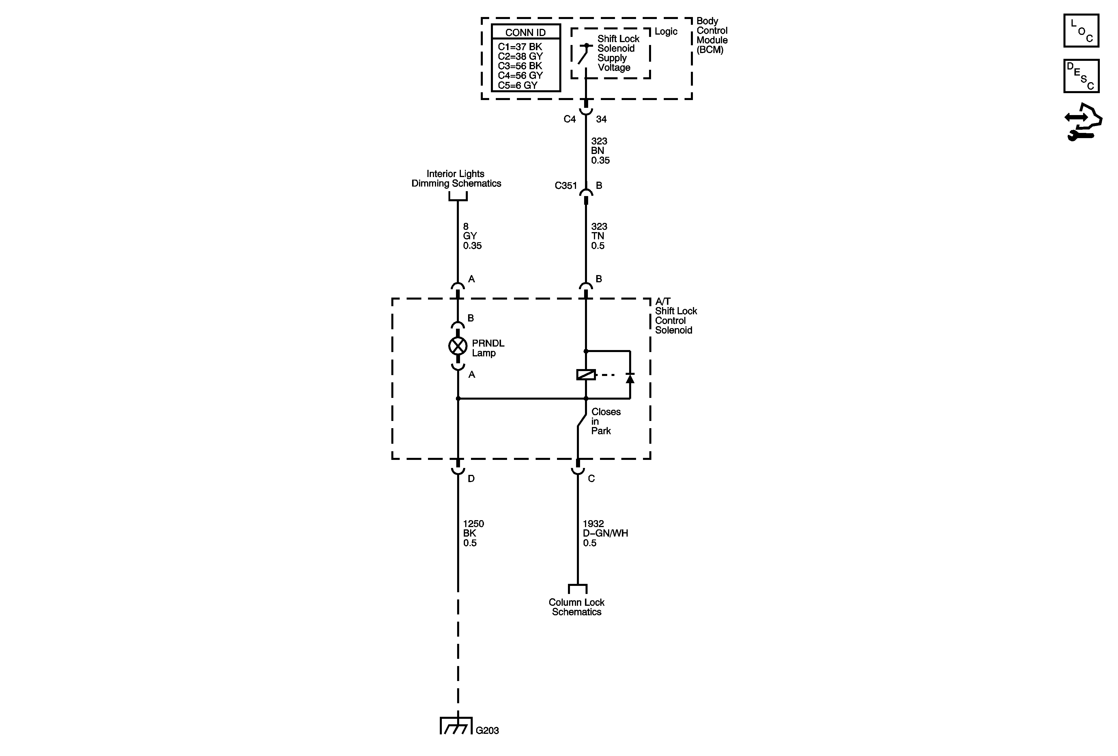
🢒 Shift Lock Control Schematics
Shift Lock Control Schematics
Master Electrical Component List
Automatic Transmission Shift Lock Control Description and Operation
Control Module References
Shift Indicator Module, Boost Gage, A/T Shift Indicator, and HVAC Control Assembly
Ignition Lock Schematics
G203