GM Service Manual Online
For 1990-2009 cars only

Object Number: 1247654  Size: MF
Engine Controls Component Views
Engine Controls Schematics

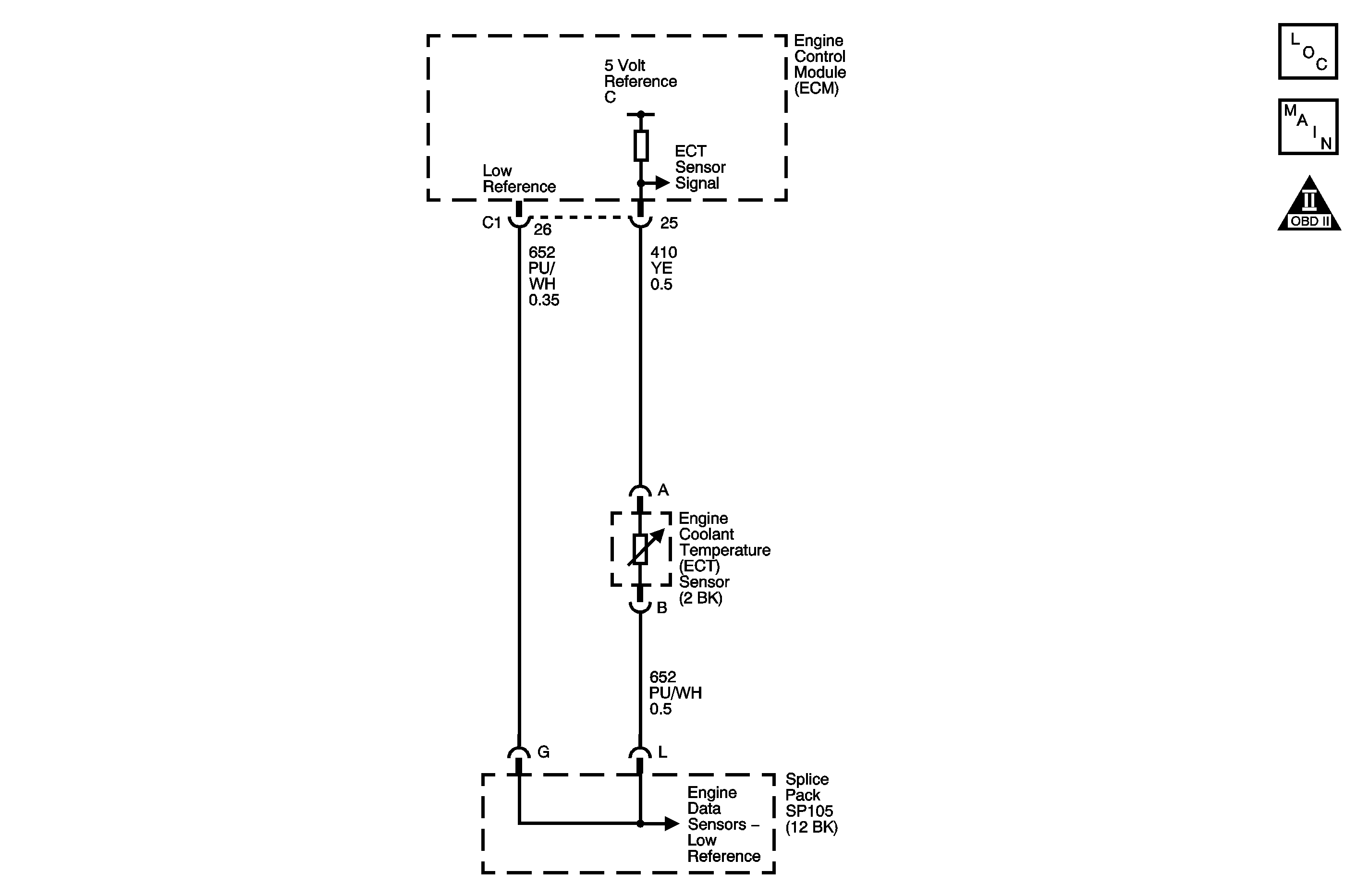
Circuit Description

The engine coolant temperature (ECT) sensor is a variable resistor that measures the temperature of the engine coolant. The engine control module (ECM) supplies 5 volts to the ECT signal circuit, and a ground for the ECT low reference circuit. When the ECT is cold, the sensor resistance is high. When the ECT increases, the sensor resistance decreases. With high sensor resistance, the ECM detects a high voltage on the ECT signal circuit. With lower sensor resistance, the ECM detects a lower voltage on the ECT signal circuit. If the ECM detects an excessively low ECT signal voltage, which is a high temperature indication, DTC P0117 sets.

Conditions for Running the DTC

The ignition is ON.

OR

The engine is cranking or running.

Conditions for Setting the DTC

The ECT sensor parameter is more than 138°C (280°F) for more than 0.5 second.

Action Taken When the DTC Sets

    • The control module illuminates the malfunction indicator lamp (MIL) on the second consecutive ignition cycle that the diagnostic runs and fails.
    • The control module records the operating conditions at the time the diagnostic fails. The first time the diagnostic fails, the control module stores this information in the Failure Records. If the diagnostic reports a failure on the second consecutive ignition cycle, the control module records the operating conditions at the time of the failure. The control module writes the operating conditions to the Freeze Frame and updates the Failure Records.

Conditions for Clearing the MIL/DTC

    • The control module turns OFF the malfunction indicator lamp (MIL) after 3 consecutive ignition cycles that the diagnostic runs and does not fail.
    • A current DTC, Last Test Failed, clears when the diagnostic runs and passes.
    • A history DTC clears after 40 consecutive warm-up cycles, if no failures are reported by this or any other emission related diagnostic.
    • Clear the MIL and the DTC with a scan tool.

Step

Action

Values

Yes

No

Schematic Reference: Engine Controls Schematics

Connector End View Reference: Engine Controls Connector End Views or Engine Control Module Connector End Views

1

Did you perform the Diagnostic System Check-Engine Controls?

--

Go to Step 2

Go to Diagnostic System Check - Engine Controls

2

Important: The cooling fans are commanded ON when certain DTCs are set.

Observe the engine coolant temperature (ECT) sensor parameter display.

Is the ECT sensor parameter more than the specified value?

138°C (280°F)

Go to Step 4

Go to Step 3

3

  1. Observe the Freeze Frame/Failure Records for this DTC.
  2. Turn OFF the ignition for 90 seconds.
  3. Start the engine.
  4. Operate the vehicle within the Conditions for Running the DTC. You may also operate the vehicle within the conditions that you observed from the Freeze Frame/Failure Records.

Did the DTC fail this ignition?

--

Go to Step 4

Go to Intermittent Conditions

4

  1. Disconnect the engine coolant temperature (ECT) sensor.
  2. Observe the ECT sensor parameter with a scan tool.

Is the ECT sensor parameter less than the specified value?

-39°C (-38°F)

Go to Step 6

Go to Step 5

5

Test the signal circuit of the ECT sensor for a short to ground or a short to any low reference circuit. Refer to Circuit Testing and Wiring Repairs in Wiring Systems.

Did you find and correct the condition?

--

Go to Step 10

Go to Step 7

6

Test for an intermittent and for a poor connection at the ECT sensor. Refer to Testing for Intermittent Conditions and Poor Connections and Connector Repairs in Wiring Systems.

Did you find and correct the condition?

--

Go to Step 10

Go to Step 8

7

Test for an intermittent and for a poor connection at the engine control module (ECM). Refer to Testing for Intermittent Conditions and Poor Connections and Connector Repairs in Wiring Systems.

Did you find and correct the condition?

--

Go to Step 10

Go to Step 9

8

Replace the ECT sensor. Refer to Engine Coolant Temperature Sensor Replacement .

Did you complete the replacement?

--

Go to Step 10

--

9

Replace the ECM. Refer to Engine Control Module Replacement .

Did you complete the replacement?

--

Go to Step 10

--

10

  1. Clear the DTCs with a scan tool.
  2. Turn OFF the ignition for 90 seconds.
  3. Start the engine.
  4. Operate the vehicle within the Conditions for Running the DTC. You may also operate the vehicle within the conditions that you observed from the Freeze Frame/Failure Records.

Did the DTC fail this ignition?

--

Go to Step 2

Go to Step 11

11

Observe the Capture Info with a scan tool.

Are there any DTCs that have not been diagnosed?

--

Go to Diagnostic Trouble Code (DTC) List

System OK