GM Service Manual Online
For 1990-2009 cars only

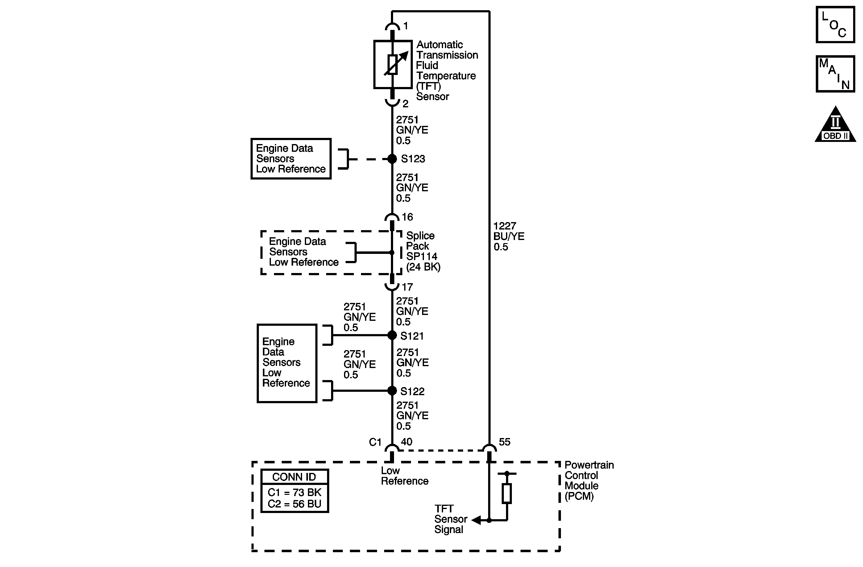
Object Number: 1246909  Size: MF
Master Electrical Component List
Automatic Transmission Controls Schematics
OBD II Symbol Description Notice

Circuit Description

The automatic transmission fluid temperature (TFT) sensor is a thermistor. The powertrain control module (PCM) supplies a 5 volt reference signal to the sensor. When the transmission fluid is cold, the sensor resistance is high and the PCM senses a high signal voltage. As the transmission fluid warms, the sensor resistance lowers and the PCM senses lower voltage. The PCM uses the TFT reading in order to control the torque converter clutch (TCC), line pressure adjustments, and temperature compensated shifts. When the PCM detects a continuous open or short to voltage in the TFT circuit or in the TFT sensor, DTC P0713 sets. DTC P0713 is a type C DTC.

Conditions for Running the DTC

    • No TFT DTC P0711.
    • The system voltage is 11 volts or greater.

Conditions for Setting the DTC

The TFT sensor voltage is 4.93 V or greater for at least 10 seconds.

Action Taken When the DTC Sets

    • The PCM does not illuminate the malfunction indicator lamp (MIL).
    • The PCM illuminates the SVS Lamp.
    • The PCM ignores the input from TFT sensor and uses the default values.
    • The PCM records the operating conditions when the Conditions for Setting the DTC are met. The PCM stores this information as Failure Records.
    • The PCM stores DTC P0712 in PCM history.

Conditions for Clearing the SVS Lamp/DTC

    • The PCM turns OFF the service vehicle soon (SVS) lamp when the condition no longer exists.
    • A scan tool can clear the SVS lamp/DTC.
    • The PCM clears the DTC from PCM history if the vehicle completes 40 warm-up cycles without a non-emission related diagnostic fault occurring.

Diagnostic Aids

    • Inspect the connectors at the PCM, the TFT sensor, and all other circuit connecting points for an intermittent condition. Refer to Testing for Intermittent Conditions and Poor Connections in Wiring Systems.
    • Inspect the circuit wiring for an intermittent condition. Refer to Testing for Electrical Intermittents in Wiring Systems.
    • Inspect for open or shorted to voltage TFT sensor wires.
    • Inspect for an open TFT sensor connector.
    • Inspect for a faulty TFT sensor.
    • Inspect for an internal fault of the PCM.

Test Description

The number below refers to the step number on the diagnostic table.

  1. This step tests the TFT sensor signal circuit for being shorted to voltage, which would be the cause for the open in the TFT sensor.

Step

Action

Values

Yes

No

1

Did you perform the Diagnostic System Check - Engine Controls?

--

Go to Step 2

Go to Diagnostic System Check - Engine Controls in Engine Controls - 3.5L (L66)

2

  1. Install a scan tool.
  2. Turn ON the ignition, with the engine OFF.
  3. Important: Before clearing the DTC, use the scan tool in order to record the DTC Failure Records. Using the Clear Info function erases the Failure Records from the PCM.

  4. Record the DTC Failure Records.
  5. Clear the DTC.
  6. Select Trans. Fluid Temp. on the scan tool.

Does the scan tool display a Trans. Fluid Temp. less than the specified value?

-29°C (-20°F)

Go to Step 3

Go to Intermittent Conditions in Engine Controls-3.5L (L66)

3

  1. Turn OFF the ignition.
  2. Disconnect the TFT sensor. Additional DTCs may set.
  3. Using the DMM and the J-35616 connector test adapter kit, measure the resistance of the TFT sensor.

Refer to Testing for Continuity in Wiring Systems.

Does the resistance measure less than the specified value?

100 K ohms

Go to Step 4

Go to Step 5

4

  1. Test the TFT sensor signal circuit for an open or short to 5 volts.
  2. Test the TFT sensor low reference circuit for an open or short to 5 volts.

Refer to Testing for Continuity and Wiring Repairs in Wiring Systems.

Did you find and correct the condition?

--

Go to Step 8

Go to Step 7

5

Test the TFT sensor signal circuit for a short to voltage.

Refer to Testing for a Short to Voltage and Wiring Repairs in Wiring Systems.

Did you find and correct the condition?

--

Go to Step 6

Go to Step 6

6

Replace the TFT sensor.

Refer to Transmission Fluid Temperature Sensor Replacement .

Did you complete the replacement?

--

Go to Step 8

--

7

Replace the PCM.

Refer to Powertrain Control Module Replacement in Engine Controls - 3.5L (L66).

Did you complete the replacement?

--

Go to Step 8

--

8

Perform the following procedure in order to verify the repair:

  1. Select DTC.
  2. Select Clear Info.
  3. Operate the vehicle under the following conditions:
  4. • Turn ON the ignition, with the engine OFF.
    • The Trans. Fluid Temp. must be -20 - +110°C (-4 - +230°F) for 10 seconds.
  5. Select Specific DTC.
  6. Enter DTC P0713.

Has the test run and passed?

--

Go to Step 9

Go to Step 2

9

With the scan tool, observe the stored information, capture info. and DTC info.

Does the scan tool display any DTCs that you have not diagnosed?

--

Go to Diagnostic Trouble Code (DTC) Types in Engine Controls - 3.5L (L66)

System OK